建物面積
80.71 m2
(約24.41坪)
間取り
2SDK
※Sはサービスルーム(納戸)
築年月
2005年10月

中古一戸建て

2,480万円

相模原市南区相模台4丁目戸建

中古一戸建て

お気に入り 1

小田急線「小田急相模原」駅徒歩17分  □屋上あり(ルーフバルコニー) 

神奈川県相模原市南区相模台4丁目

建物面積80.71m2(約24.41坪)・間取り2SDK ※Sはサービスルーム(納戸)・2005年10月築

借入希望金額や金利を入力すると
返済計画を組み立てることができます。

ローンシミュレーション結果

毎月返済額
ボーナス月返済額
年間返済額
月々のお支払い

(ボーナス月お支払い額 ¥円)
ローン
  • 別途月額費用がかかる場合があります。詳しくは営業担当にお問い合わせください。

住宅ローンの詳細は三井住友銀行 のホームページをご覧ください。

  • このシミュレーションは、借入れを保証するものではありません。「免責事項」をご確認の上、ご利用ください。
  • ボーナス返済額の上限は、金融機関によって異なります。
  • ご購入にあたっては別途諸費用等が必要です。詳しくは営業担当にお問合せください。

金利:2025年10月時点のものです。

物件のポイント

物件の特徴

  • 都市ガス
    都市ガス
  • 床下収納
    床下収納
  • ビルトインガレージ
    ビルトインガレージ
  • 納戸
    納戸
  • 容積率100%以上
    容積率100%以上
  • スーパーまで徒歩10分以内
    スーパーまで徒歩10分以内
  • コンビニまで徒歩5分以内
    コンビニまで徒歩5分以内
  • 公園まで徒歩5分以内
    公園まで徒歩5分以内
  • 駐車場有
    駐車場有
  • 第一種中高層住居専用地域
    第一種中高層住居専用地域
  • 前面道路幅員4.0m以上
    前面道路幅員4.0m以上
  • 都市ガス
    都市ガス
  • 床下収納
    床下収納
  • ビルトインガレージ
    ビルトインガレージ
  • 納戸
    納戸
  • 容積率100%以上
    容積率100%以上
  • スーパーまで徒歩10分以内
    スーパーまで徒歩10分以内
  • コンビニまで徒歩5分以内
    コンビニまで徒歩5分以内
  • 公園まで徒歩5分以内
    公園まで徒歩5分以内
  • 駐車場有
    駐車場有
  • 第一種中高層住居専用地域
    第一種中高層住居専用地域
  • 前面道路幅員4.0m以上
    前面道路幅員4.0m以上
  • 都市ガス
  • 上水道
  • 下水道
  • 床下収納
  • ルーフバルコニー
  • ビルトインガレージ
  • 納戸
  • 駐車場有
    リフォーム

    --

    立地・周辺環境

    容積率100%以上|スーパーまで徒歩10分以内|コンビニまで徒歩5分以内|公園まで徒歩5分以内|第一種中高層住居専用地域|防火・準防火

    セールスポイント

    ■交通:小田急線「小田急相模原」駅まで徒歩17分
        バス停「団地東」徒歩5分、小田急線「相武台前」駅までバス乗車11分
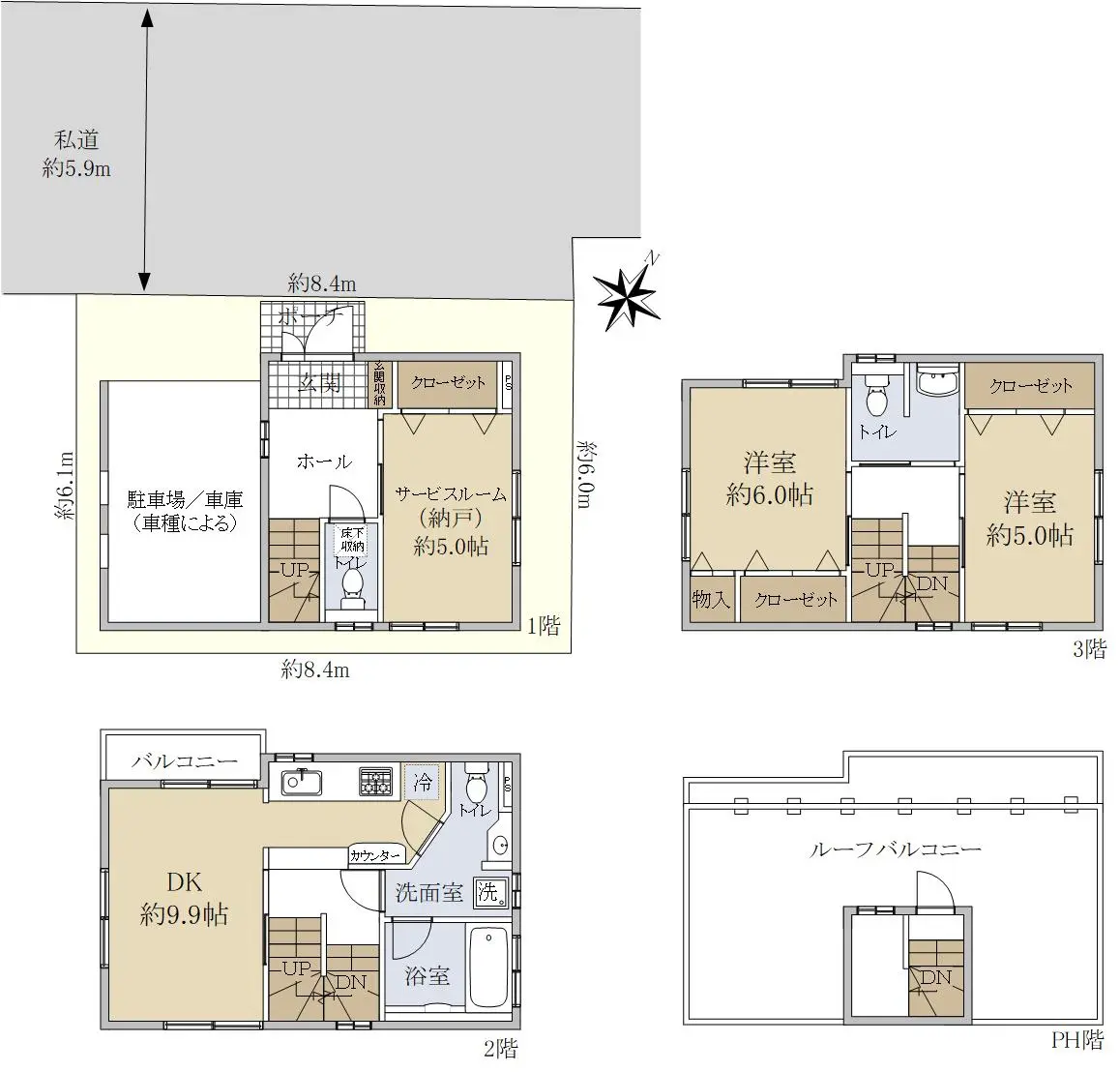
    ■敷地面積:51.50u(15.57坪)
    ■建物面積:80.71u(24.41坪)
    ■築年月:2005年10月
    ■木造3階建
    ■間取り:2SDK
      S=サービスルーム(納戸)
    □駐車場/車庫(車種による)
    □屋上あり(ルーフバルコニー)〜ライフインフォメーション〜
    ・相模台4丁目公園 約200m
    ・セブンイレブン相模原相模台3丁目店 約230m
    ・ファミリーマートサンズ相模台五丁目店 約340m
    ・スーパー三和相模台店 約110m
    ・ビッグ・エー相模原相模台店 約720m
    ・ラクアル・オダサガ 約1350m
    ・クリエイトSD相模台店 約450m
    ・相模原病院 約1060m
    ・相模原市南区相模台まちづくりセンター 約710m
    ・イオンモール座間 約2060m

    ・コストコホールセール座間倉庫店 約4240m
    ◎相模原市立相武台小学校 約870m
    ◎相模原市立若草中学校 約1100m

    担当からのひとこと

    【相模原市南区相模台4丁目戸建】

    不動産のご購入に関しては、写真や図面だけでなく、
    実際に現地をご覧いただくことにより、
    周辺環境や眺望、陽当たり等をご確認いただくだけでなく、
    ご案内する担当者より、プロの目から見た長所・短所等を詳しくご説明することも可能です。

    本物件は勿論のこと、周辺の施設や地域柄につきましてもご案内いたします。

    物件に関するお問い合わせ・ご案内についてはお気軽に椎野(しいの)までご連絡ください。

    ・相模台4丁目公園 徒歩3分(約200m)
    ・セブンイレブン相模原相模台3丁目店 徒歩3分(約230m)
    ・ファミリーマートサンズ相模台五丁目店 徒歩5分(約340m)
    ・スーパー三和相模台店 徒歩2分(約110m)
    ・相模原市立相武台小学校 徒歩11分(約870m)

    物件詳細

    物件名 相模原市南区相模台4丁目戸建
    物件番号 15262028
    所在地 神奈川県相模原市南区相模台4丁目
    価格
    2,480万円
    交通 小田急小田原線小田急相模原」駅徒歩17 分
    小田急小田原線相武台前」駅バス11 分「団地東」バス停徒歩5 分
    間取り 2SDK
    ※Sはサービスルーム(納戸)
    建物面積 80.71m2(約24.41坪)
    土地面積 51.50m2(約15.57坪)※公簿
    階数
    構造
    地上3階建て
    木造
    築年月 2005年10月
    地目
    地勢
    宅地
    接道状況 一方道路・北西5.9m(私道)接面8.4m
    建ぺい率 60%
    容積率 200%
    都市計画 市街化区域
    用途地域 第1種中高層住居専用地域
    地域・地区 準防火地域/宅地造成等工事規制区域
    引渡時期 相談
    現況 居住中
    駐車場 有り
    土地権利 所有権
    取引態様 仲介
    国土法 届出不要
    備考
    • ・別途、屋上塔屋部分3.64uあり
    • ・駐車場/車庫(車種による)13.88u(建物面積に含まず)
    • ・本物件は検査済証を取得しておりません。バス乗車時間調査日:2025年10月6日

    この情報は2025年10月26日当社物件システムのデータにもとづくものであり、次回更新予定日は2025年11月09日です。