• 空き物件
建物面積
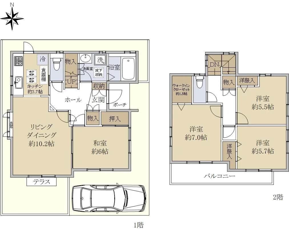
96.87 m2
(約29.30坪)
間取り
4LDK
築年月
2002年01月

中古一戸建て

  • 空き物件
2,480万円

さいたま市見沼区島町戸建

中古一戸建て

お気に入り 2

■「七里」駅徒歩12分 ■4LDK ■東側前面道路 約4.5m

埼玉県さいたま市見沼区島町

建物面積96.87m2(約29.30坪)・間取り4LDK・2002年01月築

借入希望金額や金利を入力すると
返済計画を組み立てることができます。

ローンシミュレーション結果

毎月返済額
ボーナス月返済額
年間返済額
月々のお支払い

(ボーナス月お支払い額 ¥円)
ローン
  • 別途月額費用がかかる場合があります。詳しくは営業担当にお問い合わせください。

住宅ローンの詳細は三井住友銀行 のホームページをご覧ください。

  • このシミュレーションは、借入れを保証するものではありません。「免責事項」をご確認の上、ご利用ください。
  • ボーナス返済額の上限は、金融機関によって異なります。
  • ご購入にあたっては別途諸費用等が必要です。詳しくは営業担当にお問合せください。

金利:2025年12月時点のものです。

物件のポイント

物件の特徴

  • 都市ガス
    都市ガス
  • トイレ2箇所
    トイレ2箇所
  • ウォークインクローゼット
    ウォークインクローゼット
  • 2沿線以上利用可
    2沿線以上利用可
  • 分譲地内
    分譲地内
  • コンビニまで徒歩5分以内
    コンビニまで徒歩5分以内
  • 駐車場有
    駐車場有
  • 第一種中高層住居専用地域
    第一種中高層住居専用地域
  • セットバックなし・済み
    セットバックなし・済み
  • 土地面積30坪以上
    土地面積30坪以上
  • 前面道路公道
    前面道路公道
  • 都市ガス
    都市ガス
  • トイレ2箇所
    トイレ2箇所
  • ウォークインクローゼット
    ウォークインクローゼット
  • 2沿線以上利用可
    2沿線以上利用可
  • 分譲地内
    分譲地内
  • コンビニまで徒歩5分以内
    コンビニまで徒歩5分以内
  • 駐車場有
    駐車場有
  • 第一種中高層住居専用地域
    第一種中高層住居専用地域
  • セットバックなし・済み
    セットバックなし・済み
  • 土地面積30坪以上
    土地面積30坪以上
  • 前面道路公道
    前面道路公道
  • 都市ガス
  • 上水道
  • 下水道
  • トイレ2箇所
  • 収納スペース
  • ウォークインクローゼット
  • テラス
  • 駐車場有
  • セットバックなし・済み
  • 土地面積30坪以上
    リフォーム

    --

    立地・周辺環境

    2沿線以上利用可|分譲地内|コンビニまで徒歩5分以内|第一種中高層住居専用地域|防火・準防火|前面道路公道

    セールスポイント

    《Access》
    ・アーバンパークライン「七里」駅 徒歩12分
    ・宇都宮線「東大宮」駅 徒歩25分

    《Point》
    ・土地面積:100.74u
    ・建物面積:96.87u
    ・間取り:4LDK
    ・東側前面道路 約4.5m(公道)に面する
    ・駐車スペース有り ※車種による
    ・約7.0帖の洋室には約1.5帖のウォークインクローゼット有り
    ・1階廊下や2階廊下にも収納スペース有り
    ・独立型キッチンのため、来客者様からも見えづらい作り
    ・キッチンに勝手口が有り。
    ・3つ口コンロ
    ・トイレが2か所

    《Life Information》
    ・ヤオコー大宮島町店・・・約910m(徒歩12分)
    ・ファミリーマートさいたま堀崎町店・・・約280m(徒歩4分)

    ・スギドラッグ大宮堀崎店・・・約600m(徒歩8分)
    ・大宮堀崎郵便局・・・約520m(徒歩7分)
    ・島小学校・・・約1020m(徒歩13分)
    ・大砂土中学校・・・約1520m(徒歩19分)

    担当からのひとこと

    この度は【さいたま市見沼区島町戸建】のページをご覧頂き誠に有難うございます。

    こちらの物件は、土地面積:100.74u、延床面積:96.87uとなっております。

    駅まで平坦で徒歩12分の立地です。

    是非内見の上で、ご検討ください!!

    なお、【 さいたま市見沼区島町戸建 】に関するご内覧希望やご質問等は、【 担当:中村 】までお気軽にお申し付けください。



    資金計画のご提案や住宅ローン審査のお手伝い等、全力でご購入のサポートをさせて頂きます。


    是非ご検討くださいませ。

    〜〜〜 ご購入・ご売却を検討中のお客様 〜〜〜

    住宅ローンに関するご相談やお買い替えによるご売却のご相談等ございましたら、お気軽に担当:中村までお問い合わせください。
    その他不動産に関するご不安な事等は何なりとご相談ください。
    (無料の住宅ローン事前審査・無料査定ご利用可能です)
    【 フリーコール:0120-664-006 】

    ・ヤオコー大宮島町店 徒歩12分(約910m)
    ・マルエツ大宮砂町店 徒歩15分(約1200m)
    ・ファミリーマートさいたま堀崎町店 徒歩4分(約280m)
    ・セブンイレブンさいたま島町店 徒歩5分(約340m)
    ・島小学校 徒歩13分(約1020m)

    物件詳細

    物件名 さいたま市見沼区島町戸建
    物件番号 15272035
    所在地 埼玉県さいたま市見沼区島町
    価格
    2,480万円
    交通 東武野田線七里」駅徒歩12 分
    湘南新宿ライン(宇都宮〜逗子)東大宮」駅徒歩25 分
    間取り 4LDK
    建物面積 96.87m2(約29.30坪)
    土地面積 100.74m2(約30.47坪)※公簿
    階数
    構造
    地上2階建て
    木造
    築年月 2002年01月
    地目
    地勢
    宅地
    平坦
    接道状況 一方道路・東4.5m(公道)接面10.9m
    建ぺい率 60%
    容積率 180% ※前面道路幅員による制限
    都市計画 市街化区域
    用途地域 第1種中高層住居専用地域
    地域・地区 準防火地域/高度地区(15m地区)
    引渡時期 相談
    現況 空家
    駐車場 有り
    土地権利 所有権
    取引態様 仲介
    国土法 届出不要
    備考
    • ・カースペースは車種による。

    この情報は2025年12月20日当社物件システムのデータにもとづくものであり、次回更新予定日は2026年01月03日です。