• 新着
  • 空き物件
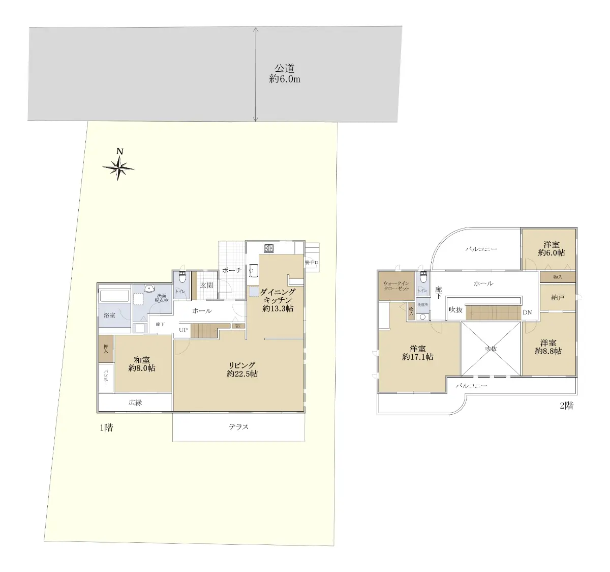
建物面積
214.81 m2
(約64.98坪)
間取り
4LDK
築年月
1996年01月

中古一戸建て

  • 新着
  • 空き物件
1億3,800万円

流山市江戸川台東1丁目戸建て

中古一戸建て

◆住友金属鉱山グループ施工 ◆耐震性・耐久性に優れた重量鉄骨構造

千葉県流山市江戸川台東1丁目

建物面積214.81m2(約64.98坪)・間取り4LDK・1996年01月築

借入希望金額や金利を入力すると
返済計画を組み立てることができます。

ローンシミュレーション結果

毎月返済額
ボーナス月返済額
年間返済額
月々のお支払い

(ボーナス月お支払い額 ¥円)
ローン
  • 別途月額費用がかかる場合があります。詳しくは営業担当にお問い合わせください。

住宅ローンの詳細は三井住友銀行 のホームページをご覧ください。

  • このシミュレーションは、借入れを保証するものではありません。「免責事項」をご確認の上、ご利用ください。
  • ボーナス返済額の上限は、金融機関によって異なります。
  • ご購入にあたっては別途諸費用等が必要です。詳しくは営業担当にお問合せください。

金利:2026年3月時点のものです。

物件のポイント

物件の特徴

  • 都市ガス
    都市ガス
  • ウォークインクローゼット
    ウォークインクローゼット
  • 駐車場2台分
    駐車場2台分
  • 主寝室8畳以上
    主寝室8畳以上
  • 低層住居専用地域
    低層住居専用地域
  • 容積率100%以上
    容積率100%以上
  • 駅徒歩5分以内
    駅徒歩5分以内
  • 小学校まで徒歩10分以内
    小学校まで徒歩10分以内
  • スーパーまで徒歩10分以内
    スーパーまで徒歩10分以内
  • 公園まで徒歩5分以内
    公園まで徒歩5分以内
  • 駐車場有
    駐車場有
  • 前面道路幅員6m以上
    前面道路幅員6m以上
  • 都市ガス
    都市ガス
  • ウォークインクローゼット
    ウォークインクローゼット
  • 駐車場2台分
    駐車場2台分
  • 主寝室8畳以上
    主寝室8畳以上
  • 低層住居専用地域
    低層住居専用地域
  • 容積率100%以上
    容積率100%以上
  • 駅徒歩5分以内
    駅徒歩5分以内
  • 小学校まで徒歩10分以内
    小学校まで徒歩10分以内
  • スーパーまで徒歩10分以内
    スーパーまで徒歩10分以内
  • 公園まで徒歩5分以内
    公園まで徒歩5分以内
  • 駐車場有
    駐車場有
  • 前面道路幅員6m以上
    前面道路幅員6m以上
  • 都市ガス
  • 上水道
  • 下水道
  • ウォークインクローゼット
  • 駐車場2台分
  • 主寝室8畳以上
  • 駐車場有
  • 土地面積100坪以上
    リフォーム

    --

    立地・周辺環境

    低層住居専用地域|容積率100%以上|駅徒歩5分以内|小学校まで徒歩10分以内|スーパーまで徒歩10分以内|公園まで徒歩5分以内|前面道路幅員6m以上|前面道路公道

    セールスポイント

    ◆住友金属鉱山グループ施工
    ◆耐震性・耐久性に優れた重量鉄骨構造
    ◆東武アーバンパークライン「江戸川台」駅徒歩5分
    ◆土地面積:476.92u(144.26坪)
    ◆建物面積:214.81u(64.98坪)
    ◆閑静な住宅街に立地
    ◆開放的な約22.5帖のリビング
    ◆カースペース2台分(但し、車種によります)
    ◆豊富な収納(各居室に収納あり)
    ◆広々お庭付き

    担当からのひとこと

    この度は、「流山市江戸川台東1丁目戸建」のページをご覧いただき、誠にありがとうございます。

    本物件は、東武アーバンパークライン「江戸川台」駅徒歩5分の閑静な住宅街に立地する4LDKの戸建てです。
    テラスや庭に面したリビングは約22.5帖あり、広々とおくつろぎいただけます。

    徒歩10分圏内にスーパー(KEIHOKUスーパー江戸川台店まで約470m)やドラッグストア(ドラッグストアマツモトキヨシ江戸川台店まで約400m)などがございますので、利便性も良好です。

    資料請求・現地の内見希望等、お気軽に担当の村山までお問合わせください。
    お客様のご都合に合わせて現地をご案内させていただきます。

    皆様からのお問合わせ、心よりお待ちしております。

    ・江戸川台10号公園 徒歩2分(約110m)
    ・生鮮&業務スーパー江戸川台店 徒歩5分(約400m)
    ・KEIHOKUスーパー江戸川台店 徒歩6分(約470m)
    ・ドラッグストアマツモトキヨシ江戸川台店 徒歩5分(約400m)
    ・流山市立江戸川台小学校 徒歩9分(約660m)

    物件詳細

    物件名 流山市江戸川台東1丁目戸建て
    物件番号 15282082
    所在地 千葉県流山市江戸川台東1丁目
    価格
    1億3,800万円
    交通 東武野田線江戸川台」駅徒歩5 分
    間取り 4LDK
    建物面積 214.81m2(約64.98坪)
    土地面積 476.92m2(約144.26坪)※公簿
    階数
    構造
    地上2階建て
    鉄骨造
    築年月 1996年01月
    地目
    地勢
    宅地
    平坦
    接道状況 一方道路・北6m(公道)接面16m
    建ぺい率 50%
    容積率 100%
    都市計画 市街化区域
    用途地域 第1種低層住居専用地域
    引渡時期 相談
    現況 空家
    駐車場 有り/台数2台/自走
    土地権利 所有権
    取引態様 仲介
    国土法 届出不要
    備考
    • ・カースペース2台分(但し、車種によります)

    この情報は2026年04月05日当社物件システムのデータにもとづくものであり、次回更新予定日は2026年04月19日です。