建物面積
135.80 m2
(約41.07坪)
間取り
5LDK
築年月
1996年12月

中古一戸建て

3,490万円

横浜市保土ケ谷区今井町戸建

中古一戸建て

お気に入り 3

■旭化成ホームズ(スクラムハウス)施工住宅 ■駐車スペース2台以上可■5LDK

神奈川県横浜市保土ケ谷区今井町

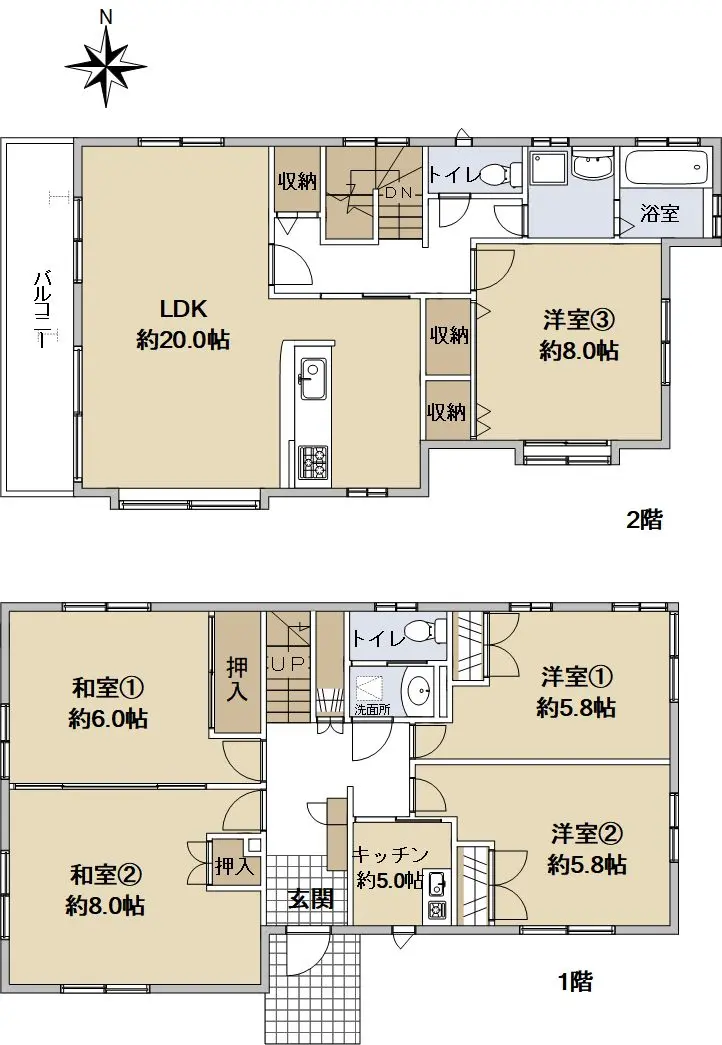
建物面積135.80m2(約41.07坪)・間取り5LDK・1996年12月築

借入希望金額や金利を入力すると
返済計画を組み立てることができます。

ローンシミュレーション結果

毎月返済額
ボーナス月返済額
年間返済額
月々のお支払い

(ボーナス月お支払い額 ¥円)
ローン
  • 別途月額費用がかかる場合があります。詳しくは営業担当にお問い合わせください。

住宅ローンの詳細は三井住友銀行 のホームページをご覧ください。

  • このシミュレーションは、借入れを保証するものではありません。「免責事項」をご確認の上、ご利用ください。
  • ボーナス返済額の上限は、金融機関によって異なります。
  • ご購入にあたっては別途諸費用等が必要です。詳しくは営業担当にお問合せください。

金利:2025年12月時点のものです。

物件のポイント

物件の特徴

  • 都市ガス
    都市ガス
  • トイレ2箇所
    トイレ2箇所
  • 浄水器
    浄水器
  • 駐車場2台分
    駐車場2台分
  • 2沿線以上利用可
    2沿線以上利用可
  • 主寝室8畳以上
    主寝室8畳以上
  • 南道路(南東・南西含む)
    南道路(南東・南西含む)
  • 低層住居専用地域
    低層住居専用地域
  • 駐車場有
    駐車場有
  • 土地面積50坪以上
    土地面積50坪以上
  • 前面道路公道
    前面道路公道
  • 都市ガス
    都市ガス
  • トイレ2箇所
    トイレ2箇所
  • 浄水器
    浄水器
  • 駐車場2台分
    駐車場2台分
  • 2沿線以上利用可
    2沿線以上利用可
  • 主寝室8畳以上
    主寝室8畳以上
  • 南道路(南東・南西含む)
    南道路(南東・南西含む)
  • 低層住居専用地域
    低層住居専用地域
  • 駐車場有
    駐車場有
  • 土地面積50坪以上
    土地面積50坪以上
  • 前面道路公道
    前面道路公道
  • 都市ガス
  • 上水道
  • 下水道
  • トイレ2箇所
  • 浄水器
  • 洗面所
  • 洗面台
  • 2面バルコニー
  • 駐車場2台分
  • 主寝室8畳以上
  • 駐車場有
  • 土地面積50坪以上
  • 再建築不可
    リフォーム

    --

    立地・周辺環境

    2沿線以上利用可|南道路(南東・南西含む)|低層住居専用地域|前面道路公道

    セールスポイント

    ■旭化成ホームズ施工住宅

    ■第1種低層住居専用地域

    ■土地面積:255.09u

    ■建物面積:135.80u

    ■広々とした5LDK

    ■和室あり

    ■収納充実

    ■駐車場2台分(車種による)
    ■本物件は旭化成ホームズのオーナー様こだわりの注文住宅です。

    ■1.2階共にキッチン有り

    ■本物件はJR横須賀線「東戸塚駅」バス12分「今井町」停徒歩5分、JR横須賀線「保土ヶ谷駅」バス20分「今井町」停徒歩2分であり、2駅利用可能な立地です。

    担当からのひとこと

    ┏┓━━━━━━━━━━━━━━━━━━━━━━━━━━━━━━━━━
    ┗□  物件に関するご質問・ご内覧のご予約・資料請求お問い合わせ
    ━━━━━━━━━━━━━━━━━━━━━━━━━━━━━━━━━━━
     
    住友不動産ステップ戸塚営業センター

    フリーコール
     0120−045−211

    ・セブンイレブン横浜境木町店 徒歩3分(約180m)
    ・クリエイトS・D保土ケ谷今井町店 徒歩9分(約700m)
    ・境木第三公園 徒歩3分(約230m)
    ・横浜市立今井小学校 徒歩11分(約860m)
    ・横浜市立橘中学校 徒歩28分(約2210m)

    物件詳細

    物件名 横浜市保土ケ谷区今井町戸建
    物件番号 15362091
    所在地 神奈川県横浜市保土ケ谷区今井町
    価格
    3,490万円
    交通 湘南新宿ライン(宇都宮〜逗子)東戸塚」駅バス12 分「今井町」バス停徒歩5 分
    横須賀線保土ケ谷」駅バス20 分「今井橋」バス停徒歩2 分
    横須賀線東戸塚」駅バス12 分「今井町」バス停徒歩5 分
    間取り 5LDK
    建物面積 135.80m2(約41.07坪)
    土地面積 255.09m2(約77.16坪)※公簿/セットバック:7.79m2含む/路地状部分:45.00m2含む
    階数
    構造
    地上2階建て
    木造
    築年月 1996年12月
    地目
    地勢
    宅地
    平坦
    接道状況 一方道路・南東3.1m(公道)接面8.3m
    建ぺい率 50%
    容積率 80%
    都市計画 市街化区域
    用途地域 第1種低層住居専用地域
    地域・地区 再建築不可
    引渡時期 相談
    現況 居住中
    駐車場 有り
    土地権利 所有権
    取引態様 仲介
    国土法 届出不要
    備考
    • ・駐車場は車種による。
    • ・2階にキッチンあり
    • ・再建築不可。ただし、建築基準法第42条第2項の許可を得ることができれば再建築は可能です。

    この情報は2025年12月13日当社物件システムのデータにもとづくものであり、次回更新予定日は2025年12月27日です。