建物面積
332.06 m2
(約100.44坪)
間取り
5SLDK
※Sはサービスルーム(納戸)
築年月
2007年03月

中古一戸建て

9,980万円

日野市新町3丁目オフィス付住宅

中古一戸建て

■JR中央線「日野」駅徒歩14分 ■事務所付住宅 

東京都日野市新町3丁目

建物面積332.06m2(約100.44坪)・間取り5SLDK ※Sはサービスルーム(納戸)・2007年03月築

借入希望金額や金利を入力すると
返済計画を組み立てることができます。

ローンシミュレーション結果

毎月返済額
ボーナス月返済額
年間返済額
月々のお支払い

(ボーナス月お支払い額 ¥円)
ローン
  • 別途月額費用がかかる場合があります。詳しくは営業担当にお問い合わせください。

住宅ローンの詳細は三井住友銀行 のホームページをご覧ください。

  • このシミュレーションは、借入れを保証するものではありません。「免責事項」をご確認の上、ご利用ください。
  • ボーナス返済額の上限は、金融機関によって異なります。
  • ご購入にあたっては別途諸費用等が必要です。詳しくは営業担当にお問合せください。

金利:2025年11月時点のものです。

物件のポイント

物件の特徴

  • 都市ガス
    都市ガス
  • 納戸
    納戸
  • 容積率100%以上
    容積率100%以上
  • 駐車場有
    駐車場有
  • 前面道路幅員6m以上
    前面道路幅員6m以上
  • 第二種中高層住居専用地域
    第二種中高層住居専用地域
  • セットバックなし・済み
    セットバックなし・済み
  • 土地面積50坪以上
    土地面積50坪以上
  • 前面道路公道
    前面道路公道
  • 都市ガス
    都市ガス
  • 納戸
    納戸
  • 容積率100%以上
    容積率100%以上
  • 駐車場有
    駐車場有
  • 前面道路幅員6m以上
    前面道路幅員6m以上
  • 第二種中高層住居専用地域
    第二種中高層住居専用地域
  • セットバックなし・済み
    セットバックなし・済み
  • 土地面積50坪以上
    土地面積50坪以上
  • 前面道路公道
    前面道路公道
  • 都市ガス
  • 上水道
  • 下水道
  • 納戸
  • 駐車場有
  • セットバックなし・済み
  • 土地面積50坪以上
    リフォーム

    --

    立地・周辺環境

    容積率100%以上|前面道路幅員6m以上|第二種中高層住居専用地域|前面道路公道

    セールスポイント

    〜交通〜
    JR中央線「日野」駅徒歩14分

    〜概要〜
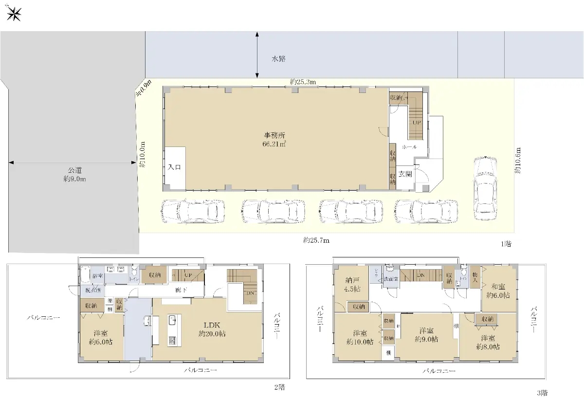
    土地面積:275.14u(83.22坪)
    建物面積:332.06u(100.44坪)
    間取り:1階 事務所 2階・3階:5SLDK
    駐車スペース5台(車種による)

    〜オススメポイント〜
    事務所兼住居で玄関が2箇所分かれてある為、生活スペースと事務所スペースが分かれており便利!!
    駐車スペースが多く、自家用・社用・来客用としても使用可能!!

    担当からのひとこと

    この度は『日野市新町3丁目オフィス付住宅』のページをご覧いただきまして、誠に有難うございます。

    事務所付住宅ですが、1階部分は事務所以外にもアトリエとしても使用できます!!(要工事、有償)

    是非一度現地をご覧ください。

    現地見学・資料請求等お気軽に「坂下」までお申し付けください。
    お客様専用フリーコールは【0120-062-532】です。

    ・日野市立東光寺小学校 徒歩2分(約90m)
    ・日野市立大坂上中学校 徒歩17分(約1350m)
    ・コープみらいコープ日野駅前店 徒歩13分(約970m)
    ・セブンイレブン日野栄町4丁目店 徒歩7分(約530m)
    ・ウエルシア日野栄町店 徒歩5分(約400m)

    物件詳細

    物件名 日野市新町3丁目オフィス付住宅
    物件番号 15392031
    所在地 東京都日野市新町3丁目
    価格
    9,980万円
    交通 中央線日野」駅徒歩14 分
    間取り 5SLDK
    ※Sはサービスルーム(納戸)
    建物面積 332.06m2(約100.44坪)
    土地面積 275.14m2(約83.22坪)
    階数
    構造
    地上3階建て
    鉄骨造
    築年月 2007年03月
    地目
    地勢
    宅地
    平坦
    接道状況 北西9m(公道)接面10m
    建ぺい率 60%
    容積率 200%
    都市計画 市街化区域
    用途地域 第2種中高層住居専用地域
    引渡時期 相談
    現況 居住中
    駐車場 有り
    土地権利 所有権
    取引態様 仲介
    国土法 届出不要
    備考
    • ・間取り:事務所+5SLDK

    この情報は2025年10月30日当社物件システムのデータにもとづくものであり、次回更新予定日は2025年11月13日です。