• おすすめ物件
  • 空き物件
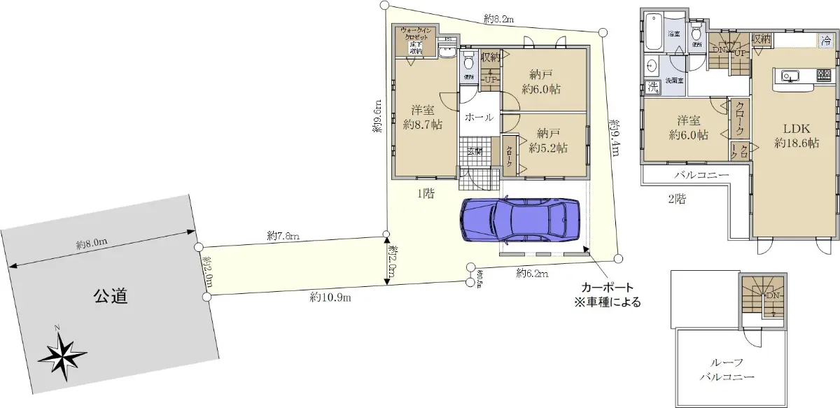
建物面積
104.33 m2
(約31.55坪)
間取り
2SLDK
※Sはサービスルーム(納戸)
築年月
2011年08月

中古一戸建て

  • 空き物件
4,480万円

川口市朝日2丁目戸建

中古一戸建て

【オール電化】現況空室のため、ゆっくりご内覧いただけます。

埼玉県川口市朝日2丁目

建物面積104.33m2(約31.55坪)・間取り2SLDK ※Sはサービスルーム(納戸)・2011年08月築

借入希望金額や金利を入力すると
返済計画を組み立てることができます。

ローンシミュレーション結果

毎月返済額
ボーナス月返済額
年間返済額
月々のお支払い

(ボーナス月お支払い額 ¥円)
ローン
  • 別途月額費用がかかる場合があります。詳しくは営業担当にお問い合わせください。

住宅ローンの詳細は三井住友銀行 のホームページをご覧ください。

  • このシミュレーションは、借入れを保証するものではありません。「免責事項」をご確認の上、ご利用ください。
  • ボーナス返済額の上限は、金融機関によって異なります。
  • ご購入にあたっては別途諸費用等が必要です。詳しくは営業担当にお問合せください。

金利:2025年11月時点のものです。

物件のポイント

物件の特徴

  • トイレ2箇所
    トイレ2箇所
  • ウォークインクローゼット
    ウォークインクローゼット
  • 床下収納
    床下収納
  • IHクッキングヒーター
    IHクッキングヒーター
  • オール電化
    オール電化
  • 主寝室8畳以上
    主寝室8畳以上
  • 納戸
    納戸
  • 南道路(南東・南西含む)
    南道路(南東・南西含む)
  • 容積率100%以上
    容積率100%以上
  • 小学校まで徒歩10分以内
    小学校まで徒歩10分以内
  • スーパーまで徒歩10分以内
    スーパーまで徒歩10分以内
  • コンビニまで徒歩5分以内
    コンビニまで徒歩5分以内
  • トイレ2箇所
    トイレ2箇所
  • ウォークインクローゼット
    ウォークインクローゼット
  • 床下収納
    床下収納
  • IHクッキングヒーター
    IHクッキングヒーター
  • オール電化
    オール電化
  • 主寝室8畳以上
    主寝室8畳以上
  • 納戸
    納戸
  • 南道路(南東・南西含む)
    南道路(南東・南西含む)
  • 容積率100%以上
    容積率100%以上
  • 小学校まで徒歩10分以内
    小学校まで徒歩10分以内
  • スーパーまで徒歩10分以内
    スーパーまで徒歩10分以内
  • コンビニまで徒歩5分以内
    コンビニまで徒歩5分以内
  • 上水道
  • 下水道
  • トイレ2箇所
  • ウォークインクローゼット
  • 床下収納
  • IHクッキングヒーター
  • 洗面所
  • 洗面台
  • ルーフバルコニー
  • オール電化
  • 主寝室8畳以上
  • 納戸
  • 駐車場有
  • 即入居可・即引渡可
  • 土地面積30坪以上
    リフォーム

    --

    立地・周辺環境

    南道路(南東・南西含む)|容積率100%以上|小学校まで徒歩10分以内|スーパーまで徒歩10分以内|コンビニまで徒歩5分以内|公園まで徒歩5分以内|前面道路幅員6m以上|第二種住居地域|前面道路公道

    セールスポイント

    〜アクセス〜
    ◎埼玉高速鉄道「南鳩ヶ谷」駅徒歩8分

    〜セールスポイント〜
    ◎オール電化住宅
    ◎カーポート有(車種による)
    ◎各階にトイレ・洗面台あり
    ◎屋上にルーフバルコニー有り
    ◎火を使わないIHクッキングヒーター
    ◎リビングのお子様を見守りながらお料理ができる対面キッチン
    ◎浴室にTV付き

    〜ライフインフォメーション〜
    朝日町公園            約190m(徒歩3分)
    ファミリーマート川口朝日三丁目店 約250m(徒歩4分)
    マツモトキヨシ川口朝日店     約350m(徒歩5分)
    ヤオコー川口朝日店        約370m(徒歩5分)
    十二月田小学校          約780m(徒歩10分)

    担当からのひとこと

    川口市朝日2丁目で中古戸建の販売でございます。

    埼玉高速鉄道「南鳩ヶ谷」駅徒歩8分の立地に加えて、敷地内にカースペース有り(車種による)
    車通勤、電車通勤・通学のお客様にも通いやすい立地でございます。
    前面道路は幅員約8.0mの為、駐車にゆとりがございます。

    周辺環境は、スーパー、公園、コンビニ、ドラッグストアが徒歩5分以内にあり、
    充実した住環境になっております。

    室内は、対面型カウンターキッチンを採用しており、コミュニケーションを取りながら

    料理が可能でございます。

    是非一度、室内をご見学頂ければと思います。
    ご検討の程宜しくお願い致します。

    ・ファミリーマート川口朝日三丁目店 徒歩4分(約250m)
    ・マツモトキヨシ川口朝日店 徒歩5分(約350m)
    ・ヤオコー川口朝日店 徒歩5分(約370m)
    ・十二月田小学校 徒歩10分(約780m)
    ・朝日町公園 徒歩3分(約190m)

    物件詳細

    物件名 川口市朝日2丁目戸建
    物件番号 15572017
    所在地 埼玉県川口市朝日2丁目
    価格
    4,480万円
    交通 埼玉高速鉄道南鳩ヶ谷」駅徒歩8 分
    間取り 2SLDK
    ※Sはサービスルーム(納戸)
    建物面積 104.33m2(約31.55坪)
    土地面積 112.50m2(約34.03坪)※公簿/路地状部分:19.65m2含む
    階数
    構造
    地上2階建て
    木造
    築年月 2011年08月
    地目
    地勢
    宅地
    平坦
    接道状況 一方道路・南西8m(公道)接面2m
    建ぺい率 60%
    容積率 200%
    都市計画 市街化区域
    用途地域 第2種住居地域
    地域・地区 22条区域
    引渡時期 即時(但し、残代金精算後)
    現況 空家
    駐車場 有り
    土地権利 所有権
    取引態様 仲介
    国土法 届出不要
    備考
    • ・駐車可能な車両は車種による

    この情報は2025年10月23日当社物件システムのデータにもとづくものであり、次回更新予定日は2025年11月06日です。