• 新着
建物面積
158.58 m2
(約47.97坪)
間取り
4LDK
築年月
1981年06月

中古一戸建て

  • 新着
6,980万円

葛飾区東金町8丁目戸建

中古一戸建て

お気に入り 1

お庭・車庫付きの4LDK戸建

東京都葛飾区東金町8丁目

建物面積158.58m2(約47.97坪)・間取り4LDK・1981年06月築

借入希望金額や金利を入力すると
返済計画を組み立てることができます。

ローンシミュレーション結果

毎月返済額
ボーナス月返済額
年間返済額
月々のお支払い

(ボーナス月お支払い額 ¥円)
ローン
  • 別途月額費用がかかる場合があります。詳しくは営業担当にお問い合わせください。

住宅ローンの詳細は三井住友銀行 のホームページをご覧ください。

  • このシミュレーションは、借入れを保証するものではありません。「免責事項」をご確認の上、ご利用ください。
  • ボーナス返済額の上限は、金融機関によって異なります。
  • ご購入にあたっては別途諸費用等が必要です。詳しくは営業担当にお問合せください。

金利:2025年10月時点のものです。

物件のポイント

物件の特徴

  • トイレ2箇所
    トイレ2箇所
  • ウォークインクローゼット
    ウォークインクローゼット
  • 床下収納
    床下収納
  • 駐車場3台分
    駐車場3台分
  • バス1坪以上
    バス1坪以上
  • オール電化
    オール電化
  • 2沿線以上利用可
    2沿線以上利用可
  • 主寝室8畳以上
    主寝室8畳以上
  • 南道路(南東・南西含む)
    南道路(南東・南西含む)
  • 低層住居専用地域
    低層住居専用地域
  • 容積率100%以上
    容積率100%以上
  • 駐車場有
    駐車場有
  • トイレ2箇所
    トイレ2箇所
  • ウォークインクローゼット
    ウォークインクローゼット
  • 床下収納
    床下収納
  • 駐車場3台分
    駐車場3台分
  • バス1坪以上
    バス1坪以上
  • オール電化
    オール電化
  • 2沿線以上利用可
    2沿線以上利用可
  • 主寝室8畳以上
    主寝室8畳以上
  • 南道路(南東・南西含む)
    南道路(南東・南西含む)
  • 低層住居専用地域
    低層住居専用地域
  • 容積率100%以上
    容積率100%以上
  • 駐車場有
    駐車場有
  • 上水道
  • 下水道
  • トイレ2箇所
  • バス・トイレ別
  • ウォークインクローゼット
  • 床下収納
  • 洗面所
  • 洗面台
  • 駐車場3台分
  • バス1坪以上
  • オール電化
  • 主寝室8畳以上
  • 駐車場有
  • セットバックなし・済み
  • 土地面積50坪以上
    リフォーム

    --

    立地・周辺環境

    2沿線以上利用可|南道路(南東・南西含む)|低層住居専用地域|容積率100%以上|防火・準防火|前面道路公道

    セールスポイント

    土地面積:311.18u(約94.13坪)
    建物面積:1階86.95u、2階71.63u 延床面積158.58u(約47.97坪)
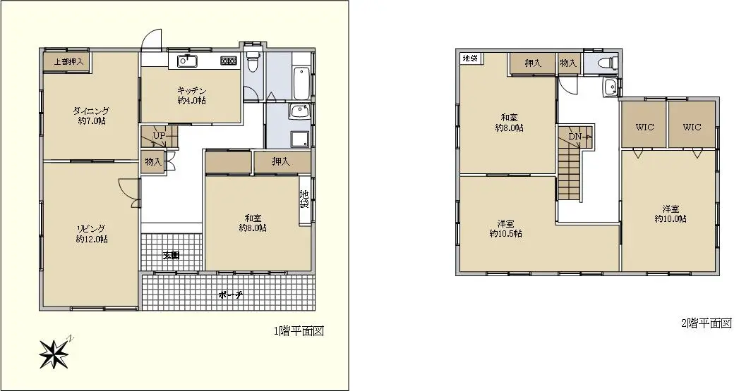
    間取り:4LDK(洋室@約10.5帖、洋室A約10.0帖、和室@約8.0帖、和室A約8.0帖、LDK約23.0帖)
    カースペース:3台(車庫2台、外1台)

    〜交通〜
     ・JR常磐線「金町」駅 徒歩24分
     ・京成金町線「京成金町」駅 徒歩25分
     ・JR常磐線「金町」駅バス4分
      東武バスセントラル「桜土手」バス停 徒歩5分

    〜都市計画等情報〜
     ・第二種低層住居専用地域
     ・建蔽率60%
     ・容積率200%
     ・準防火地域
     ・第2種高度地区

    担当からのひとこと

    「葛飾区東金町8丁目戸建」をご覧いただきましてありがとうございます。

    本物件は、和風門から敷地に入り、お庭を通過してから家屋に行きつきます。

    車庫の屋上は洗濯物干場になっており、南東側に位置しているため、陽当たり良好です。

    現地ご内覧や資料請求などはお気軽にお問合せくださいませ。

    フリーコール:0120−205−886
    担当者:山本

    --

    物件詳細

    物件名 葛飾区東金町8丁目戸建
    物件番号 15732022
    所在地 東京都葛飾区東金町8丁目
    価格
    6,980万円
    交通 常磐線(各駅)金町」駅徒歩24 分
    京成金町線京成金町」駅徒歩25 分
    常磐線(各駅)金町」駅バス4 分「桜土手」バス停徒歩5 分
    間取り 4LDK
    建物面積 158.58m2(約47.97坪)
    土地面積 311.18m2(約94.13坪)
    階数
    構造
    地上2階建て
    木造
    築年月 1981年06月
    地目
    地勢
    宅地
    接道状況 一方道路・南東5.9m(公道)接面12.7m
    建ぺい率 60%
    容積率 200%
    都市計画 市街化区域
    用途地域 第2種低層住居専用地域
    地域・地区 準防火地域
    引渡時期 相談
    現況 居住中
    駐車場 有り
    土地権利 所有権
    取引態様 仲介
    国土法 届出不要
    備考
    • ・付属建物:車庫
    • ・コンクリートブロック造陸屋根平屋建、36.73u
    • ・売主の申告:敷地内に井戸と浄化槽があります。

    この情報は2025年11月01日当社物件システムのデータにもとづくものであり、次回更新予定日は2025年11月15日です。