建物面積
110.13 m2
(約33.31坪)
間取り
3LDK
築年月
2021年11月

中古一戸建て

3,380万円

相模原市緑区青山戸建

中古一戸建て

お気に入り 2

【美都住販施工・注文住宅】90坪超えの敷地、2021年11月建築

神奈川県相模原市緑区青山

建物面積110.13m2(約33.31坪)・間取り3LDK・2021年11月築

借入希望金額や金利を入力すると
返済計画を組み立てることができます。

ローンシミュレーション結果

毎月返済額
ボーナス月返済額
年間返済額
月々のお支払い

(ボーナス月お支払い額 ¥円)
ローン
  • 別途月額費用がかかる場合があります。詳しくは営業担当にお問い合わせください。

住宅ローンの詳細は三井住友銀行 のホームページをご覧ください。

  • このシミュレーションは、借入れを保証するものではありません。「免責事項」をご確認の上、ご利用ください。
  • ボーナス返済額の上限は、金融機関によって異なります。
  • ご購入にあたっては別途諸費用等が必要です。詳しくは営業担当にお問合せください。

金利:2026年3月時点のものです。

物件のポイント

物件の特徴

  • 建物補修
    建物補修
  • 設備補修
    設備補修
  • トイレ2箇所
    トイレ2箇所
  • ウォークインクローゼット
    ウォークインクローゼット
  • 24時間換気システム
    24時間換気システム
  • オール電化
    オール電化
  • 主寝室8畳以上
    主寝室8畳以上
  • 築5年以内
    築5年以内
  • 南道路(南東・南西含む)
    南道路(南東・南西含む)
  • 容積率100%以上
    容積率100%以上
  • コンビニまで徒歩5分以内
    コンビニまで徒歩5分以内
  • 駐車場有
    駐車場有
  • 建物補修
    建物補修
  • 設備補修
    設備補修
  • トイレ2箇所
    トイレ2箇所
  • ウォークインクローゼット
    ウォークインクローゼット
  • 24時間換気システム
    24時間換気システム
  • オール電化
    オール電化
  • 主寝室8畳以上
    主寝室8畳以上
  • 築5年以内
    築5年以内
  • 南道路(南東・南西含む)
    南道路(南東・南西含む)
  • 容積率100%以上
    容積率100%以上
  • コンビニまで徒歩5分以内
    コンビニまで徒歩5分以内
  • 駐車場有
    駐車場有
  • 建物補修
  • 設備補修
  • ガスその他
  • 上水道
  • 下水道
  • トイレ2箇所
  • ウォークインクローゼット
  • 24時間換気システム
  • オール電化
  • 主寝室8畳以上
  • 太陽光発電システム
  • 築5年以内
  • 駐車場有
  • 土地面積50坪以上
    リフォーム

    --

    立地・周辺環境

    南道路(南東・南西含む)|容積率100%以上|コンビニまで徒歩5分以内|前面道路公道

    セールスポイント

    ◎美都住販施工の注文住宅
    ◎2021年11月建築
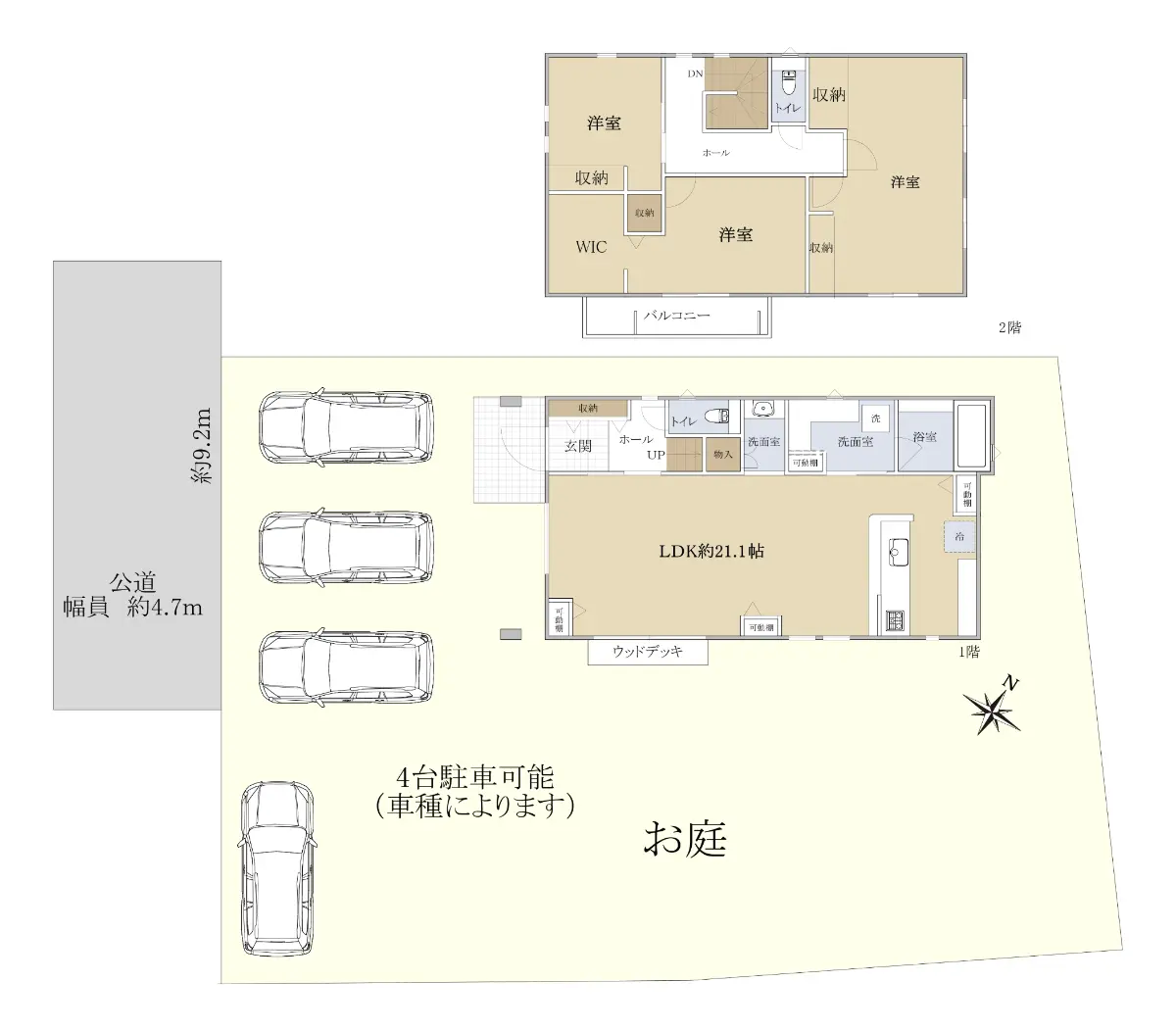
    ◎敷地面積:300.76u(90.97坪)
    ◎建物面積:110.13u(33.31坪)
    ◎4台駐車可能(車種によります)
    ◎オール電化住宅
    ◎お庭の大きさは93.13u(28.17坪)
    ◎閑静な住宅街
    ◎南東側は遮る建物が無いため陽当たり良好

    担当からのひとこと

    本物件は相模原市緑区青山に位置する、美都住販施工の注文住宅です。
    2021年11月建築の物件で、敷地面積はゆとりある300u超、
    建物面積は110u超です。
    敷地内には車種によりますが、4台駐車可能で、ご家族で複数台所有の方や来客時にも
    ご安心です。また南側にはお庭があり、ガーデニングや家庭菜園、バーベキュー等を
    戸建ならではの楽しみ方が広がります。設備はオール電化住宅のため、光熱費を抑えやすく、
    安全性の面でもおすすめです。

    ご質問・ご相談など、どうぞお気軽にお問い合わせくださいませ。
    ◆住友不動産販売株式会社 橋本営業センター 

     フリーコール:0120−313−617

    ☆皆様からの購入・売却のお問い合わせを心よりお待ちしております☆

    ・セブンイレブン津久井青山店 徒歩3分(約230m)

    物件詳細

    物件名 相模原市緑区青山戸建
    物件番号 15742101
    所在地 神奈川県相模原市緑区青山
    価格
    3,380万円
    交通 横浜線橋本」駅バス37 分「関」バス停徒歩3 分
    間取り 3LDK
    建物面積 110.13m2(約33.31坪)
    土地面積 300.76m2(約90.97坪)※公簿
    階数
    構造
    地上2階建て
    木造
    築年月 2021年11月
    地目
    地勢
    宅地
    平坦
    接道状況 一方道路・南西4.7m(公道)接面9.2m
    建ぺい率 50%
    容積率 100%
    都市計画 非線引区域
    用途地域 無指定
    引渡時期 相談
    現況 居住中
    駐車場 有り/台数4台
    土地権利 所有権
    取引態様 仲介
    国土法 届出不要
    備考
    • ・バス調査日:2026年2月7日
    • ・駐車場は車種によります
    • ・ガスはオール電化

    この情報は2026年02月23日当社物件システムのデータにもとづくものであり、次回更新予定日は2026年03月09日です。