• おすすめ物件
建物面積
75.85 m2
(約22.94坪)
間取り
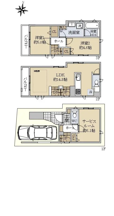
2SLDK
※Sはサービスルーム(納戸)
築年月
2021年06月

中古一戸建て

5,280万円

川崎市宮前区犬蔵2丁目戸建

中古一戸建て

お気に入り 1

田園都市線「鷺沼駅」まで徒歩11分〜2021年築の戸建〜

神奈川県川崎市宮前区犬蔵2丁目

建物面積75.85m2(約22.94坪)・間取り2SLDK ※Sはサービスルーム(納戸)・2021年06月築

借入希望金額や金利を入力すると
返済計画を組み立てることができます。

ローンシミュレーション結果

毎月返済額
ボーナス月返済額
年間返済額
月々のお支払い

(ボーナス月お支払い額 ¥円)
ローン
  • 別途月額費用がかかる場合があります。詳しくは営業担当にお問い合わせください。

住宅ローンの詳細は三井住友銀行 のホームページをご覧ください。

  • このシミュレーションは、借入れを保証するものではありません。「免責事項」をご確認の上、ご利用ください。
  • ボーナス返済額の上限は、金融機関によって異なります。
  • ご購入にあたっては別途諸費用等が必要です。詳しくは営業担当にお問合せください。

金利:2025年10月時点のものです。

物件のポイント

物件の特徴

  • 建物補修
    建物補修
  • 設備補修
    設備補修
  • 都市ガス
    都市ガス
  • トイレ2箇所
    トイレ2箇所
  • 浄水器
    浄水器
  • 食器洗浄乾燥機
    食器洗浄乾燥機
  • 浴室乾燥機
    浴室乾燥機
  • 24時間換気システム
    24時間換気システム
  • バス1坪以上
    バス1坪以上
  • ビルトインガレージ
    ビルトインガレージ
  • 納戸
    納戸
  • 築5年以内
    築5年以内
  • 建物補修
    建物補修
  • 設備補修
    設備補修
  • 都市ガス
    都市ガス
  • トイレ2箇所
    トイレ2箇所
  • 浄水器
    浄水器
  • 食器洗浄乾燥機
    食器洗浄乾燥機
  • 浴室乾燥機
    浴室乾燥機
  • 24時間換気システム
    24時間換気システム
  • バス1坪以上
    バス1坪以上
  • ビルトインガレージ
    ビルトインガレージ
  • 納戸
    納戸
  • 築5年以内
    築5年以内
  • 建物補修
  • 設備補修
  • 都市ガス
  • 上水道
  • 下水道
  • トイレ2箇所
  • 温水洗浄便座
  • システムキッチン
  • 浄水器
  • 食器洗浄乾燥機
  • 浴室乾燥機
  • 24時間換気システム
  • バス1坪以上
  • ビルトインガレージ
  • 納戸
  • 築5年以内
  • 駐車場有
    リフォーム

    --

    立地・周辺環境

    容積率100%以上|コンビニまで徒歩5分以内|公園まで徒歩5分以内|前面道路幅員6m以上|第一種住居地域|防火・準防火|前面道路公道

    セールスポイント

    ■田園都市線「鷺沼」駅まで徒歩11分 「たまプラーザ」駅徒歩16分も利用可能
    ■土地面積:46.42u(公簿)
    ■建物面積:75.85u
    ■屋根付き車庫有り ※駐車可能な車は車種によります
    ■2021年6月築 
    ■開放的で通風良好
    〜LifeInformation〜

    ■セブンイレブン川崎犬蔵店まで約400m
    ■ファミリーマートたまプラーザ店まで約950m
    ■まいばすけっとたまプラーザ店まで約1100m
    ■川崎市立犬蔵小学校まで約1200m
    ■川崎市立犬蔵中学校まで約1200m
    ■犬蔵2丁目丘の上公園まで約25m

    担当からのひとこと

    ご覧いただき誠にありがとうございます。
    田園都市線「鷺沼」駅まで徒歩11分の距離にある2021年築戸建のご紹介です。

    不動産のご購入に関しては、写真や図面だけでなく、
    実際に現地をご覧いただくことをお勧めいたします。
    周辺環境や眺望、陽当たり等をご確認いただくだけでなく、
    プロの目から見た長所・短所等を詳しくご説明差し上げることも可能です。

    本物件は勿論のこと、周辺の施設や地域柄につきましてもご案内いたしますので
    お気軽にお問い合わせください。

    簡単な資料だけご覧になりたいという方もお気軽にお問い合わせください。
    お問合せ心よりお待ちしております。

    ・セブンイレブン川崎犬蔵店 徒歩5分(約400m)
    ・ファミリーマートたまプラーザ店 徒歩12分(約950m)
    ・川崎市立犬蔵小学校 徒歩15分(約1200m)
    ・川崎市立犬蔵中学校 徒歩15分(約1200m)
    ・犬蔵2丁目丘の上公園 徒歩1分(約25m)

    物件詳細

    物件名 川崎市宮前区犬蔵2丁目戸建
    物件番号 15772018
    所在地 神奈川県川崎市宮前区犬蔵2丁目
    価格
    5,280万円
    交通 東急田園都市線鷺沼」駅徒歩11 分
    東急田園都市線たまプラーザ」駅徒歩16 分
    間取り 2SLDK
    ※Sはサービスルーム(納戸)
    建物面積 75.85m2(約22.94坪)
    土地面積 46.42m2(約14.04坪)※公簿
    階数
    構造
    地上3階建て
    木造
    築年月 2021年06月
    地目
    地勢
    宅地
    平坦
    接道状況 一方道路・北西6m(公道)接面4.3m
    建ぺい率 60%
    容積率 200%
    都市計画 市街化区域
    用途地域 第1種住居地域
    地域・地区 準防火地域
    引渡時期 相談
    現況 居住中
    駐車場 有り
    土地権利 所有権
    取引態様 仲介
    国土法 届出不要

    この情報は2025年10月25日当社物件システムのデータにもとづくものであり、次回更新予定日は2025年11月08日です。