• おすすめ物件
  • 新着
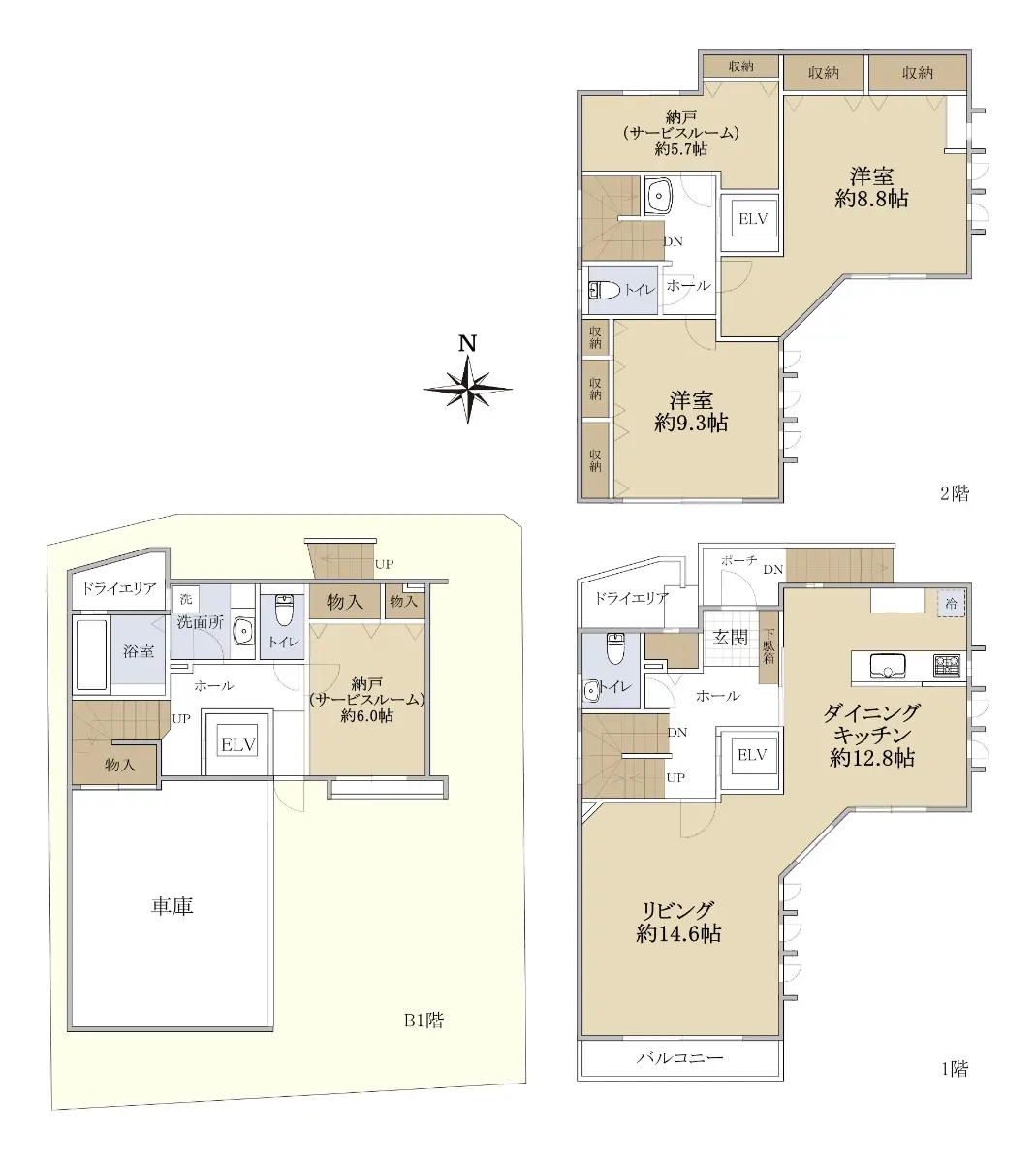
建物面積
189.84 m2
(約57.42坪)
間取り
2SLDK
※Sはサービスルーム(納戸)
築年月
2003年05月

中古一戸建て

  • 新着
2億9,800万円

目黒区自由が丘3丁目戸建

中古一戸建て

お気に入り 2

◆目黒区自由が丘アドレス◆三井ハウス施工の注文住宅◆

東京都目黒区自由が丘3丁目

建物面積189.84m2(約57.42坪)・間取り2SLDK ※Sはサービスルーム(納戸)・2003年05月築

借入希望金額や金利を入力すると
返済計画を組み立てることができます。

ローンシミュレーション結果

毎月返済額
ボーナス月返済額
年間返済額
月々のお支払い

(ボーナス月お支払い額 ¥円)
ローン
  • 別途月額費用がかかる場合があります。詳しくは営業担当にお問い合わせください。

住宅ローンの詳細は三井住友銀行 のホームページをご覧ください。

  • このシミュレーションは、借入れを保証するものではありません。「免責事項」をご確認の上、ご利用ください。
  • ボーナス返済額の上限は、金融機関によって異なります。
  • ご購入にあたっては別途諸費用等が必要です。詳しくは営業担当にお問合せください。

金利:2026年4月時点のものです。

物件のポイント

物件の特徴

  • 都市ガス
    都市ガス
  • 床暖房
    床暖房
  • 追焚機能
    追焚機能
  • トイレ2箇所
    トイレ2箇所
  • 床下収納
    床下収納
  • 浄水器
    浄水器
  • 食器洗浄乾燥機
    食器洗浄乾燥機
  • 浴室乾燥機
    浴室乾燥機
  • 複層ガラス
    複層ガラス
  • TVモニタ付きインターホン
    TVモニタ付きインターホン
  • 駐車場3台分
    駐車場3台分
  • 24時間換気システム
    24時間換気システム
  • 都市ガス
    都市ガス
  • 床暖房
    床暖房
  • 追焚機能
    追焚機能
  • トイレ2箇所
    トイレ2箇所
  • 床下収納
    床下収納
  • 浄水器
    浄水器
  • 食器洗浄乾燥機
    食器洗浄乾燥機
  • 浴室乾燥機
    浴室乾燥機
  • 複層ガラス
    複層ガラス
  • TVモニタ付きインターホン
    TVモニタ付きインターホン
  • 駐車場3台分
    駐車場3台分
  • 24時間換気システム
    24時間換気システム
  • 都市ガス
  • 上水道
  • 下水道
  • 床暖房
  • 追焚機能
  • トイレ2箇所
  • バス・トイレ別
  • 温水洗浄便座
  • 収納スペース
  • 床下収納
  • システムキッチン
  • 浄水器
  • 食器洗浄乾燥機
  • 洗面所
  • 洗面台
  • シャンプードレッサー
  • 浴室乾燥機
  • 複層ガラス
  • 自動ロック
  • TVモニタ付きインターホン
  • 駐車場3台分
  • 外観タイル張り
  • 24時間換気システム
  • バス1坪以上
  • 主寝室8畳以上
  • 納戸
  • 駐車場有
  • ホームエレベータ
  • 土地面積30坪以上
    リフォーム

    ●2025年07月/ユニットバス一式新規交換、浴室乾燥機交換

    ●2025年01月/キッチン交換、食洗機交換、コンロ交換、レンジフード交換

    立地・周辺環境

    2沿線以上利用可|低層住居専用地域|容積率100%以上|小学校まで徒歩10分以内|スーパーまで徒歩10分以内|コンビニまで徒歩5分以内|防火・準防火|前面道路公道

    セールスポイント

    【目黒区自由が丘3丁目戸建】

    ◎交通アクセス
    ◇東急東横線「自由が丘」駅徒歩11分
    ◇東急大井町線「自由が丘」駅徒歩11分

    ◎オススメポイント
    ◇再開発の進む自由が丘駅徒歩圏のアクセス良好な立地
    ◇学園通りから離れた第一種低層住居専用地域の閑静な住宅街
    ◇東急東横線・東急大井町線の2路線利用可能
    ◇2003年(平成15年)5月築、三井ハウス施工の注文住宅
    ◇東道路、南向き住戸につき陽当たり良好
    ◇窓が多く設置されており、開放感あり
    ◇ホームエレベーターあり(メーカーの定期点検実施済)

    ◎リフォーム履歴あり
    ・2025年7月:バス一式新規交換、浴室乾燥機交換
    ・2025年1月:キッチン交換、食洗機交換、コンロ交換、レンジフード交換

    ◎LIFEINFORMATION

    ・セブンイレブン自由が丘学園通り店(約230m)
    ・ライフ目黒八雲店(約340m)
    ・自由が丘内科クリニック(約480m)
    ・自由が丘公園(約450m)
    ・目黒区立宮前小学校(約450m)

    担当からのひとこと

    ご覧いただきありがとうございます。
    自由が丘3丁目アドレスに佇む「自由が丘」駅徒歩11分の戸建です。

    2003年(平成15年)5月築、三井ハウス施工の注文住宅で、しっかりとした造りとなっております。
    地下1階部分に半地下の車庫(車種による)がございます。

    室内の見学希望はお気軽にお申し付けください。周辺環境に詳しくないお客様でも丁寧に説明いたします。

    他にも条件に合いそうな周辺物件(マンション、戸建問わず)も紹介させていただきますので、まずはお客様のご希望をお聞かせください。
    別途、お客様のご要望に応じてリフォームのご相談も承ります。


    不動産の売買は人生のうちで最も大きなお買い物の一つです。まずは不安を払拭することからスタートしましょう。
    物件の検討については、実際に現地をご覧いただくことをおすすめいたしますが、まずは資料請求からというお客様も大歓迎です。

    物件の詳細・ご相談につきましては、【担当:後藤】までお気軽にお問い合わせください。まずは、お問い合わせいただければ幸いです。きっとお役に立てる情報を、他にも提供できると思います。

    <当地域で売却をご検討中の皆様へ>
    当地域は、自由が丘営業センターの重点営業地域です。売却をご検討の方は是非一度お気軽にご相談ください。
    もちろん秘密厳守で査定やご相談は無料です。
    @フリーコール:0120−492−374
    A無料相談FAX:03−3724−1145

    皆様からのお問い合わせ、心よりお待ちしております。

    ・セブンイレブン自由が丘学園通り店 徒歩3分(約230m)
    ・ライフ目黒八雲店 徒歩5分(約340m)
    ・自由が丘内科クリニック 徒歩6分(約480m)
    ・自由が丘公園 徒歩6分(約450m)
    ・目黒区立宮前小学校 徒歩6分(約450m)

    物件詳細

    物件名 目黒区自由が丘3丁目戸建
    物件番号 16462006
    所在地 東京都目黒区自由が丘3丁目
    価格
    2億9,800万円
    交通 東急東横線自由が丘」駅徒歩11 分
    東急大井町線自由が丘」駅徒歩11 分
    間取り 2SLDK
    ※Sはサービスルーム(納戸)
    建物面積 189.84m2(約57.42坪)
    土地面積 135.40m2(約40.95坪)※公簿
    階数
    構造
    地上2階地下1階建て
    木造
    築年月 2003年05月
    地目
    地勢
    宅地
    平坦
    接道状況 一方道路・東5.1m(公道)接面12.3m
    建ぺい率 50%
    容積率 100%
    都市計画 市街化区域
    用途地域 第1種低層住居専用地域
    地域・地区 準防火地域
    引渡時期 相談
    現況 居住中
    駐車場 有り/屋根あり
    土地権利 所有権
    取引態様 仲介
    国土法 届出不要

    この情報は2026年04月18日当社物件システムのデータにもとづくものであり、次回更新予定日は2026年05月02日です。