• 新着
建物面積
105.57 m2
(約31.93坪)
間取り
3SLDK
※Sはサービスルーム(納戸)
築年月
2026年06月

新築一戸建て

  • 新着
8,590万円

練馬区谷原5丁目新築戸建て

新築一戸建て

お気に入り 2

石神井公園駅徒歩12分 閑静な住宅街に佇む3SLDKの新築戸建て

東京都練馬区谷原5丁目

建物面積105.57m2(約31.93坪)・間取り3SLDK ※Sはサービスルーム(納戸)・2026年06月築

借入希望金額や金利を入力すると
返済計画を組み立てることができます。

ローンシミュレーション結果

毎月返済額
ボーナス月返済額
年間返済額
月々のお支払い

(ボーナス月お支払い額 ¥円)
ローン
  • 別途月額費用がかかる場合があります。詳しくは営業担当にお問い合わせください。

住宅ローンの詳細は三井住友銀行 のホームページをご覧ください。

  • このシミュレーションは、借入れを保証するものではありません。「免責事項」をご確認の上、ご利用ください。
  • ボーナス返済額の上限は、金融機関によって異なります。
  • ご購入にあたっては別途諸費用等が必要です。詳しくは営業担当にお問合せください。

金利:2026年4月時点のものです。

物件のポイント

物件の特徴

  • 都市ガス
    都市ガス
  • 床暖房
    床暖房
  • 追焚機能
    追焚機能
  • トイレ2箇所
    トイレ2箇所
  • カウンターキッチン
    カウンターキッチン
  • 食器洗浄乾燥機
    食器洗浄乾燥機
  • 浴室乾燥機
    浴室乾燥機
  • TVモニタ付きインターホン
    TVモニタ付きインターホン
  • 24時間換気システム
    24時間換気システム
  • 納戸
    納戸
  • 南道路(南東・南西含む)
    南道路(南東・南西含む)
  • 低層住居専用地域
    低層住居専用地域
  • 都市ガス
    都市ガス
  • 床暖房
    床暖房
  • 追焚機能
    追焚機能
  • トイレ2箇所
    トイレ2箇所
  • カウンターキッチン
    カウンターキッチン
  • 食器洗浄乾燥機
    食器洗浄乾燥機
  • 浴室乾燥機
    浴室乾燥機
  • TVモニタ付きインターホン
    TVモニタ付きインターホン
  • 24時間換気システム
    24時間換気システム
  • 納戸
    納戸
  • 南道路(南東・南西含む)
    南道路(南東・南西含む)
  • 低層住居専用地域
    低層住居専用地域
  • 都市ガス
  • 上水道
  • 下水道
  • 床暖房
  • 追焚機能
  • トイレ2箇所
  • バス・トイレ別
  • ガスキッチン
  • システムキッチン
  • カウンターキッチン
  • 食器洗浄乾燥機
  • 浴室乾燥機
  • TVモニタ付きインターホン
  • 24時間換気システム
  • 納戸
  • 駐車場有
  • 新築
  • セットバックなし・済み
    リフォーム

    --

    立地・周辺環境

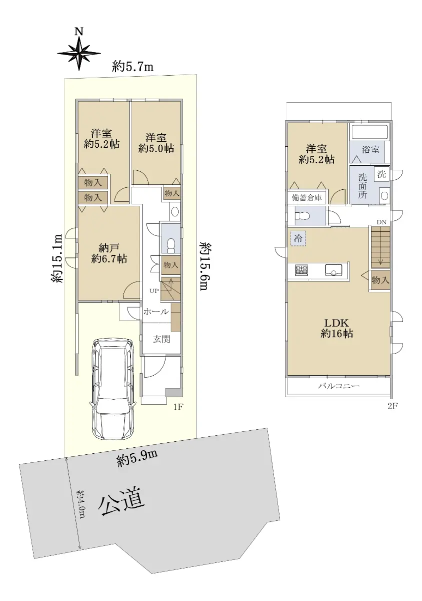
    南道路(南東・南西含む)|低層住居専用地域|容積率100%以上|前面道路公道

    セールスポイント

    【物件概要】
    ・土地面積:93.40u(28.25坪)
    ・延床面積:105.57u
    ・1F:55.89u 2F:49.68u
    ・3SLDK
    ・西武池袋線:「石神井公園」駅徒歩12分
    ・公道に接する土地
    ・南側道路:幅員約4.0m
    ・第1種低層住居専用地域
    ・建ぺい率:50%
    ・容積率:100%
    ・準防火地域


    【設備セールスポイント】
    ・LDK約16.0帖
    ・全居室5.0帖以上
    ・各居室収納あり
    ・床暖房あり
    ・トイレ2か所

    ・浴室乾燥機
    ・24時間換気システム
    ・シャッター(手動)
    ・床下収納
    ・太陽光発電システム
    ●ライフインフォメーション●

    ・区立谷原小学校まで約800m 徒歩10分
    ・区立谷原中学校まで約1200m 徒歩15分
    ・西武池袋線「石神井公園」駅まで約950m 徒歩12分
    ・エミオ石神井公園まで約950m 徒歩12分
    ・セブンイレブン練馬三原台1丁目店まで約200m 徒歩3分
    ・セブンイレブン練馬石神井町2丁目店まで約700m 徒歩9分
    ・ファミリーマート石神井町2丁目店まで約350m 徒歩5分
    ・練馬高野台郵便局まで約170m 徒歩3分

    担当からのひとこと

    この度は『練馬区谷原5丁目新築戸建て』のホームページをご覧いただきありがとうございます。

    本物件は、練馬区谷原5丁目に位置し住宅街に存する、93.40u(28.25坪)の土地に建築予定の
    延床面積:105.57u、1F:55.89u 2F:49.68uの3SLDK新築戸建てでございます。
    西武池袋線「石神井公園」駅徒歩12分の利便性となっており、周辺環境も豊富です。


    物件に関することやその他不動産の購入に関するご質問等ございましたら
    お気軽に石神井営業センター(0120-491-587)【 岩崎 】までお問い合わせください。


    ◆◆お買い替えによるご自宅の無料査定実施中◆◆
    今お住まいのご自宅からお買い替えを検討している
    お客様がいらっしゃいましたらお気軽にお問い合わせください。
    ご自宅の無料査定、無料相談は随時承っております。
    他地域にご所有の遊休地やビル、アパート等、不動産に関することは
    お気軽に岩崎までお問い合わせください。

    ―不動産の購入を検討中のお客様へ−
    物件のご検討については、一度現地を見ていただく事をお勧めします。
    間取り図面や写真では判断できない部分もあります。
    現地をご覧頂くことで周辺環境や室内の状況等を確認いただくだけでなく、
    担当者より、物件の長所、短所や購入の流れ等を詳しくご説明させて頂きます。
    内覧をご希望のお客様はお気軽にお問い合わせください。

    --

    物件詳細

    物件名 練馬区谷原5丁目新築戸建て
    物件番号 16482002
    所在地 東京都練馬区谷原5丁目
    価格
    8,590万円
    交通 西武池袋・豊島線石神井公園」駅徒歩12 分
    間取り 3SLDK
    ※Sはサービスルーム(納戸)
    建物面積 105.57m2(約31.93坪)
    土地面積 93.40m2(約28.25坪)※公簿
    階数
    構造
    地上2階建て
    木造
    築年月 2026年06月
    地目
    地勢
    宅地
    平坦
    接道状況 一方道路・南4m(公道)接面5.9m
    建ぺい率 50%
    容積率 100%
    都市計画 市街化区域
    用途地域 第1種低層住居専用地域
    引渡時期 2026年07月中旬
    現況 未完成
    駐車場 有り
    土地権利 所有権
    取引態様 仲介
    国土法 届出不要
    建築確認番号 第HPA-26-03204-1号
    備考
    • ・カースペース1台分有り※車種による

    この情報は2026年04月28日当社物件システムのデータにもとづくものであり、次回更新予定日は2026年05月12日です。