建物面積
243.41 m2
(約73.63坪)
間取り
1SLDK
※Sはサービスルーム(納戸)
築年月
築年月不詳

中古一戸建て

1億3,000万円

明石市松江店舗付戸建

中古一戸建て

お気に入り 1

◇オーシャンビューの店舗付住宅、JR山陽本線「土山」駅まで徒歩6分!

兵庫県明石市松江

建物面積243.41m2(約73.63坪)・間取り1SLDK ※Sはサービスルーム(納戸)・築年月不詳

借入希望金額や金利を入力すると
返済計画を組み立てることができます。

ローンシミュレーション結果

毎月返済額
ボーナス月返済額
年間返済額
月々のお支払い

(ボーナス月お支払い額 ¥円)
ローン
  • 別途月額費用がかかる場合があります。詳しくは営業担当にお問い合わせください。

住宅ローンの詳細は三井住友銀行 のホームページをご覧ください。

  • このシミュレーションは、借入れを保証するものではありません。「免責事項」をご確認の上、ご利用ください。
  • ボーナス返済額の上限は、金融機関によって異なります。
  • ご購入にあたっては別途諸費用等が必要です。詳しくは営業担当にお問合せください。

金利:2026年4月時点のものです。

物件のポイント

物件の特徴

  • 地下室
    地下室
  • 主寝室8畳以上
    主寝室8畳以上
  • 納戸
    納戸
  • 容積率100%以上
    容積率100%以上
  • 前面道路幅員6m以上
    前面道路幅員6m以上
  • 第一種住居地域
    第一種住居地域
  • 前面道路公道
    前面道路公道
  • 地下室
    地下室
  • 主寝室8畳以上
    主寝室8畳以上
  • 納戸
    納戸
  • 容積率100%以上
    容積率100%以上
  • 前面道路幅員6m以上
    前面道路幅員6m以上
  • 第一種住居地域
    第一種住居地域
  • 前面道路公道
    前面道路公道
  • プロパンガス
  • 上水道
  • 下水道
  • バス・トイレ別
  • シャワー
  • 洗面所
  • 洗面台
  • 地下室
  • 主寝室8畳以上
  • 納戸
    リフォーム

    --

    立地・周辺環境

    容積率100%以上|前面道路幅員6m以上|第一種住居地域|前面道路公道

    セールスポイント

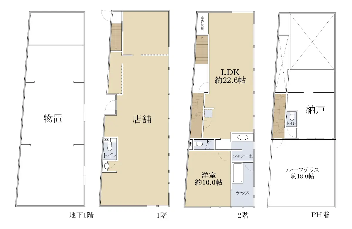
    ◆間取り:1SLDK+店舗+地下(物置)
    ◆2階に広々としたLDK約22.6帖
    ◆1階店舗はオーシャンビュー(天候による)
    ◆PH階には約18.0帖のルーフテラスあり
    ◆たっぷりの陽光に包まれる明るい住まい
    ◆敷地面積:97.82u(29.59坪)
    ◆建物面積:243.41u(73.63坪)
    (地下:77.65u、1階:76.35u、2階:71.03u、3階18.38u)
    ◆北東側幅員約7.0m公道に面しています
    【周辺環境】
    ・マルアイ貴崎店まで約890m(徒歩12分)
    ・ローソン明石南貴崎店まで約690m(徒歩9分)
    ・スギドラッグ明石松江店まで約440m(徒歩6分)
    ・明石貴崎郵便局まで約960m(徒歩12分)
    ・明海病院まで約650m(徒歩9分)
    ・藤江小学校まで約840m(徒歩11分)
    ・望海中学校まで約1700m(徒歩22分)

    担当からのひとこと

    物件に関する詳細はお気軽にお問合せください。

    ご内覧のご予約・物件の詳細お問い合わせは担当の「なかひら」までお気軽にお問合せ下さい。
    【フリーコール 0120-312-135】 お問合せお待ちしております。

    ・マルアイ貴崎店 徒歩12分(約890m)
    ・ローソン明石南貴崎店 徒歩9分(約690m)
    ・明海病院 徒歩9分(約650m)
    ・藤江小学校 徒歩11分(約840m)
    ・望海中学校 徒歩22分(約1700m)

    物件詳細

    物件名 明石市松江店舗付戸建
    物件番号 35272185
    所在地 兵庫県明石市松江
    価格
    1億3,000万円
    交通 山陽電気鉄道本線林崎松江海岸」駅徒歩10 分
    間取り 1SLDK
    ※Sはサービスルーム(納戸)
    建物面積 243.41m2(約73.63坪)
    土地面積 97.82m2(約29.59坪)※公簿
    階数
    構造
    地上3階地下1階建て
    鉄筋コンクリート造
    築年月 築年月不詳
    地目
    地勢
    宅地
    接道状況 一方道路・北東7m(公道)接面16.8m
    建ぺい率 60%
    容積率 200%
    都市計画 市街化区域
    用途地域 第1種住居地域
    地域・地区 宅地造成規制区域、建築基準法第22条区域
    引渡時期 相談
    現況 居住中
    駐車場 無し
    土地権利 所有権
    取引態様 仲介
    国土法 届出不要
    備考
    • ・1987年月日不詳建築
    • ・建物面積(その他)は地下1階(物置)になります
    • ・建物面積に地下部分77.65uを含みます

    この情報は2026年04月12日当社物件システムのデータにもとづくものであり、次回更新予定日は2026年04月26日です。