建物面積
190.74 m2
(約57.69坪)
間取り
3SLDK
※Sはサービスルーム(納戸)
築年月
2003年03月

中古一戸建て

9,980万円

京田辺市山手南一丁目戸建

中古一戸建て

松井山手駅徒歩6分 

京都府京田辺市山手南1丁目

建物面積190.74m2(約57.69坪)・間取り3SLDK ※Sはサービスルーム(納戸)・2003年03月築

借入希望金額や金利を入力すると
返済計画を組み立てることができます。

ローンシミュレーション結果

毎月返済額
ボーナス月返済額
年間返済額
月々のお支払い

(ボーナス月お支払い額 ¥円)
ローン
  • 別途月額費用がかかる場合があります。詳しくは営業担当にお問い合わせください。

住宅ローンの詳細は三井住友銀行 のホームページをご覧ください。

  • このシミュレーションは、借入れを保証するものではありません。「免責事項」をご確認の上、ご利用ください。
  • ボーナス返済額の上限は、金融機関によって異なります。
  • ご購入にあたっては別途諸費用等が必要です。詳しくは営業担当にお問合せください。

金利:2026年4月時点のものです。

物件のポイント

物件の特徴

  • 都市ガス
    都市ガス
  • トイレ2箇所
    トイレ2箇所
  • カウンターキッチン
    カウンターキッチン
  • 駐車場3台分
    駐車場3台分
  • バス1坪以上
    バス1坪以上
  • 納戸
    納戸
  • 角地
    角地
  • 南道路(南東・南西含む)
    南道路(南東・南西含む)
  • 容積率100%以上
    容積率100%以上
  • 駐車場有
    駐車場有
  • 前面道路幅員6m以上
    前面道路幅員6m以上
  • 第一種中高層住居専用地域
    第一種中高層住居専用地域
  • 都市ガス
    都市ガス
  • トイレ2箇所
    トイレ2箇所
  • カウンターキッチン
    カウンターキッチン
  • 駐車場3台分
    駐車場3台分
  • バス1坪以上
    バス1坪以上
  • 納戸
    納戸
  • 角地
    角地
  • 南道路(南東・南西含む)
    南道路(南東・南西含む)
  • 容積率100%以上
    容積率100%以上
  • 駐車場有
    駐車場有
  • 前面道路幅員6m以上
    前面道路幅員6m以上
  • 第一種中高層住居専用地域
    第一種中高層住居専用地域
  • 都市ガス
  • 上水道
  • 下水道
  • トイレ2箇所
  • カウンターキッチン
  • ルーフバルコニー
  • 駐車場3台分
  • バス1坪以上
  • 納戸
  • 駐車場有
  • 土地面積50坪以上
    リフォーム

    --

    立地・周辺環境

    角地|南道路(南東・南西含む)|容積率100%以上|前面道路幅員6m以上|第一種中高層住居専用地域|前面道路公道

    セールスポイント

    事務所兼居宅 三方向道路に面した敷地
    閑静な街並みの松井山手地区地区計画区域内B地区
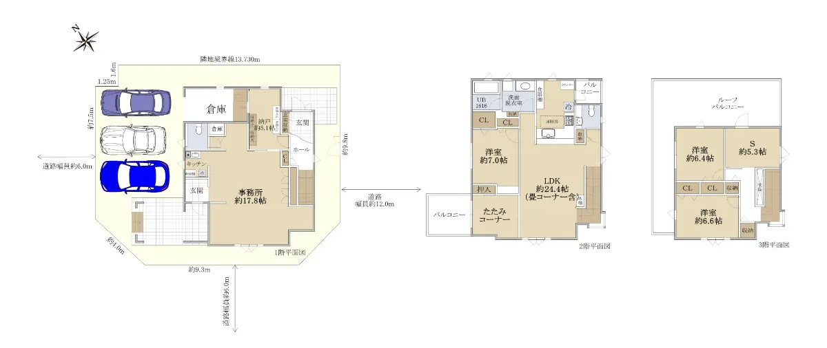
    一階事務所は居宅とは独立しており、倉庫や納戸もあります。
    二階リビングダイニングキッチンは建具、フローリングは無垢材仕様
    3階にはルーフバルコニーがあります。
    駐車場は3台駐車可能(車種による)落ち着いた街並みでありながら、松井山手駅まで平坦な道のりで徒歩6分

    --

    物件詳細

    物件名 京田辺市山手南一丁目戸建
    物件番号 35322100
    所在地 京都府京田辺市山手南1丁目
    価格
    9,980万円
    交通 JR片町線(学研都市線)松井山手」駅徒歩6 分
    間取り 3SLDK
    ※Sはサービスルーム(納戸)
    建物面積 190.74m2(約57.69坪)
    土地面積 180.03m2(約54.45坪)※公簿
    階数
    構造
    地上3階建て
    木造
    築年月 2003年03月
    地目
    地勢
    宅地
    平坦
    接道状況 三方道路・南西6m(公道)接面9.3m/北西6m(公道)接面7.5m/南東12m(公道)接面10m
    建ぺい率 60%
    容積率 200%
    都市計画 市街化区域
    用途地域 第1種中高層住居専用地域
    地域・地区 その他/松井山手地区地区計画
    引渡時期 相談
    現況 居住中
    駐車場 有り
    土地権利 所有権
    取引態様 仲介
    国土法 届出不要

    この情報は2026年03月27日当社物件システムのデータにもとづくものであり、次回更新予定日は2026年04月10日です。