建物面積
242.15 m2
(約73.25坪)
間取り
7LDK
築年月
1979年06月

中古一戸建て

8,990万円

長岡京市梅が丘二丁目 戸建

中古一戸建て

お気に入り 2

☆土地面積約105.70坪! ☆阪急京都線『長岡天神』駅徒歩13分!

京都府長岡京市梅が丘2丁目

建物面積242.15m2(約73.25坪)・間取り7LDK・1979年06月築

借入希望金額や金利を入力すると
返済計画を組み立てることができます。

ローンシミュレーション結果

毎月返済額
ボーナス月返済額
年間返済額
月々のお支払い

(ボーナス月お支払い額 ¥円)
ローン
  • 別途月額費用がかかる場合があります。詳しくは営業担当にお問い合わせください。

住宅ローンの詳細は三井住友銀行 のホームページをご覧ください。

  • このシミュレーションは、借入れを保証するものではありません。「免責事項」をご確認の上、ご利用ください。
  • ボーナス返済額の上限は、金融機関によって異なります。
  • ご購入にあたっては別途諸費用等が必要です。詳しくは営業担当にお問合せください。

金利:2026年4月時点のものです。

物件のポイント

物件の特徴

  • 都市ガス
    都市ガス
  • トイレ2箇所
    トイレ2箇所
  • 庭
  • 地下室
    地下室
  • 低層住居専用地域
    低層住居専用地域
  • 駐車場有
    駐車場有
  • 土地面積100坪以上
    土地面積100坪以上
  • 前面道路公道
    前面道路公道
  • 都市ガス
    都市ガス
  • トイレ2箇所
    トイレ2箇所
  • 庭
  • 地下室
    地下室
  • 低層住居専用地域
    低層住居専用地域
  • 駐車場有
    駐車場有
  • 土地面積100坪以上
    土地面積100坪以上
  • 前面道路公道
    前面道路公道
  • 都市ガス
  • 上水道
  • 下水道
  • トイレ2箇所
  • 温水洗浄便座
  • 洗面所
  • 洗面台
  • 地下室
  • 駐車場有
  • 土地面積100坪以上
    リフォーム

    --

    立地・周辺環境

    低層住居専用地域|前面道路公道

    セールスポイント

    ■区画の整った閑静な住宅街
    ■土地面積約105.70坪
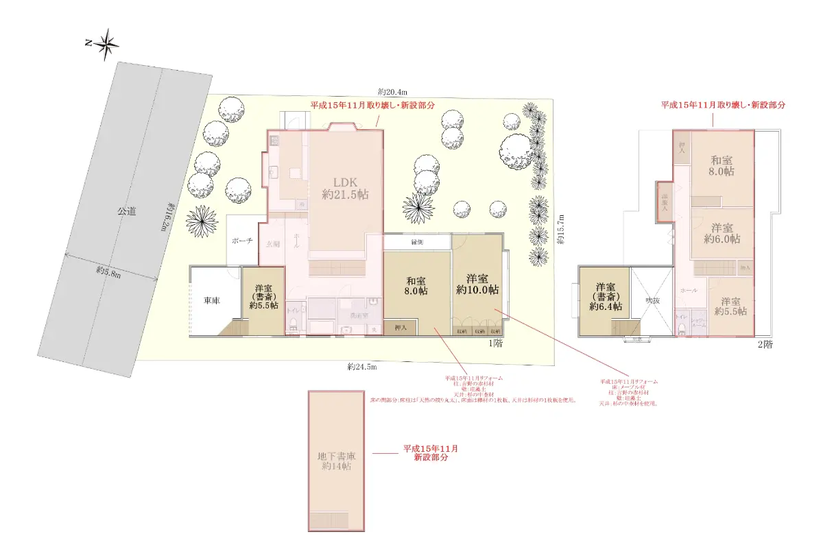
    ■7LDK+地下書庫の間取り
    ■約21.5帖の広々としたLDK
    ■前面道路幅員約5.8m
    ◇◇◇こだわりの詰まった邸宅です◇◇◇
    〜平成15年11月建物一部取り壊し・新設工事、リフォーム歴あり〜
    【建物一部取り壊し・増築工事内容(住友林業施工)】
    車庫部分及び1階の和室及び寝室部分を除く建物部分を取り壊し・新設・地下室新設工事。

    構造材・天井・壁・床を新調。
    床材:天然のメープル材のフローリングを使用。
    壁面:天然素材の珪藻土壁を使用。
    天井:天然素材の杉の中杢材、廊下及び階段、2階の洋室はアメリカ産赤杉材を使用。
    窓 :防犯ガラスを使用。

    ・システムキッチン新調 ・浴室新調 
    ・洗面化粧台新調 ・トイレ新調 等々  


    【周辺環境】
    ・長岡第五小学校まで約730m
    ・長岡第四中学校まで約1000m
    ・長岡公園まで約360m
    ・デイリーヤマザキ長岡京友岡店まで約360m
    ・ウエルシア薬局ダックス長岡京友岡店まで約580m
    ・長岡京花山郵便局まで約330m

    担当からのひとこと

    この度は、「長岡京市梅が丘二丁目戸建」のページをご覧いただき、誠にありがとうございます。

    是非とも一度、現地周辺環境をご覧下さいませ!

    ■詳細のご質問や現地ご案内をご希望の際は、担当:友重(トモシゲ)までお問合せ下さい。
    ■お客様専用のフリーコールは、0120-317-713 です。
    ■資料請求等のお問い合わせも、上記フリーコールまでお気軽にどうぞ!

    すみふの仲介ステップ江坂営業センター
    大阪メトロ御堂筋線「江坂駅」徒歩3分の立地店舗!

    安心・安全なお取引☆豊富な情報量で全力でサポート致します!

    どんな些細な事でも、お気軽に担当:友重(トモシゲ)迄☆

    --

    物件詳細

    物件名 長岡京市梅が丘二丁目 戸建
    物件番号 35732047
    所在地 京都府長岡京市梅が丘2丁目
    価格
    8,990万円
    交通 阪急京都線長岡天神」駅徒歩13 分
    間取り 7LDK
    建物面積 242.15m2(約73.25坪)
    土地面積 349.45m2(約105.70坪)※公簿
    階数
    構造
    地上2階地下1階建て
    木造
    築年月 1979年06月
    地目
    地勢
    宅地
    高台
    接道状況 一方道路・北東5.8m(公道)接面16.2m
    建ぺい率 40%
    容積率 60%
    都市計画 市街化区域
    用途地域 第1種低層住居専用地域
    地域・地区 高度地区
    引渡時期 相談
    現況 居住中
    駐車場 有り
    土地権利 所有権
    取引態様 仲介
    国土法 届出不要
    備考
    • ・駐車場は車種による
    • ・間取り:7LDK+地下書庫
    • ・建物面積に車庫部分11.52uを含みます。建物面積(その他)地下部分。
    • ・建物構造:木・鉄筋コンクリート造かわらぶき地下1階付2階建

    この情報は2026年04月03日当社物件システムのデータにもとづくものであり、次回更新予定日は2026年04月17日です。