• おすすめ物件
建物面積
155.99 m2
(約47.18坪)
間取り
5LDK
築年月
1999年04月

中古一戸建て

4,480万円

名取市増田7丁目戸建

中古一戸建て

お気に入り 2

<東北セキスイハイム施工 駐車スペース4台分有(車種によります)>

宮城県名取市増田7丁目

建物面積155.99m2(約47.18坪)・間取り5LDK・1999年04月築

借入希望金額や金利を入力すると
返済計画を組み立てることができます。

ローンシミュレーション結果

毎月返済額
ボーナス月返済額
年間返済額
月々のお支払い

(ボーナス月お支払い額 ¥円)
ローン
  • 別途月額費用がかかる場合があります。詳しくは営業担当にお問い合わせください。

住宅ローンの詳細は三井住友銀行 のホームページをご覧ください。

  • このシミュレーションは、借入れを保証するものではありません。「免責事項」をご確認の上、ご利用ください。
  • ボーナス返済額の上限は、金融機関によって異なります。
  • ご購入にあたっては別途諸費用等が必要です。詳しくは営業担当にお問合せください。

金利:2025年11月時点のものです。

物件のポイント

物件の特徴

  • トイレ2箇所
    トイレ2箇所
  • 床下収納
    床下収納
  • オール電化
    オール電化
  • 納戸
    納戸
  • 角地
    角地
  • スーパーまで徒歩10分以内
    スーパーまで徒歩10分以内
  • コンビニまで徒歩5分以内
    コンビニまで徒歩5分以内
  • 駐車場有
    駐車場有
  • 第一種住居地域
    第一種住居地域
  • セットバックなし・済み
    セットバックなし・済み
  • 土地面積50坪以上
    土地面積50坪以上
  • 前面道路公道
    前面道路公道
  • トイレ2箇所
    トイレ2箇所
  • 床下収納
    床下収納
  • オール電化
    オール電化
  • 納戸
    納戸
  • 角地
    角地
  • スーパーまで徒歩10分以内
    スーパーまで徒歩10分以内
  • コンビニまで徒歩5分以内
    コンビニまで徒歩5分以内
  • 駐車場有
    駐車場有
  • 第一種住居地域
    第一種住居地域
  • セットバックなし・済み
    セットバックなし・済み
  • 土地面積50坪以上
    土地面積50坪以上
  • 前面道路公道
    前面道路公道
  • 上水道
  • 下水道
  • トイレ2箇所
  • バス・トイレ別
  • 床下収納
  • 洗面所
  • 洗面台
  • オール電化
  • 納戸
  • 駐車場有
  • セットバックなし・済み
  • 土地面積50坪以上
    リフォーム

    --

    立地・周辺環境

    角地|スーパーまで徒歩10分以内|コンビニまで徒歩5分以内|第一種住居地域|前面道路公道

    セールスポイント

    ・東北本線「名取」駅まで徒歩11分
    ・施工:東北セキスイハイム
    ・1999年4月築
    ・北西角地
    ・敷地面積:259.05u(約78.36坪)
    ・建物面積:155.99u(約47.18坪)
    ・間取り:5LDK
    ・オール電化
    ・駐車スペース:4台分有り(車種によります)
    ・敷地内に「離れ」有り
     種類:居宅
     構造:木造亜鉛メッキ鋼板葺平家建
     床面積:13.24u
     1997年築

    〜周辺環境〜
    ・ローソン名取増田七丁目店 徒歩5分(約340m)
    ・名取増田郵便局 徒歩3分(約170m)
    ・名取市立増田小学校 徒歩11分(約850m)
    ・イオンエクスプレス名取駅前店 徒歩10分(約790m)

    担当からのひとこと

    ご覧いただきありがとうございます。

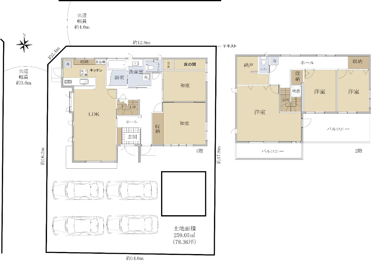
    本物件は、閑静な住宅街に位置する敷地面積約78.36坪、建物面積約47.18坪の戸建です。
    施工は東北セキスイハイムで、間取りは5LDKです。
    1階にはLDKの他、和室が2部屋ありゆとりがございます。
    また敷地内には「離れ」がございます。
    駐車スペースは4台分ございます。(車種によります)

    是非一度、現地にてご確認ください。
    お問合せは長町南営業センターの「長沢」までお待ちしております。

    ・イオンエクスプレス名取駅前店 徒歩10分(約790m)
    ・ローソン名取増田七丁目店 徒歩5分(約340m)
    ・名取増田郵便局 徒歩3分(約170m)
    ・毛利内科 徒歩6分(約460m)
    ・名取市立増田小学校 徒歩11分(約850m)

    物件詳細

    物件名 名取市増田7丁目戸建
    物件番号 95632038
    所在地 宮城県名取市増田7丁目
    価格
    4,480万円
    交通 東北本線名取」駅徒歩11 分
    間取り 5LDK
    建物面積 155.99m2(約47.18坪)
    土地面積 259.05m2(約78.36坪)※公簿/他に私道負担:4.48m2あり
    階数
    構造
    地上2階建て
    軽量鉄骨
    築年月 1999年04月
    地目
    地勢
    宅地
    接道状況 角地・北4m(公道)接面15.3m/西3m(公道)接面16.2m
    建ぺい率 60%
    容積率 160% ※容積率は、前面道路幅員による制限数値です。
    都市計画 市街化区域
    用途地域 第1種住居地域
    引渡時期 相談
    現況 居住中
    駐車場 有り
    土地権利 所有権
    取引態様 仲介
    国土法 届出不要
    備考
    • ・角地。ただし、建ぺい率は緩和されません。
    • ・LDK、洋室、和室の帖数は不明です。
    • ・カースペース4台分(車種によります)

    この情報は2025年11月03日当社物件システムのデータにもとづくものであり、次回更新予定日は2025年11月17日です。