• おすすめ物件
  • 新着
  • 投資向け
  • オーナーチェンジ
建物面積
96.47 m2
(約29.18坪)
間取り
4LDK
築年月
2017年04月

中古一戸建て

  • 新着
  • 投資向け
  • オーナーチェンジ
3,480万円

中川区二女子町3丁目戸建

中古一戸建て

●オーナーチェンジ物件 利回り約4.89%

愛知県名古屋市中川区二女子町3丁目

建物面積96.47m2(約29.18坪)・間取り4LDK・2017年04月築

物件のポイント

本物件は投資向け物件です

想定利回り
4.89 %
想定利回り
4.89 %
年間想定賃料等
170万4,000
月額賃料等
14万2,000
現在の賃貸状況
全部賃貸中
オーナーチェンジ
投資用・事業用不動産について
  • 賃料等の収入や利回りは、将来にわたり、確実に得られることを保証するものではありません。
  • 賃料等は、賃貸中のものについては現在の賃料等で、新築および空室または一部空き有のものについては、周辺の賃料相場に基づき満室となった場合を想定して表示しています。
  • 利回りは、現況または満室想定時の賃料等の収入に基づく単純利回り(賃料等の年間合計金額÷ 販売価格(税込))で、公租公課や維持管理費等の必要経費は控除されていません。

物件の特徴

  • 都市ガス
    都市ガス
  • トイレ2箇所
    トイレ2箇所
  • 駐車場2台分
    駐車場2台分
  • 主寝室8畳以上
    主寝室8畳以上
  • 容積率100%以上
    容積率100%以上
  • スーパーまで徒歩10分以内
    スーパーまで徒歩10分以内
  • コンビニまで徒歩5分以内
    コンビニまで徒歩5分以内
  • 公園まで徒歩5分以内
    公園まで徒歩5分以内
  • 駐車場有
    駐車場有
  • 準工業地域
    準工業地域
  • セットバックなし・済み
    セットバックなし・済み
  • 土地面積30坪以上
    土地面積30坪以上
  • 都市ガス
    都市ガス
  • トイレ2箇所
    トイレ2箇所
  • 駐車場2台分
    駐車場2台分
  • 主寝室8畳以上
    主寝室8畳以上
  • 容積率100%以上
    容積率100%以上
  • スーパーまで徒歩10分以内
    スーパーまで徒歩10分以内
  • コンビニまで徒歩5分以内
    コンビニまで徒歩5分以内
  • 公園まで徒歩5分以内
    公園まで徒歩5分以内
  • 駐車場有
    駐車場有
  • 準工業地域
    準工業地域
  • セットバックなし・済み
    セットバックなし・済み
  • 土地面積30坪以上
    土地面積30坪以上
  • 都市ガス
  • 上水道
  • 下水道
  • トイレ2箇所
  • バス・トイレ別
  • シャワー
  • 温水洗浄便座
  • 駐車場2台分
  • 主寝室8畳以上
  • 駐車場有
  • セットバックなし・済み
  • 土地面積30坪以上
    リフォーム

    --

    立地・周辺環境

    容積率100%以上|スーパーまで徒歩10分以内|コンビニまで徒歩5分以内|公園まで徒歩5分以内|準工業地域|防火・準防火|前面道路公道

    セールスポイント

    ●平成29年4月築
    ●土地面積:131.02u(39.63坪)
    ●建物面積:96.47u(29.18坪)
    ※2026年4月16日現在
    ・現況年間賃料:1704000円
    ・現況年間利回り:4.89%

    〜ライフインフォメーション〜
    ・JR東海道本線「尾頭橋」駅 徒歩19分(約1500m)
    ・ファミリーマート中川富川町店 徒歩5分(約330m)
    ・セブンイレブン名古屋八幡本通2丁目店 徒歩5分(約400m)
    ・ザ・ビッグエクスプレス五女子店 徒歩5分(約390m)
    ・二女子第二公園 徒歩1分(約60m)
    ・八幡小学校 徒歩14分(約1100m)
    ・八幡中学校 徒歩14分(約1100m)

    担当からのひとこと

    ご覧いただき、誠にありがとうございます。
    本物件は平成29年(2017年)4月築、土地面積131.02u(39.63坪)、建物面積96.47u(29.18坪)となっており、戸建住宅としてゆとりある設計です。
    また、投資用不動産として2026年4月16日現在の運用状況は以下の通りとなっております。
    現況年間賃料:1704000円
    現況年間利回り:4.89%
    建物のスペックと収益性のバランスが取れた内容となっております。

    【ライフインフォメーション:周辺環境の利便性について】
    物件周辺には、徒歩5分圏内に買い出し施設や公共スペースがございます。
    日常の買い物に欠かせないスーパー「ザ・ビッグエクスプレス五女子店」が徒歩5分(約390m)の距離にあり、生鮮食品等の調達がスムーズです。また、「ファミリーマート中川富川町店」まで徒歩5分(約330m)、「セブンイレブン名古屋八幡本通2丁目店」まで徒歩5分(約400m)と、2大コンビニエンスストアがいずれも近接しており、時間帯を問わず利便性を享受できます。

    憩いの場となる「二女子第二公園」は、物件から徒歩1分(約60m)に位置しています。お子様の遊び場やリフレッシュの場として適した距離です。教育施設については、「八幡小学校」および「八幡中学校」がいずれも徒歩14分(約1100m)となっており、落ち着いた住宅街の中を通学できる環境が整っています。
    交通アクセス
    JR東海道本線「尾頭橋」駅まで徒歩19分(約1500m)となっており、名古屋中心部へのアクセスも可能です。
    生活に必要な施設が半径500m圏内に多く点在しているため、周辺環境の充実度を重視される方にも適した立地条件です。

    ・八幡小学校 徒歩14分(約1100m)
    ・ザ・ビッグエクスプレス五女子店 徒歩5分(約390m)
    ・ファミリーマート中川富川町店 徒歩5分(約320m)
    ・二女子第二公園 徒歩1分(約60m)

    物件詳細

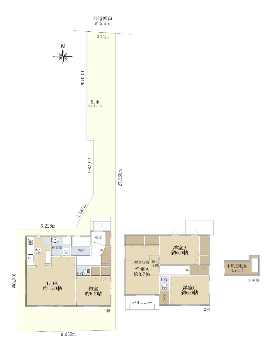
    物件名 中川区二女子町3丁目戸建
    物件番号 96712012
    所在地 愛知県名古屋市中川区二女子町3丁目
    価格
    3,480万円
    交通 東海道本線尾頭橋」駅徒歩19 分
    間取り 4LDK
    建物面積 96.47m2(約29.18坪)
    土地面積 131.02m2(約39.63坪)※公簿/路地状部分:37.34m2含む
    階数
    構造
    地上2階建て
    木造
    築年月 2017年04月
    地目
    地勢
    宅地
    平坦
    接道状況 一方道路・北5.5m(公道)接面2.7m
    建ぺい率 60%
    容積率 200%
    都市計画 市街化区域
    用途地域 準工業地域
    地域・地区 準防火地域/大規模集客施設制限地区、絶 対高31m高度地区、緑化地域
    引渡時期 相談
    現況 賃貸中
    駐車場 有り/台数2台/自走/屋根なし
    土地権利 所有権
    取引態様 仲介
    国土法 届出不要
    備考
    • ・【駐車場】車種による
    • ・本物件は物件写真の掲載をしておりません。

    この情報は2026年04月18日当社物件システムのデータにもとづくものであり、次回更新予定日は2026年05月02日です。