建物面積
97.20 m2
(約29.40坪)
間取り
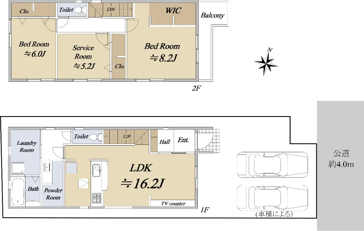
2SLDK
※Sはサービスルーム(納戸)
築年月
2026年03月

新築一戸建て

4,480万円

茨木市島2丁目 新築戸建1号棟

新築一戸建て

お気に入り 1

【すみふの仲介ステップ】2026年3月完成予定! 物件担当:藤井

大阪府茨木市島2丁目

建物面積97.20m2(約29.40坪)・間取り2SLDK ※Sはサービスルーム(納戸)・2026年03月築

借入希望金額や金利を入力すると
返済計画を組み立てることができます。

ローンシミュレーション結果

毎月返済額
ボーナス月返済額
年間返済額
月々のお支払い

(ボーナス月お支払い額 ¥円)
ローン
  • 別途月額費用がかかる場合があります。詳しくは営業担当にお問い合わせください。

住宅ローンの詳細は三井住友銀行 のホームページをご覧ください。

  • このシミュレーションは、借入れを保証するものではありません。「免責事項」をご確認の上、ご利用ください。
  • ボーナス返済額の上限は、金融機関によって異なります。
  • ご購入にあたっては別途諸費用等が必要です。詳しくは営業担当にお問合せください。

金利:2026年4月時点のものです。

物件のポイント

物件の特徴

  • 都市ガス
    都市ガス
  • 追焚機能
    追焚機能
  • トイレ2箇所
    トイレ2箇所
  • ウォークインクローゼット
    ウォークインクローゼット
  • カウンターキッチン
    カウンターキッチン
  • 浄水器
    浄水器
  • 浴室乾燥機
    浴室乾燥機
  • TVモニタ付きインターホン
    TVモニタ付きインターホン
  • 駐車場2台分
    駐車場2台分
  • 24時間換気システム
    24時間換気システム
  • 納戸
    納戸
  • 容積率100%以上
    容積率100%以上
  • 都市ガス
    都市ガス
  • 追焚機能
    追焚機能
  • トイレ2箇所
    トイレ2箇所
  • ウォークインクローゼット
    ウォークインクローゼット
  • カウンターキッチン
    カウンターキッチン
  • 浄水器
    浄水器
  • 浴室乾燥機
    浴室乾燥機
  • TVモニタ付きインターホン
    TVモニタ付きインターホン
  • 駐車場2台分
    駐車場2台分
  • 24時間換気システム
    24時間換気システム
  • 納戸
    納戸
  • 容積率100%以上
    容積率100%以上
  • 都市ガス
  • 上水道
  • 下水道
  • 追焚機能
  • トイレ2箇所
  • バス・トイレ別
  • シャワー
  • 温水洗浄便座
  • 収納スペース
  • ウォークインクローゼット
  • システムキッチン
  • カウンターキッチン
  • 浄水器
  • 洗面所
  • 洗面台
  • シャンプードレッサー
  • 浴室乾燥機
  • TVモニタ付きインターホン
  • 駐車場2台分
  • 24時間換気システム
  • 納戸
  • 駐車場有
  • 新築
  • セットバックなし・済み
  • 土地面積30坪以上
    リフォーム

    --

    立地・周辺環境

    容積率100%以上|小学校まで徒歩10分以内|スーパーまで徒歩10分以内|コンビニまで徒歩5分以内|第二種中高層住居専用地域|防火・準防火|前面道路公道

    セールスポイント

    ◇2026年3月完成予定の新築戸建
    ◇土地面積:108.88u(約32.9坪)
    ◇建物面積:97.20u(約29.4坪)
    ◇2SLDK+WIC
    ◇ランドリー付き
    ◇豊富な収納力
    ◇普通車2台駐車可能!(車種による)

    【主な仕様】
    ・TVモニター付きインターフォン
    ・浴室乾燥機
    ・洗浄便座
    ・床下収納
    ・24時間換気システム
    ・人感センサー
    ・シャンプードレッサー
    ・浄水器付きキッチン

    【周辺施設等】
    ・市立葦原小学校:約270m

    ・市立南中学校:約1200m
    ・食品館アプロ沢良宜店:約700m
    ・デイリーヤマザキ茨木島1丁目店:約400m
    ・キリン堂沢良宜店:約800m
    ・茨木沢良宜郵便局:約550m

    担当からのひとこと

    ◇◇不動産の購入をご検討中のお客様へ◇◇
    物件のご検討については、是非一度現地ご覧くださいませ。
    現地の雰囲気を感じて頂くこと等、間取図面や写真では判断できない部分もあります。
    現地をご覧いただく事で周辺環境や室内の状況等を確認いただくだけでなく、
    担当者より、物件の長所や短所、購入の流れ等を詳しくご説明させて頂きます。

    ◆◆ご所有不動産の無料査定実施中◆◆
    ご所有不動産の無料査定、無料相談を随時承っております。
    マンション、戸建、土地(建物付可)、ビル、アパート等、不動産に関することは
    お気軽に担当までお問い合わせください。


     住友不動産ステップ株式会社 茨木営業センター 担当:藤井海斗
     [お客様専用番号:0120-200-628]

    ・市立葦原小学校 徒歩4分(約270m)
    ・食品館アプロ沢良宜店 徒歩9分(約700m)
    ・デイリーヤマザキ茨木島1丁目店 徒歩5分(約400m)

    物件詳細

    物件名 茨木市島2丁目 新築戸建1号棟
    物件番号 C5512005
    所在地 大阪府茨木市島2丁目
    価格
    4,480万円
    交通 大阪モノレール本線沢良宜」駅徒歩15 分
    阪急京都線茨木市」駅バス18 分「島」バス停徒歩3 分
    間取り 2SLDK
    ※Sはサービスルーム(納戸)
    建物面積 97.20m2(約29.40坪)
    土地面積 108.88m2(約32.93坪)/セットバック済み
    階数
    構造
    地上2階建て
    木造
    築年月 2026年03月
    地目
    地勢
    宅地
    平坦
    接道状況 一方道路・東4m(公道)接面4.1m
    建ぺい率 60%
    容積率 160%
    都市計画 市街化区域
    用途地域 第2種中高層住居専用地域
    地域・地区 準防火地域/第二種高度地区、まちなみ景観区域
    引渡時期 2026年04月中旬
    現況 未完成
    駐車場 有り/台数2台
    土地権利 所有権
    取引態様 仲介
    国土法 届出不要
    建築確認番号 第KS125-0420-55828号
    備考
    • ・駐車スペース:車種による
    • ・容積率160%は前面道路幅員による制限数値です

    この情報は2026年04月05日当社物件システムのデータにもとづくものであり、次回更新予定日は2026年04月19日です。