買う衣笠駅の一戸建てを探す

現在の検索条件

  • 検索条件を保存
  • 登録した検索条件
横須賀線
検索条件 価格 : 下限なし〜上限なし 建物面積 : 下限なし 〜 上限なし 土地面積 : 下限なし 〜 上限なし 間取り : 指定なし 駅徒歩 : 指定なし 築年数 : 指定なし 検索条件を変更
こだわり条件 指定なし こだわり条件を変更

4件中1〜4件を表示

  • 画像を大きく表示
  • リストで表示

表示件数

並び替え

チェックした物件をまとめて

資料請求・お問い合わせ

〜よこすか森崎山の手リアンシティ旧分譲地内 住友林業施工の中古物件〜

  • 南道路(南西・南東含む)に接道
  • 低層住居専用地域に立地
  • 建物面積が100m?以上
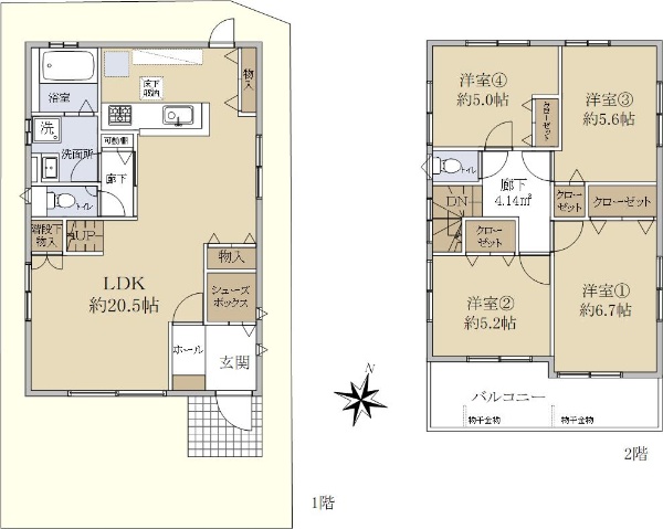
フロア画像を拡大する
画像枚数24枚
価格
3,880万円
所在地
神奈川県横須賀市森崎5丁目
交通

京急久里浜線北久里浜」駅バス12分徒歩3分

横須賀線衣笠」駅バス7分徒歩3分

間取り/建物面積
3SLDK / 105.16m²
土地面積
152.82m²
築年月
2015年11月築
  • 気になるリストへ
  • 比較リストへ

資料請求・お問い合わせ

〜2018年築 ☆南向き・整形地☆ 室内状態良好です!

  • 築10年以内
  • 南道路(南西・南東含む)に接道
  • 建物面積が100m?以上
フロア画像を拡大する
画像枚数13枚
価格
3,980万円
所在地
神奈川県横須賀市鶴が丘1丁目
交通

横須賀線衣笠」駅徒歩18分

間取り/建物面積
4LDK / 103.5m²
土地面積
155.9m²
築年月
2018年09月築
  • 気になるリストへ
  • 比較リストへ

資料請求・お問い合わせ

東南向きで、陽当たり良好なオーナーチェンジ中古戸建です。

  • 南道路(南西・南東含む)に接道
  • 低層住居専用地域に立地
フロア画像を拡大する
画像枚数11枚
価格
830万円
所在地
神奈川県横須賀市長坂3丁目
交通

横須賀線衣笠」駅バス16分徒歩9分

間取り/建物面積
3DK / 63.14m²
土地面積
181.7m²
築年月
1979年12月築
  • 気になるリストへ
  • 比較リストへ

資料請求・お問い合わせ

◎自然豊かな立地に佇む7LDKの戸建

  • 建物面積が100m?以上
フロア画像を拡大する
画像枚数10枚
価格
2,980万円
所在地
神奈川県横須賀市金谷1丁目
交通

横須賀線衣笠」駅徒歩18分

間取り/建物面積
7LDK / 151.15m²
土地面積
364.65m²
築年月
1989年06月築
  • 気になるリストへ
  • 比較リストへ

資料請求・お問い合わせ

チェックした物件をまとめて

資料請求・お問い合わせ

新着物件をメールでお知らせします

検索条件を登録すれば、その条件に合う新着物件をパソコン・携帯メール宛にお知らせします。
まずは、右の「検索条件登録」ボタンから、現在の検索条件を登録してください。

検索条件登録

  • 新着1週間以内に登録された物件
  • 価格更新1週間以内に価格が更新された物件
  • おすすめ物件営業センターのおすすめ物件
  • リフォーム済みリフォームやリノベーション済み
  • 駅徒歩10分以内駅徒歩10分以内
  • 築10年以内築10年以内
  • 南道路(南西・南東含む)南道路(南西・南東含む)に接道
  • 角地角地
  • 低層住居専用地域低層住居専用地域に立地
  • 建物面積100m²以上建物面積が100m²以上
  • 新築新築物件
  • 【現地見学】オープンハウス開催オープンハウス・予約制内覧会
  • 予告広告販売開始まで契約または予約の申し込みは出来ません