2017年2月築 / 3沿線利用可能 / 表面利回り4.21% ※オーナーチェンジ物件
物件のポイント
本物件は投資向け物件です
- 想定利回り
 - 4.21 %
 
- 想定利回り
 - 4.21 %
 
- 年間想定賃料等
 - 252万 円
 
- 月額賃料等
 - 21万 円
 
- 現在の賃貸状況
 - 
							全部賃貸中オーナーチェンジ
 
- 投資用・事業用不動産について
 - 
						
- 賃料等の収入や利回りは、将来にわたり、確実に得られることを保証するものではありません。
 - 賃料等は、賃貸中のものについては現在の賃料等で、新築および空室または一部空き有のものについては、周辺の賃料相場に基づき満室となった場合を想定して表示しています。
 - 利回りは、現況または満室想定時の賃料等の収入に基づく単純利回り(賃料等の年間合計金額÷ 販売価格(税込)×100%)で、公租公課や維持管理費等の必要経費は控除されていません。
 
 
物件の特徴
- 
				
- 都市ガス
 - 上水道
 - 下水道
 - 床暖房
 - 給湯
 - 追焚機能
 - バス・トイレ別
 - 温水洗浄便座
 - CATV
 - ウォークインクローゼット
 - ガスキッチン
 - カウンターキッチン
 - 食器洗浄乾燥機
 - ディスポーザー
 - 洗面所
 - 洗面台
 - 浴室乾燥機
 - エレベータ
 - モニター付きオートロック
 - インターネット対応
 - 24時間換気システム
 - スロップシンク
 - ペット可(但し、管理規約により一定の制限があります)
 - ペット相談(但し、管理規約により一定の制限があります)
 - 大規模(総戸数100戸以上)
 - 駐車場空有
 - 管理員日勤
 
 
- リフォーム
 - 
				
--
 
- 立地・周辺環境
 - 
				
2沿線以上利用可|スーパーまで徒歩10分以内|コンビニまで徒歩5分以内|公園まで徒歩5分以内
 
セールスポイント
【賃料】
・月額:  210,000円(2025年10月18日現在)
・年額:2,520,000円(2025年10月18日現在)
・利回り:4.21%
 【物件概要】
・築年月:2017年2月築
・専有面積:76.33u
・所在階:11階
・方位:西
【セールスポイント】
・総戸数300戸のビックコミュニティ
・ペデストリアンデッキで駅直結
 
【アクセス】
・京王相模原線「京王多摩センター」駅まで徒歩12分
・小田急多摩線「小田急多摩センター」駅まで徒歩12分
・小田急多摩線「唐木田」駅まで徒歩12分
・多摩モノレール「多摩センター」駅まで徒歩10分
【周辺環境】
〇多摩市立南鶴牧小学校 約860m(徒歩11分)
〇多摩市立鶴牧中学校 約840m(徒歩11分)
・ファミリーマート鶴牧鶴牧三丁目店 約280m(徒歩4分)
・多摩郵便局 約560m(徒歩7分)
・ココリア多摩センター約870m(徒歩11分)
・クロスガーデン多摩まで約550m(徒歩7分)
・鶴牧第3公園まで約20m(徒歩1分)
担当からのひとこと
物件に関するご質問は担当「高島」まで☆
物件の内見や類似物件のご紹介、資金計画書の作成は随時受け付けております!!
「物件を内見したい」
「現自宅の賃料と比較したい」
「月々〇〇円以内で抑えたいが可能か」
「金利は?」「どこの銀行がいい?」「効率的な買い方は?」
お客様それぞれのご希望に合った情報を提供いたします。
資料請求だけでもまずはお問い合わせください!
◎資金計画書 無理のない返済プランを提案します!
◎周辺環境レポート 地域の特性・周辺施設などの情報満載!
◎統計レポート 人口・世帯・商業等の統計が詳しくわかります!
◎土地調査レポート 地震の心配、土砂災害・浸水等の不安を解決します!
◎販売図面
上記資料は無料でお渡し致します!
上記資料以外の資料請求もお気軽にお問い合わせください。
■買い替えをご希望のお客様へ
「住宅ローンが残っているが買い換えたい」という方も是非一度ご相談ください♪
売却が先? 購入が先?
こんなお悩みも解消できればと思います。
買い替え先のご提案はもちろんですが売却のご相談もお気軽にお申し付けください。
査定は秘密厳守・無料査定・迅速対応にて承ります。
査定書の作成は最短当日のお渡しが可能です。
「いまどのくらいの価値があるのか」
「売却金額によっては買い替え先の条件を追加したい」
「ダブルローンは組みたくないが買い換えたい」
住み替えをしたいが、自宅の売却ができるか心配という方は多いかと思います。
まずは資金計画をたて不安のないお住み替えを実現しましょう!
■賃貸からのお住み替えの方へ
現在の賃料と比較して新築・中古戸建、中古マンションへのお住み替えのご提案ができればと思います。
「現在の賃料が高い」「更新が近い」「いい物件があれば購入したい」
などまずはご相談ください。
住宅ローンは三井住友銀行等のご紹介も可能です。
まずは一度ご相談ください!必ずご安心いただける情報を提供いたします!
皆様からの購入・売却のお問い合わせ心よりお待ちしております。
┏┓ お問い合わせ先
┗□━━━━━━━━━━━━━━━━━━━━
【住友不動産ステップ 多摩営業センター 担当:高島哲太】
フリーコール:0120−880−655
周辺環境
・ファミリーマート多摩鶴牧三丁目店 徒歩4分(約280m)
・鶴牧第3公園 徒歩1分(約20m)
・クロスガーデン多摩 徒歩7分(約550m)
・多摩市立南鶴牧小学校 徒歩11分(約860m)
・多摩市立鶴牧中学校 徒歩11分(約840m)
物件詳細
| 物件名 | ジオ多摩センター | 
|---|---|
| 物件番号 | 15023043 | 
| 所在地 | 
												東京都多摩市鶴牧3丁目 | 
										
| 価格 | 
												 5,980万円 
													
												 | 
										
| 交通 | 京王相模原線「京王多摩センター」駅徒歩12 分 小田急多摩線「小田急多摩センター」駅徒歩12 分 多摩モノレール「多摩センター」駅徒歩10 分  | 
										
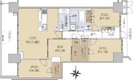
| 間取り | 3LDK | 
| 専有面積 | 76.33m2(壁芯) | 
| 所在階 構造  | 
											11階部分/地上15階地下1階建て 鉄筋コンクリート造  | 
										
| 築年月 | 2017年02月 | 
| バルコニー(テラス)面積 | 12.30m2 | 
| 採光方向 | 西 | 
| 総戸数 | 300 戸 | 
| 管理形態 管理方式 管理会社  | 
											管理会社に全部委託 日勤 阪急阪神ハウジングサポート  | 
										
| 新築時売主 | 阪急不動産 | 
| 施工会社 | 長谷工コーポレーション | 
| 管理費(月額) | 11,300円 | 
| 修繕積立金(月額) | 9,160円 | 
| その他月額費用 | インターネット使用料:月額715円/その他:月額300円/CATV使用料:330円 | 
| 引渡時期 | 相談 | 
| 現況 | 賃貸中 | 
| 駐車場 | 空有り/月額:2,500円〜11,500円/機械※車種による | 
| 土地権利 | 所有権 | 
| 取引態様 | 仲介 | 
この情報は2025年11月02日当社物件システムのデータにもとづくものであり、次回更新予定日は2025年11月16日です。
