8階部分の三方向角住戸(南側・北側・東側)に付き日当たり、眺望良好です
物件のポイント
物件の特徴
-
- 都市ガス
- 上水道
- 下水道
- 給湯
- バス・トイレ別
- CATV
- BS端子
- CS
- 収納スペース
- ウォークインクローゼット
- ガスキッチン
- システムキッチン
- 室内洗濯機置場
- 照明器具付き
- ルーフバルコニー
- 3面バルコニー
- 自動ロック
- 駐輪場
- インターネット対応
- ペット可(但し、管理規約により一定の制限があります)
- 南向き(南東、南西含む)
- 角部屋
- 大規模(総戸数100戸以上)
- 住友不動産旧分譲
- 浴室に窓あり
- 管理員日勤
- リフォーム
-
--
- 立地・周辺環境
-
--
セールスポイント
【おすすめポイント】
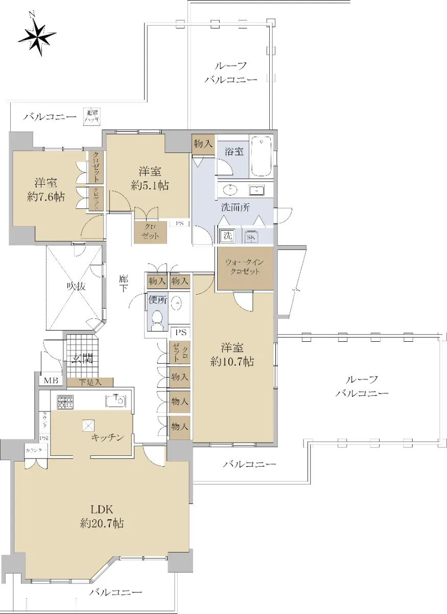
●本物件は10階建、8階部分の三方向角住戸(南側・北側・東側)です
●3方向(北、南、東)にバルコニー、ルーフバルコニーが存します
●LDKは約20.7帖と開放感があり日当たり、眺望良好です
●ペット飼育可(管理規約あります)
【物件概要】
■専有面積:116.94u
■間取り:3LDK
■全居室クローゼット付き
■ウォークインクローゼット(洋室約10.7帖内)
■廊下収納/クローゼット
■エレベーター2基
担当:抱井 駿(かかい しゅん)
フリーコール:0120−571−559
【ライフインフォメーション】
■上水公園まで約280m/徒歩4分
■セブンイレブン小平創価高校前店まで約700m/徒歩9分
■ミニコープ鷹の台店まで約1270m/徒歩16分
■小平市小平第十二小学校まで約810m/徒歩11分
■小平市立小平第五中学校まで約440m/徒歩6分
■今鷹医院まで約830m/徒歩11分
担当からのひとこと
この度は「武蔵野鷹の台ガーデンハウス」のページをご覧頂きありがとうございます。
本物件は10階建8階部分、専有面積116.94u、間取り3LDKの物件でございます。
3方向(北、南、東)にバルコニー、ルーフバルコニーが存し、陽当たり、眺望が良好です。
各居室に収納があり住空間もスッキリ広々、他に廊下収納等もあり豊富な収納設備があります。
現在空室に付きお客様のご都合に合わせてご案内致します。
―不動産の購入を検討中のお客様へ−
物件のご検討については、一度現地を見ていただく事をお勧めします。
間取り図面や写真では判断できない部分もあります。
現地をご覧頂くことで周辺環境や室内の状況等を確認いただくだけでなく、
担当者より、物件の長所、短所や購入の流れ等を詳しくご説明させて頂きます。
内覧をご希望のお客様はお気軽にお問い合わせください。
皆様からのお問い合わせ心からお待ちしております。
*-*-*-*-*ご自宅の『売却』もお任せください*-*-*-*-*
・『売却が先か購入が先か』買替えたいけど、何から始めたら良いのか分からない。
・所有不動産の相場を確認しておきたい。
・自宅の住宅ローンがまだ残っているので、無理のない資金計画を相談したい。
・お住まいの購入から売却まで、お客様のご事情に合わせてサポートいたします。
周辺環境
--
物件詳細
| 物件名 | 武蔵野鷹の台ガーデンハウス |
|---|---|
| 物件番号 | 15083023 |
| 所在地 |
東京都小平市小川町1丁目 |
| 価格 |
3,580万円
|
| 交通 | 西武国分寺線「鷹の台」駅徒歩18 分 |
| 間取り | 3LDK |
| 専有面積 | 116.94m2(壁芯) |
| 所在階 構造 |
8階部分/地上10階建て 鉄骨鉄筋コンクリート造 |
| 築年月 | 1991年12月 |
| バルコニー(テラス)面積 | 27.97m2/ルーフバルコニー面積35.40m2 |
| 採光方向 | 南/角部屋 |
| 総戸数 | 113 戸 |
| 管理形態 管理方式 管理会社 |
管理会社に全部委託 日勤 住友不動産建物サービス |
| 新築時売主 | 住友不動産 |
| 施工会社 | 株式会社長谷工コーポレーション |
| 管理費(月額) | 25,300円 |
| 修繕積立金(月額) | 32,750円 |
| 引渡時期 | 相談 |
| 現況 | 空家 |
| 駐車場 | 無し |
| 土地権利 | 所有権 |
| 取引態様 | 仲介 |
| 備考 |
|
この情報は2025年12月14日当社物件システムのデータにもとづくものであり、次回更新予定日は2025年12月28日です。
