都営三田線「千石」駅まで徒歩9分◇角部屋◇ルーフバルコニー◇眺望良好
パノラマ
物件のポイント
物件の特徴
-
- 都市ガス
- 上水道
- 下水道
- 床暖房
- 給湯
- バス・トイレ別
- CATV
- 収納スペース
- ウォークインクローゼット
- システムキッチン
- 浄水器
- 食器洗浄乾燥機
- ディスポーザー
- 洗面台
- 室内洗濯機置場
- 浴室乾燥機
- ディンプルキー
- 複層ガラス
- ルーフバルコニー
- エレベータ
- 自動ロック
- TVモニタ付きインターホン
- モニター付きオートロック
- 宅配ボックス
- 駐輪場
- インターネット対応
- 24時間換気システム
- 24時間セキュリティ
- スロップシンク
- 高速インターネット
- ペット可(但し、管理規約により一定の制限があります)
- ペット相談(但し、管理規約により一定の制限があります)
- 24時間ゴミ出し可
- 角部屋
- 駐車場空有
- 管理員日勤
- リフォーム
-
--
- 立地・周辺環境
-
2沿線以上利用可|小学校まで徒歩10分以内|スーパーまで徒歩10分以内|コンビニまで徒歩5分以内
セールスポイント
◆マンションについて
□2013年3月築
□地上5階建
□総戸数25戸
◆お部屋について
【新築分譲時オプション】
□調光式ダウンライト設置(リビング部分)
□エコカラット設置(約6.0帖洋室 南側壁面)
□ピクチャーレール設置(廊下部分)
□二重床二重天井
□ルーフバルコニー(19.30u)
□複層ガラス
□ペット飼育可※細則あり
□ウォークインクローゼット(主寝室約6.0畳)
--- Kitchen
□ディスポーザー
□食器洗浄乾燥機
□ガラストップコンロ
□水無し両面焼グリル
□浄水器一体型水栓
□スライド収納
--- Living dining
□TES式床暖房
--- Sanitary
□TES式浴室換気乾燥機
□24時間換気システム
□オートバス(追焚機能付)
□浴室ダウンライト
□手洗い付きレストルーム
□ミラーキャビネット
□洗面フロントポケット
□洗面化粧台収納
--- Security
□24時間セキュリティシステム
□ディンプルキー
□ノンタッチキー
□ダブルロック
□TVモニター付きオートロック
□防犯カメラ
□防犯窓センサー
◆周辺環境
マルエツ プチ 千石店…約300m
サミットストア 新大塚千川通り店…約400m
セブン-イレブン 豊島南大塚1丁目南店…約400m
東京健生病院…約400m
文京区立千石緑地…約500m
文京区立林町小学校…約500m
担当からのひとこと
この度は「ディアナコート文京千石」の詳細物件HPをご覧いただき誠にありがとうございます。
本物件は都営三田線「千石」駅まで徒歩9分と交通アクセス良好です。マルエツプチ千石店まで約300m、セブンーイレブン豊島南大塚1丁目南店まで約400mとお買い物など利便性も良好な住環境です。
全居室に収納があり、特に主寝室(約6.0畳)にはウォークインクローゼットがございます。洗面化粧台収納やキッチンのカウンター下にもスライド収納があり、多彩+工夫を追及した収納の数々が、住空間に広さをもたらします。
新築分譲時オプションで、主寝室(約6.0畳)にエコカラットが、廊下部分にピクチャーレールが、リビング・ダイニングに調光式ダウンライトが設置されております。
リビングからの眺望も良好でございます。
まずは一度室内をご覧になっていただけますと、生活のイメージができるかと思われます。
また、ペット飼育可能(細則有)です。
―不動産の購入を検討中のお客様へ−
物件のご検討については、一度現地を見ていただく事をお勧めします。
間取り図面や写真では判断できない部分もあります。
現地をご覧頂くことで周辺環境や室内の状況等を確認いただくだけでなく、
担当者より、物件の長所や購入の流れ等を詳しくご説明させて頂きます。
現地周辺の見学希望や資料請求ご希望の方は担当:土居(ドイ)までお気軽にお問い合わせください。
周辺環境
・マルエツ プチ 千石店 徒歩4分(約300m)
・セブンーイレブン 豊島南大塚1丁目南店 徒歩5分(約400m)
・東京健生病院 徒歩5分(約400m)
・文京区立千石緑地 徒歩7分(約500m)
・文京区立林町小学校 徒歩7分(約500m)
物件詳細
| 物件名 | ディアナコート文京千石 |
|---|---|
| 物件番号 | 150Y3118 |
| 所在地 |
東京都文京区千石3丁目 |
| 価格 |
1億8,500万円
|
| 交通 | 都営三田線「千石」駅徒歩9 分 東京メトロ丸ノ内線「新大塚」駅徒歩12 分 山手線「巣鴨」駅徒歩13 分 |
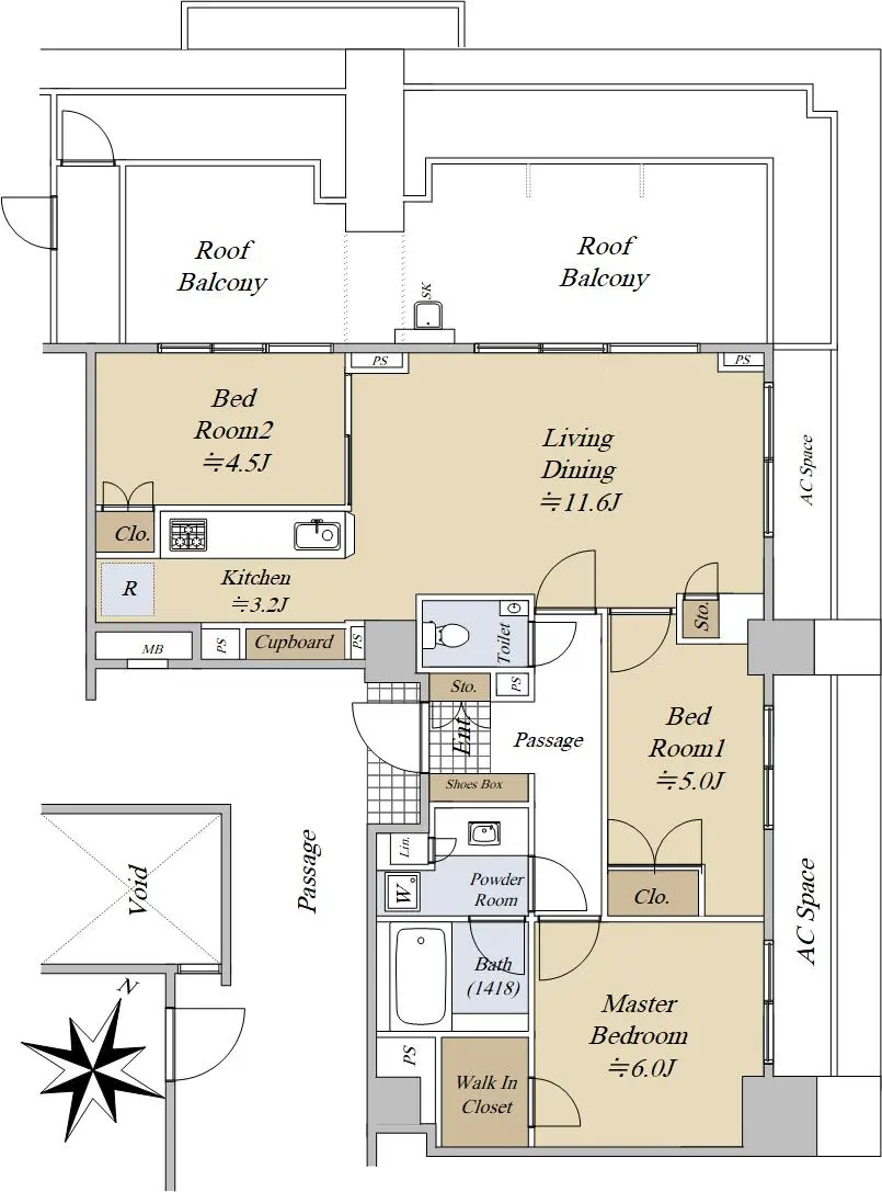
| 間取り | 3LDK |
| 専有面積 | 70.61m2(壁芯) |
| 所在階 構造 |
4階部分/地上5階建て 鉄筋コンクリート造 |
| 築年月 | 2013年03月 |
| バルコニー(テラス)面積 | ルーフバルコニー面積19.30m2 |
| 採光方向 | 北西/角部屋 |
| 総戸数 | 25 戸 |
| 管理形態 管理方式 管理会社 |
管理会社に全部委託 日勤 モリモトクオリティ |
| 新築時売主 | 株式会社モリモト |
| 施工会社 | 田中建設 |
| 管理費(月額) | 24,600円 |
| 修繕積立金(月額) | 17,440円 |
| その他月額費用 | 光配信設備利用料:770円 |
| 引渡時期 | 相談 |
| 現況 | 居住中 |
| 駐車場 | 空有り/月額:29,000円〜32,000円/空数3台/機械※車種による |
| 土地権利 | 所有権 |
| 取引態様 | 仲介 |
この情報は2025年10月31日当社物件システムのデータにもとづくものであり、次回更新予定日は2025年11月14日です。
