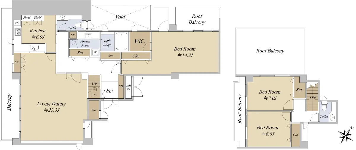
◆専有面積:143.33u ◆広々としたリビング ◆メゾネットタイプ
物件のポイント
物件の特徴
-
- 都市ガス
- 給湯
- 追焚機能
- トイレ2箇所
- バス・トイレ別
- 温水洗浄便座
- 収納スペース
- システムキッチン
- 浄水器
- 食器洗浄乾燥機
- 洗面台
- シャンプードレッサー
- 浴室乾燥機
- 照明器具付き
- ルーフバルコニー
- エレベータ
- 自動ロック
- TVモニタ付きインターホン
- モニター付きオートロック
- 駐輪場
- バイク置き場
- インターネット対応
- 最上階
- ペット可(但し、管理規約により一定の制限があります)
- ペット相談(但し、管理規約により一定の制限があります)
- 楽器使用可
- 楽器相談
- 南向き(南東、南西含む)
- 角部屋
- 駐車場空有
- 自走式駐車場
- 主寝室8畳以上
- ワイドバルコニー(奥行き2m以上)
- 浴室に窓あり
- 管理員巡回
- リフォーム
-
--
- 立地・周辺環境
-
2沿線以上利用可|小学校まで徒歩10分以内|スーパーまで徒歩10分以内|コンビニまで徒歩5分以内|公園まで徒歩5分以内|眺望良好
セールスポイント
◆お部屋の特徴
・メゾネットタイプ
・専有面積:143.33u
・ルーフバルコニー:31.08u
・LDK:30.2帖
・4.5階部分 バルコニー南西向き 角部屋
・全居室6.0帖以上 開口部、採光あり
・全方位に開口部あり
・風通し・眺望良好
・トイレ2カ所
・洗面化粧台
・浴室換気乾燥機
・オートバス(追焚機能付)
・温水洗浄便座
・ビルトイン型浄水器
・独立タイプのコの字型キッチン
◆アクセス
・都営三田線「千石」駅 徒歩7分
・東京メトロ丸ノ内線「茗荷谷」駅 徒歩14分
・東京メトロ丸ノ内線「新大塚」駅 徒歩18分
◆ライフインフォメーション
・セブンイレブン 文京千石1丁目店 約400m
・マルエツプチ 千石店 約200m
・文京区立林町小学校 約100m
・千石公園 約160m
・どらっぐぱぱす 千石駅前店 約600m
担当からのひとこと
この度は『ワコーレ千石V』のページをご覧いただき、誠に有難うございます。
本物件は、南西向き4階・5階のメゾネットタイプのお部屋になります。
専有面積は、143.33uを誇り、ルーフバルコニーは31.08uもございます。
全方位に開口部があり、陽当り・風通し・眺望良好です。
都営三田線「千石」駅まで徒歩7分であり、コンビニ、スーパーが徒歩圏内にあるので、
お買い物など利便性も良好な住環境です。周辺には公園が徒歩圏内にございます。
***不動産の購入を検討中のお客様へ****
物件探しの基本は「物件を実際に見て頂くこと」にあります。
写真や図面だけではなく、実際に現地を見て頂く事をお勧めいたします。
現地を見て頂くことで、周辺環境や物件の状態が明確にご理解頂けるとともに、
プロの目から見た物件の長所・短所、購入の際の注意点を詳しくご説明させて頂きます。
こちらの物件にご興味をお持ちのお客様は是非ともお問い合わせください。
心よりお待ちしております。
*-*-*-*-*ご自宅の『売却』もお任せください*-*-*-*-*
・『売却が先か購入が先か』買替えたいけど、何から始めたら良いのか分からない。
・所有不動産の相場を確認しておきたい。
・自宅の住宅ローンがまだ残っているので、無理のない資金計画を相談したい。
・お住まいの購入から売却まで、お客様のご事情に合わせてサポートいたします。
周辺環境
・セブンイレブン 文京千石1丁目店 徒歩5分(約400m)
・マルエツプチ 千石店 徒歩3分(約200m)
・文京区立林町小学校 徒歩2分(約100m)
・千石公園 徒歩2分(約160m)
物件詳細
| 物件名 | ワコーレ千石V |
|---|---|
| 物件番号 | 150Y3127 |
| 所在地 |
東京都文京区千石2丁目 |
| 価格 |
1億7,000万円
|
| 交通 | 都営三田線「千石」駅徒歩7 分 東京メトロ丸ノ内線「茗荷谷」駅徒歩14 分 東京メトロ丸ノ内線「新大塚」駅徒歩18 分 |
| 間取り | 3LDK |
| 専有面積 | 143.33m2(壁芯) |
| 所在階 構造 |
4階部分/地上5階地下1階建て 鉄筋コンクリート造 |
| 築年月 | 1989年07月 |
| バルコニー(テラス)面積 | 13.20m2/ルーフバルコニー面積31.08m2 |
| 採光方向 | 南西/角部屋 |
| 総戸数 | 6 戸 |
| 管理形態 管理方式 管理会社 |
管理会社に全部委託 巡回 ユニオン・シティサービス |
| 新築時売主 | 檜不動産 |
| 施工会社 | 株式会社間組 |
| 管理費(月額) | 49,600円 |
| 修繕積立金(月額) | 34,720円 |
| 引渡時期 | 相談 |
| 現況 | 居住中 |
| 駐車場 | 空有り/月額:10,000円/自走/屋根あり※車種による |
| 土地権利 | 所有権 |
| 取引態様 | 仲介 |
| 備考 |
|
この情報は2026年04月17日当社物件システムのデータにもとづくものであり、次回更新予定日は2026年05月01日です。
