渋谷区富ヶ谷アドレス 2005年度「グッドデザイン賞」受賞マンション
専有面積50.13m2 (壁芯)・間取り2LDK・所在階5階部分/地上8階建て・RC造・2005年02月築
物件のポイント
物件の特徴
-
- 都市ガス
- 上水道
- 下水道
- 給湯
- エレベータ
- モニター付きオートロック
- 24時間換気システム
- デザイナーズマンション
- ペット可(但し、管理規約により一定の制限があります)
- 南向き(南東、南西含む)
- 角部屋
- 自走式駐車場
- 管理員日勤
- リフォーム
-
--
- 立地・周辺環境
-
2沿線以上利用可|低層住居専用地域
セールスポイント
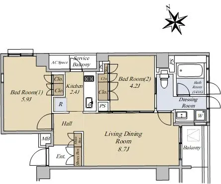
5階部分角部屋、2LDK、専有面積50.13u
2005年度「グッドデザイン賞」受賞マンション
担当からのひとこと
この度は、『ブランクレア代々木公園』の詳細ページをご覧頂き、誠にありがとうございます。
本物件は渋谷区富谷2丁目に位置し住環境、利便性とも良好です。
5階部分角部屋、2LDK、専有面積50.13u
室内見学などのご希望、物件詳細に関しましては担当「青島」までお気軽にお問い合わせください。
周辺環境
--
物件詳細
| 物件名 | ブランクレア代々木公園 |
|---|---|
| 物件番号 | 15123102 |
| 所在地 |
東京都渋谷区富ヶ谷2丁目 |
| 価格 |
1億980万円
|
| 交通 | 東京メトロ千代田線「代々木公園」駅徒歩6 分 小田急小田原線「代々木八幡」駅徒歩7 分 |
| 間取り | 2LDK |
| 専有面積 | 50.13m2(壁芯) |
| 所在階 構造 |
5階部分/地上8階建て 鉄筋コンクリート造 |
| 築年月 | 2005年02月 |
| バルコニー(テラス)面積 | 3.08m2 |
| 採光方向 | 南東/角部屋 |
| 総戸数 | 31 戸 |
| 管理形態 管理方式 管理会社 |
管理会社に全部委託 日勤 伊藤忠アーバンコミュニティ |
| 新築時売主 | 伊藤忠都市開発/ノエル |
| 施工会社 | 木内建設株式会社 |
| 管理費(月額) | 13,700円 |
| 修繕積立金(月額) | 30,100円 |
| その他月額費用 | インターネット使用料:月額935円/町会費:月額100円 |
| 引渡時期 | 相談 |
| 現況 | 居住中 |
| 駐車場 | 空無し |
| 土地権利 | 所有権 |
| 取引態様 | 仲介 |
| 備考 |
|
この情報は2026年02月22日当社物件システムのデータにもとづくものであり、次回更新予定日は2026年03月08日です。
