平成21年9月築/充実した室内設備と収納豊富なお部屋です
物件のポイント
物件の特徴
-
- 都市ガス
- 上水道
- 下水道
- 床暖房
- 給湯
- 追焚機能
- バス・トイレ別
- CATV
- ガスキッチン
- システムキッチン
- カウンターキッチン
- 浄水器
- 食器洗浄乾燥機
- 洗面所
- 洗面台
- 室内洗濯機置場
- 浴室乾燥機
- エレベータ
- 自動ロック
- TVモニタ付きインターホン
- モニター付きオートロック
- 宅配ボックス
- 駐輪場
- バイク置き場
- インターネット対応
- 24時間換気システム
- シューズインクローゼット
- ペット相談(但し、管理規約により一定の制限があります)
- 管理員日勤
- リフォーム
-
--
- 立地・周辺環境
-
小学校まで徒歩10分以内|スーパーまで徒歩10分以内|コンビニまで徒歩5分以内|公園まで徒歩5分以内
セールスポイント
≪アクセス≫
◇東京メトロ東西線「葛西」駅徒歩11分
◇東京メトロ東西線「西葛西」駅徒歩15分
≪ポイント≫
・平成21年9月築
・専有面積71.12uの2LDK
・各部屋にクローゼット等もあり収納豊富
・足元から部屋全体を均一に暖める『電気式床暖房』(LD)
・食器洗浄機/浄水器一体型水栓
・浴室換気乾燥機
・鏡裏収納付大型三面鏡
・遮音性や保温性に配慮した『二重床・二重天井』
・宅配ボックスあり
・ペット飼育可(規約による制限あり)
・24時間ゴミ出し可能
≪Life Information≫
◇新田公園まで約160m
◇ウエルシア江戸川中葛西店まで約160m
◇区立葛西第三中学校まで約230m
◇中葛西おひさま保育園まで約270m
◇ファミリーマート中葛西清砂大橋通り店まで約350m
◇ベルクス中葛西店まで約450m
◇区立第四葛西小学校まで約450m
◇江戸川中葛西五郵便局まで約450m
◇ばとうばし幼稚園まで約800m
担当からのひとこと
この度は『 アルコード葛西/02 』をご覧いただき誠にありがとうございます。
本物件は地上12階建2階部分、西向きのお部屋です。
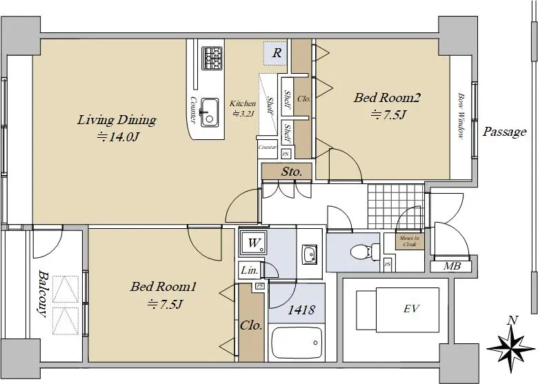
間取りは2LDK(洋室:約7.5帖×2室、LD:約14.0帖、K:約3.2帖)となっております。
静かな住環境に所在し、物件周辺にはベルクス中葛西店(約450m)や新田公園(約160m)もあり周辺環境良好です。
室内大変丁寧にお使いのため、是非一度ご覧ください。
詳細につきましては、担当『林』までお気軽にご連絡ください。
お問い合わせお待ちしております。
周辺環境
・新田公園 徒歩2分(約160m)
・ウエルシア江戸川中葛西店 徒歩2分(約160m)
・ファミリーマート中葛西清砂大橋通り店 徒歩5分(約350m)
・ベルクス中葛西店 徒歩6分(約450m)
・区立第四葛西小学校 徒歩6分(約450m)
物件詳細
| 物件名 | アルコード葛西/02 |
|---|---|
| 物件番号 | 15163048 |
| 所在地 |
東京都江戸川区中葛西6丁目 |
| 価格 |
5,380万円
|
| 交通 | 東京メトロ東西線「葛西」駅徒歩11 分 東京メトロ東西線「西葛西」駅徒歩15 分 |
| 間取り | 2LDK |
| 専有面積 | 71.12m2(壁芯) |
| 所在階 構造 |
2階部分/地上12階建て 鉄筋コンクリート造 |
| 築年月 | 2009年09月 |
| バルコニー(テラス)面積 | 6.60m2 |
| 採光方向 | 西 |
| 総戸数 | 48 戸 |
| 管理形態 管理方式 管理会社 |
管理会社に全部委託 日勤 三菱地所コミュニティ |
| 新築時売主 | 株式会社サジェスト |
| 施工会社 | (株)ウラタ |
| 管理費(月額) | 9,120円 |
| 修繕積立金(月額) | 9,748円 |
| その他月額費用 | CATV使用料:216円 |
| 引渡時期 | 相談 |
| 現況 | 居住中 |
| 駐車場 | 空無し |
| 土地権利 | 所有権 |
| 取引態様 | 仲介 |
この情報は2025年11月03日当社物件システムのデータにもとづくものであり、次回更新予定日は2025年11月17日です。
