【9階/東向き/60.16u/3DK】室内大変きれいなお部屋です!
パノラマ
物件のポイント
物件の特徴
-
- 都市ガス
- 上水道
- 下水道
- 給湯
- カウンターキッチン
- エレベータ
- 大規模(総戸数100戸以上)
- 駐車場空有
- 管理員日勤
- リフォーム
-
●2019年05月/トイレ新規交換
●2019年05月/浴室新規交換
- 立地・周辺環境
-
--
セールスポイント
■┓ リフォーム履歴(2019年5月完了済)
┗┛━━━━━━━━━━━━━━━━━
■トイレ(TOTO製)新規交換
■浴室(Takara standerd製)新規交換
■┓ お部屋の特徴
┗┛━━━━━━━━━━━━━━━━━
■9階部分/東向きバルコニー
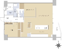
■専有面積:60.16u/3DK
■大容量の横開きクローゼット
■┓ マンションの概要
┗┛━━━━━━━━━━━━━━━━━
・築年月:1973年9月築
・構 造:鉄骨鉄筋コンクリート造14階建9階部分
・総戸数:390戸
・エレベーター複数基有
■┓ 周辺施設
┗┛━━━━━━━━━━━━━━━━━
◇イキイキタイヨー生鮮市場東陽町店まで徒歩3分(約190m)
◇西友東陽町店まで徒歩1分(約80m)
◇セブンイレブン江東南砂2丁目店まで徒歩3分(約170m)
◇マツモトキヨシ東陽町店まで徒歩2分(約130m)
◇くすりの福太郎南砂2丁目店まで徒歩2分(約130m)
■┓ アクセス
┗┛━━━━━━━━━━━━━━━━━
■東京メトロ東西線「東陽町」駅 徒歩6分
担当からのひとこと
この度は【東陽町住宅】の物件ページをご覧いただきありがとうございます。
本マンションは東京メトロ東西線「東陽町」駅徒歩6分の場所にある
総戸数390戸の大規模コミュニティマンションです。
お部屋は、「9階/東向き/60.16u/3DK」のお部屋です。
オーナー様も室内大変きれいにお使いです。
本物件に関するご質問や資料請求はお気軽に担当までご連絡ください。
皆様からのお問い合わせ心よりお待ち申し上げております。
■┓ 不動産の購入を検討中のお客様へ
┗┛━━━━━━━━━━━━━━━━━━━
物件探しの基本は「物件を現実に見て頂くこと」にあります。
写真や図面だけではなく、実際に現地を見て頂く事をお勧めいたします。
現地を見て頂くことで、周辺環境や物件の状態が明確にご理解頂けるとともに、
プロの目から見た物件の長所・短所、購入の際の注意点を詳しくご説明させて頂きます。
こちらの物件にご興味をお持ちのお客様は是非ともお問い合わせください。
心よりお待ちしております。
周辺環境
・イキイキタイヨー生鮮市場東陽町店 徒歩3分(約190m)
・西友東陽町店 徒歩1分(約80m)
・セブンイレブン江東南砂2丁目店 徒歩3分(約170m)
・マツモトキヨシ東陽町店 徒歩2分(約130m)
・くすりの福太郎南砂2丁目店 徒歩2分(約130m)
物件詳細
| 物件名 | 東陽町住宅 |
|---|---|
| 物件番号 | 15223146 |
| 所在地 |
東京都江東区東陽4丁目 |
| 価格 |
4,699万円
|
| 交通 | 東京メトロ東西線「東陽町」駅徒歩6 分 |
| 間取り | 3DK |
| 専有面積 | 60.16m2(壁芯) |
| 所在階 構造 |
9階部分/地上14階建て 鉄骨鉄筋コンクリート造 |
| 築年月 | 1973年09月 |
| バルコニー(テラス)面積 | 1.00m2 |
| 採光方向 | 東 |
| 総戸数 | 390 戸 |
| 管理形態 管理方式 管理会社 |
管理会社に一部委託 日勤 ライフポート西洋 |
| 新築時売主 | 東京都住宅供給公社 |
| 施工会社 | 前田建設株式会社 |
| 管理費(月額) | 7,800円 |
| 修繕積立金(月額) | 7,200円 |
| 引渡時期 | 相談 |
| 現況 | 居住中 |
| 駐車場 | 空有り/月額:19,500円/空数1台※車種による |
| 土地権利 | 所有権 |
| 取引態様 | 仲介 |
| 備考 |
|
この情報は2026年04月19日当社物件システムのデータにもとづくものであり、次回更新予定日は2026年05月03日です。
