最上階・角部屋 〜専有面積120.08u 広々としたルーフバルコニー付き〜
物件のポイント
物件の特徴
-
- 都市ガス
- 床暖房
- 給湯
- 追焚機能
- ウォークインクローゼット
- システムキッチン
- 食器洗浄乾燥機
- ディスポーザー
- 浴室乾燥機
- ルーフバルコニー
- 2面バルコニー
- モニター付きオートロック
- 最上階
- ペット可(但し、管理規約により一定の制限があります)
- 南向き(南東、南西含む)
- 角部屋
- 大規模(総戸数100戸以上)
- 駐車場空有
- 主寝室8畳以上
- 高台
- 管理員日勤
- リフォーム
-
--
- 立地・周辺環境
-
眺望良好
セールスポイント
〇最上階・角部屋 〜陽当たり・眺望良好〜
〇専有面積120.08u
〇人工芝のルーフバルコニー面積 67.93u
〇駐車場1台分専用使用権付き(車種による)
〇ペット飼育可(細則有)
〇充実の共用施設(プール・ジム等の共用棟など)
◎設備
・ディスポーザー
・浴室乾燥機
・ツインボウル洗面カウンター
・床暖房
・トランクルーム
・ウォークインクローゼット
・エコカラット
・モニター付きオートロック
・宅配ボックス
担当からのひとこと
この度は「レイディアントシティ横濱カルティエ6」の物件ページをご覧いただき誠に有難うございます。
マンションのご購入は、お客様にとって人生の大きな節目であり、大切な決断だと思います。
だからこそ私は「安心して選んでいただける環境づくり」を第一に考えております。
物件の魅力や特徴をしっかりとお伝えするのはもちろんのこと、周辺環境や将来性、ライフスタイルに合った暮らし方までを一緒にイメージしながらご案内させていただきます。
初めて住宅を検討される方も、買い替えや資産としてご検討の方も、それぞれに不安や疑問があるかと思います。
どんなことでもご遠慮なくお尋ねください。
私自身、これまで多くのお客様に携わってきた経験を活かし、丁寧に分かりやすくご説明いたします。
「相談してよかった」と思っていただけるよう、誠実にサポートすることをお約束いたします。
ぜひこの機会に一度現地をご覧いただき、お客様ご自身の目でマンションの魅力を確かめてみてください。
きっとご満足いただけるご提案ができると確信しております。
周辺環境
--
物件詳細
| 物件名 | レイディアントシティ横濱カルティエ6 |
|---|---|
| 物件番号 | 15293053 |
| 所在地 |
神奈川県横浜市金沢区大川 |
| 価格 |
5,680万円
|
| 交通 | 京急本線「金沢文庫」駅バス8 分「カルティエ5前」バス停徒歩1 分 |
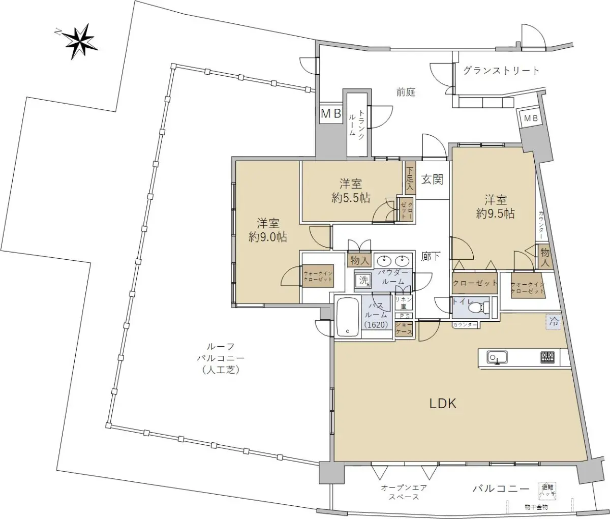
| 間取り | 3LDK |
| 専有面積 | 120.08m2(壁芯) |
| 所在階 構造 |
10階部分/地上10階建て 鉄筋コンクリート造 |
| 築年月 | 2004年06月 |
| バルコニー(テラス)面積 | 15.20m2/ルーフバルコニー面積67.93m2 |
| 採光方向 | 南西/角部屋 |
| 総戸数 | 1805戸 |
| 管理形態 管理方式 管理会社 |
管理会社に全部委託 日勤 大和地所コミュニティライフ |
| 新築時売主 | 日本綜合地所 |
| 施工会社 | 東急建設株式会社 |
| 管理費(月額) | 21,380円 |
| 修繕積立金(月額) | 23,560円 |
| その他月額費用 | ルーフバルコニー使用料:月額680円/フレンドリークラブ:400円 |
| 引渡時期 | 相談 |
| 現況 | 空家 |
| 駐車場 | 空有り/月額:無料/機械/屋根なし※車種による |
| 土地権利 | 所有権 |
| 取引態様 | 仲介 |
| 備考 |
|
この情報は2025年12月11日当社物件システムのデータにもとづくものであり、次回更新予定日は2025年12月25日です。
