2021年12月リフォーム済み!!キレイにお使いです!!!
物件のポイント
物件の特徴
-
- 都市ガス
- エレベータ
- 南向き(南東、南西含む)
- 大規模(総戸数100戸以上)
- 駐車場空有
- リフォーム
-
●2021年12月/全室クロス・床
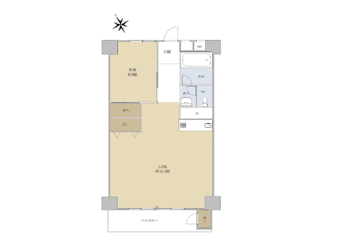
●2021年12月/3LDK→1LDK間取り変更
- 立地・周辺環境
-
スーパーまで徒歩10分以内|コンビニまで徒歩5分以内
セールスポイント
〜〜〜セールスポイント〜〜〜
◆2021年12月 和室、LDK クロス、床、交換!
◆2021年12月 3LDK→1LDK 間取り変更!
◆南西向きのため陽当たり良好!
◆閑静な住環境!
◆平置き駐車場〜高さ制限ありません〜
◆近隣に生活利便施設あり〜〜〜ライフインフォメーション〜〜〜
●ローソン ドリームバスターミナル前店 徒歩3分 約230m
●クリエイト戸塚俣野店 徒歩5分 約400m
●たまや深谷町店 徒歩9分 約700m
●横浜市立深谷台小学校 徒歩9分 約700m
●横浜市立深谷中学校 徒歩9分 約700m
担当からのひとこと
この度は、市ドリームハイツ1号棟を閲覧いただきまして誠にありがとうございます。
本物件は、平坦なアプローチで周辺には、スーパー、コンビニがございます。
一度現地をご覧いただき周辺環境なども見て頂きたいので、
お気軽にお問い合わせいただければと思います。
物件に関するご質問や住宅ローンの試算等のご相談は、
戸塚営業センター「松川」までお気軽に何でもお問い合わせください。
皆様からのお問い合わせを心よりお待ちしております。
周辺環境
・ローソンドリームバスターミナル前店 徒歩3分(約230m)
・クリエイト戸塚俣野店 徒歩5分(約400m)
・たまや深谷町店 徒歩9分(約700m)
・横浜市立深谷台小学校 徒歩9分(約700m)
・横浜市立深谷中学校 徒歩9分(約700m)
物件詳細
| 物件名 | 市ドリームハイツ1号棟 |
|---|---|
| 物件番号 | 15363039 |
| 所在地 |
神奈川県横浜市戸塚区深谷町 |
| 価格 |
1,180万円
|
| 交通 | 東海道本線「戸塚」駅バス24 分「俣野公園・横浜薬大前」バス停徒歩3 分 横浜市ブルーライン「戸塚」駅バス24 分「俣野公園・横浜薬大前」バス停徒歩3 分 横須賀線「戸塚」駅バス24 分「俣野公園・横浜薬大前」バス停徒歩3 分 |
| 間取り | 1LDK |
| 専有面積 | 53.99m2(内法) |
| 所在階 構造 |
3階部分/地上11階建て 鉄骨鉄筋コンクリート造 |
| 築年月 | 1972年12月 |
| バルコニー(テラス)面積 | 5.80m2 |
| 採光方向 | 南西 |
| 総戸数 | 764 戸 |
| 管理形態 管理方式 管理会社 |
自主管理 管理員なし |
| 管理費(月額) | 3,000円 |
| 修繕積立金(月額) | 11,500円 |
| 引渡時期 | 相談 |
| 現況 | 居住中 |
| 駐車場 | 空有り/月額:7,000円※車種による |
| 土地権利 | 所有権 |
| 取引態様 | 仲介 |
| 備考 |
|
この情報は2025年11月01日当社物件システムのデータにもとづくものであり、次回更新予定日は2025年11月15日です。
