☆リエトコート武蔵小杉 EAST TOWER 45階建/31階部分 88.39u 西向き☆
パノラマ
物件のポイント
物件の特徴
-
- 都市ガス
- 上水道
- 下水道
- 床暖房
- 給湯
- 追焚機能
- 温水洗浄便座
- CATV
- 収納スペース
- ウォークインクローゼット
- 洗面所
- 洗面台
- 自動ロック
- TVモニタ付きインターホン
- 宅配ボックス
- 駐輪場
- バイク置き場
- 24時間換気システム
- 24時間セキュリティ
- コンシェルジュサービス
- ペット可(但し、管理規約により一定の制限があります)
- 24時間ゴミ出し可
- 所在階20階以上
- 大規模(総戸数100戸以上)
- タワー(20階建以上)
- 駐車場空有
- 管理員常駐
- 主寝室8畳以上
- 住友不動産旧分譲
- リフォーム
-
--
- 立地・周辺環境
-
2沿線以上利用可|駅徒歩5分以内|小学校まで徒歩10分以内|スーパーまで徒歩10分以内|コンビニまで徒歩5分以内|眺望良好
セールスポイント
━━物件の特徴━━━━━━━━
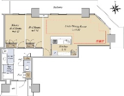
□全居室がバルコニーに面した開放感ある間取り
□収納/約1.6帖の納戸・WIC・シューズボックス・通路収納有り
□リビング・ダイニング/床暖房有り
□キッチン/生ごみ処理ディスポーザー・浄水器(水栓一体型)
□浴室/浴室暖房乾燥機
□管理員24時間有人管理(常駐管理)
□多彩な共用施設有り(一部有償・利用時間制限あり)
□コンシェルジュサービス有り(8:00〜20:00)
□ダストステーションは各階に設置、24時間利用可能━━マンションの特徴━━━━━━━
□住友不動産旧分譲/鹿島建設施工
□大規模修繕工事中/バルコニー修繕塗装等/2025年12月迄
□マンション敷地内に円形公園を設計
□2層吹き抜けのエントランスホールで重厚感を演出
□コンシェルジュサービス有り(8:00〜20:00)
□各階共用通路は内廊下でホテルのような落ち着き
□ペット飼育可(犬・猫併せて2匹まで。規約による細則有)
【共用施設(一部有償・利用時間制限あり)】
24F ゲストルーム
22F ビューラウンジ
1F デッキテラス・ベンダーコーナー・ライブラリーコーナー
B1 楽器演奏室・シアタールーム・グルーミングルーム
━━周辺環境━━━━━━━━
□グランツリー武蔵小杉・・徒歩2分(約130m)
□デイリーヤマザキシティハウス武蔵小杉店・・徒歩2分(約150m)
□デリド武蔵小杉店・・徒歩2分(約160m)
□中丸子まるっこ公園・・徒歩4分(約320m)
□川崎市立下沼部小学校・・徒歩10分(約760m)
□川崎市立玉川中学校・・徒歩13分(約1000m)
担当からのひとこと
この度はリエトコート武蔵小杉イーストタワーをご覧いただきありがとうございます。
こちらのマンションは武蔵小杉開発計画の最南端に位置する『中丸子B地区』に属し、約5.0haの広大な敷地を擁します。『ローズガーデン』『森の丘』『太陽の丘』など、敷地全体に広々とした公開空地を設け、大きな公園緑地帯を整備して、居住者の憩いの場となっており、お子様を持つご家庭にも快適に過ごせます。
また、住友不動産が旧分譲し鹿島建設の施工した45階建のタワーマンションで、エントランスからお部屋まではホテルのような内廊下で、24時間有人管理となっているため安心安全のマンションです。
さらに居住者やお客様を優雅におもてなしするエントランスホールは御影石貼りの床、天然石のトラパーチンや石英石で仕上げた壁面で構成されており、気品ある雰囲気を醸し出しております。
本住戸は、31階、西向きの為、眺望良好です。晴天時には、富士山が望めます。
また、全居室バルコニーに面しているため、明るく開放感がございます。
ウォークインクローゼット2箇所(洋室約9.0帖、洋室約6.2帖)、廊下部分には約1.6帖の納戸があり、収納力がすぐれています。
物件の検討は写真や間取図面だけでなく、マンション周辺環境やお部屋までのアプローチ、眺望、収納等一度現地を見ていただくことをお勧めいたします。
現地をご覧いただくことにより物件の状態や周辺環境が明確にご理解いただけるとともに、プロの目から見た長所・短所、購入の際の注意点を詳しくご提案させていただきます。
ご内覧希望、資金計画のご相談等、マンション専門の担当:吉成(よしなり)までお気軽にお問い合わせください。【フリーコール:0120−116−744】
周辺環境
・グランツリー武蔵小杉 徒歩2分(約130m)
・デイリーヤマザキシティハウス武蔵小杉店 徒歩2分(約150m)
・デリド武蔵小杉店 徒歩2分(約160m)
・中丸子まるっこ公園 徒歩4分(約320m)
・川崎市立下沼部小学校 徒歩10分(約760m)
物件詳細
| 物件名 | リエトコート武蔵小杉イーストタワー |
|---|---|
| 物件番号 | 153I3058 |
| 所在地 |
神奈川県川崎市中原区中丸子 |
| 価格 |
1億2,480万円
|
| 交通 | 東急東横線「武蔵小杉」駅徒歩7 分 横須賀線「武蔵小杉」駅徒歩3 分 南武線「武蔵小杉」駅徒歩7 分 |
| 間取り | 3LDK |
| 専有面積 | 88.39m2(壁芯) |
| 所在階 構造 |
31階部分/地上45階地下2階建て 鉄筋コンクリート造 |
| 築年月 | 2008年01月 |
| バルコニー(テラス)面積 | 18.85m2 |
| 採光方向 | 西 |
| 総戸数 | 1084戸 |
| 管理形態 管理方式 管理会社 |
管理会社に全部委託 常駐 住友不動産建物サービス |
| 新築時売主 | 住友不動産 |
| 施工会社 | 鹿島建設 |
| 管理費(月額) | 22,330円 |
| 修繕積立金(月額) | 23,360円 |
| 引渡時期 | 相談 |
| 現況 | 居住中 |
| 駐車場 | 空有り/月額:20,000円〜25,000円※車種による |
| 土地権利 | 所有権 |
| 取引態様 | 仲介 |
| 備考 |
|
この情報は2025年12月13日当社物件システムのデータにもとづくものであり、次回更新予定日は2025年12月27日です。
