東急田園都市線「藤が丘」駅徒歩7分/5階につき日当り良好
予約制内覧会開催情報
現地で実際に物件をご覧いただけます。ぜひこの機会にお越しください。
予約制オープンルーム開催。現地に担当者はおりませんので、ご希望日時を事前にお申し付けください。当日ご都合つかない場合も対応可能です。お問い合わせお待ちしております。
- 開催日
-
- 2025/12/21(日) 10:30〜16:30
- 2025/12/27(土) 10:30〜16:30
- 住所
-
神奈川県横浜市青葉区藤が丘1丁目
物件のポイント
物件の特徴
-
- 都市ガス
- 上水道
- 下水道
- 給湯
- 浴室乾燥機
- エレベータ
- TVモニタ付きインターホン
- 24時間換気システム
- ペット可(但し、管理規約により一定の制限があります)
- 納戸
- 自走式駐車場
- 住友不動産旧分譲
- 高台
- 管理員日勤
- リフォーム
-
--
- 立地・周辺環境
-
低層住居専用地域|小学校まで徒歩10分以内|スーパーまで徒歩10分以内|コンビニまで徒歩5分以内|公園まで徒歩5分以内|眺望良好
セールスポイント
〜東急田園都市線「藤が丘」駅徒歩7分〜
◇専有面積:66.95u
◇バルコニー面積:5.69u
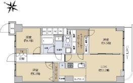
◇間取り:2LDK
◇1972年10月築
◇8階建5階部分/東向き
◇LDK約20.7帖
◇納戸約2.0帖あり
◇ペット飼育可(規約あり)
【Life Information】
藤が丘第二公園…約110m(徒歩2分)
スーパー三和藤が丘店…約320m(徒歩4分)
セブンイレブン横浜藤が丘1丁目店…約250m(徒歩4分)
昭和大学藤が丘病院…約560m(徒歩7分)
横浜柿の木台郵便局…約600m(徒歩8分)
ハックドラッグ藤が丘駅前店…約450m(徒歩6分)
横浜市立もえぎ野小学校…約610m(徒歩8分)
横浜市立もえぎ野中学校…約600m(徒歩8分)
担当からのひとこと
閲覧いただきありがとうございます。
『藤が丘ハウス』は、東急田園都市線「藤が丘」駅徒歩7分の好立地マンションです。
本物件は、5階部分東向きにつき眺望良好でございます。
バルコニーからは公園が見え、落ち着いた雰囲気を感じられます。
藤が丘駅周辺は、公園・スーパー・コンビニエンスストア・ドラッグストア・郵便局・総合病院が位置する生活しやすい住環境です。
ぜひ一度、実際に現地や周辺環境をご覧ください。
皆様のお問い合わせを心よりお待ちしております。
周辺環境
・藤が丘第二公園 徒歩2分(約110m)
・スーパー三和藤が丘店 徒歩4分(約320m)
・セブンイレブン横浜藤が丘1丁目店 徒歩4分(約250m)
・昭和大学藤が丘病院 徒歩7分(約560m)
・横浜市立もえぎ野小学校 徒歩8分(約610m)
物件詳細
| 物件名 | 藤が丘ハウス |
|---|---|
| 物件番号 | 15453023 |
| 所在地 |
神奈川県横浜市青葉区藤が丘1丁目 |
| 価格 |
2,780万円
|
| 交通 | 東急田園都市線「藤が丘」駅徒歩7 分 東急田園都市線「青葉台」駅徒歩16 分 東急田園都市線「市が尾」駅徒歩18 分 |
| 間取り | 2LDK |
| 専有面積 | 66.95m2(壁芯) |
| 所在階 構造 |
5階部分/地上8階地下1階建て 鉄骨鉄筋コンクリート造 |
| 築年月 | 1972年10月 |
| バルコニー(テラス)面積 | 5.69m2 |
| 採光方向 | 東 |
| 総戸数 | 83 戸 |
| 管理形態 管理方式 管理会社 |
管理会社に全部委託 日勤 日本ハウズイング |
| 新築時売主 | 住友不動産 |
| 施工会社 | 株式会社熊谷組 |
| 管理費(月額) | 15,370円 |
| 修繕積立金(月額) | 13,490円 |
| 引渡時期 | 相談 |
| 現況 | 空家 |
| 駐車場 | 空無し |
| 土地権利 | 所有権 |
| 取引態様 | 仲介 |
| 備考 |
|
この情報は2025年12月11日当社物件システムのデータにもとづくものであり、次回更新予定日は2025年12月25日です。
