小田急小田原線・小田急江ノ島線「相模大野」駅徒歩8分!
物件のポイント
物件の特徴
-
- 都市ガス
- 上水道
- 下水道
- 給湯
- システムキッチン
- エレベータ
- シューズインクローゼット
- ペット可(但し、管理規約により一定の制限があります)
- 南向き(南東、南西含む)
- 納戸
- 大規模(総戸数100戸以上)
- 駐車場空有
- 管理員日勤
- リフォーム
-
--
- 立地・周辺環境
-
2沿線以上利用可|小学校まで徒歩10分以内|スーパーまで徒歩10分以内|コンビニまで徒歩5分以内|公園まで徒歩5分以内
セールスポイント
小田急小田原線・小田急江ノ島線「相模大野」駅徒歩8分
小田急江ノ島線「東林間」駅徒歩17分
◇ペット飼育可(飼育細則有)
◇総戸数317戸の大規模マンション
◇内装リフォーム済(2023年1月)
・LDK、洋室、ホール、廊下、収納:フローリング張替
・キッチン、納戸、脱衣室、トイレ:ビニルタイル張替
・玄関 モルタル仕上げ、一部ビニールクロス張替
・システムキッチン新規交換(LIXIL シエラS W2400)
・洗面台新規交換
・トイレ新規交換(TOTO)
・ユニットバス新規交換(TOTO RWシリーズ Mタイプ 1416サイズ)・カップボード新規設置(LIXIL シエラS W2115)
・レンジフード 新規交換(LIXIL SERタイプ)
●Life informaiton
*セブンイレブン相模原上鶴間本町6丁目店まで約310m
*スーパー三和相模大野店まで約500m
*相模大野七丁目公園まで約80m
*市立南大野小学校まで約400m
担当からのひとこと
ご覧いただきありがとうございます。
本物件は、小田急小田原線・小田急江ノ島線「相模大野」駅(徒歩8分)が最寄り駅の物件となっております。
リフォーム履歴のある物件ですので、ぜひご内覧ください。
不動産のご購入に関しては、写真や図面だけでなく、
実際に現地をご覧いただくことをお勧めいたします。
現地をご覧いただくことにより、周辺環境や眺望、陽当たり等をご確認いただくだけでなく、
ご案内する担当者より、プロの目から見た長所・短所等を詳しくご説明差し上げることも可能です。
本物件は勿論のこと、周辺の施設や地域柄につきましてもご案内いたしますので
お気軽にお問い合わせください。
簡単な資料だけご覧になりたいという方もお気軽にお問い合わせください。
是非ご検討ください。お問い合わせは下記フリーコールまでお気軽にご連絡ください。
担当/村上(むらかみ)
フリーコール/0120-774-899
周辺環境
・セブンイレブン相模原上鶴間本町6丁目店 徒歩4分(約310m)
・スーパー三和相模大野店 徒歩7分(約500m)
・小田急オーエックス相模大野店 徒歩8分(約620m)
・相模原市立南大野小学校 徒歩5分(約400m)
・相模大野七丁目公園 徒歩1分(約80m)
物件詳細
| 物件名 | 相模大野ハイライズ |
|---|---|
| 物件番号 | 15863053 |
| 所在地 |
神奈川県相模原市南区相模大野7丁目 |
| 価格 |
3,990万円
|
| 交通 | 小田急小田原線「相模大野」駅徒歩8 分 小田急江ノ島線「東林間」駅徒歩17 分 横浜線「町田」駅徒歩22 分 |
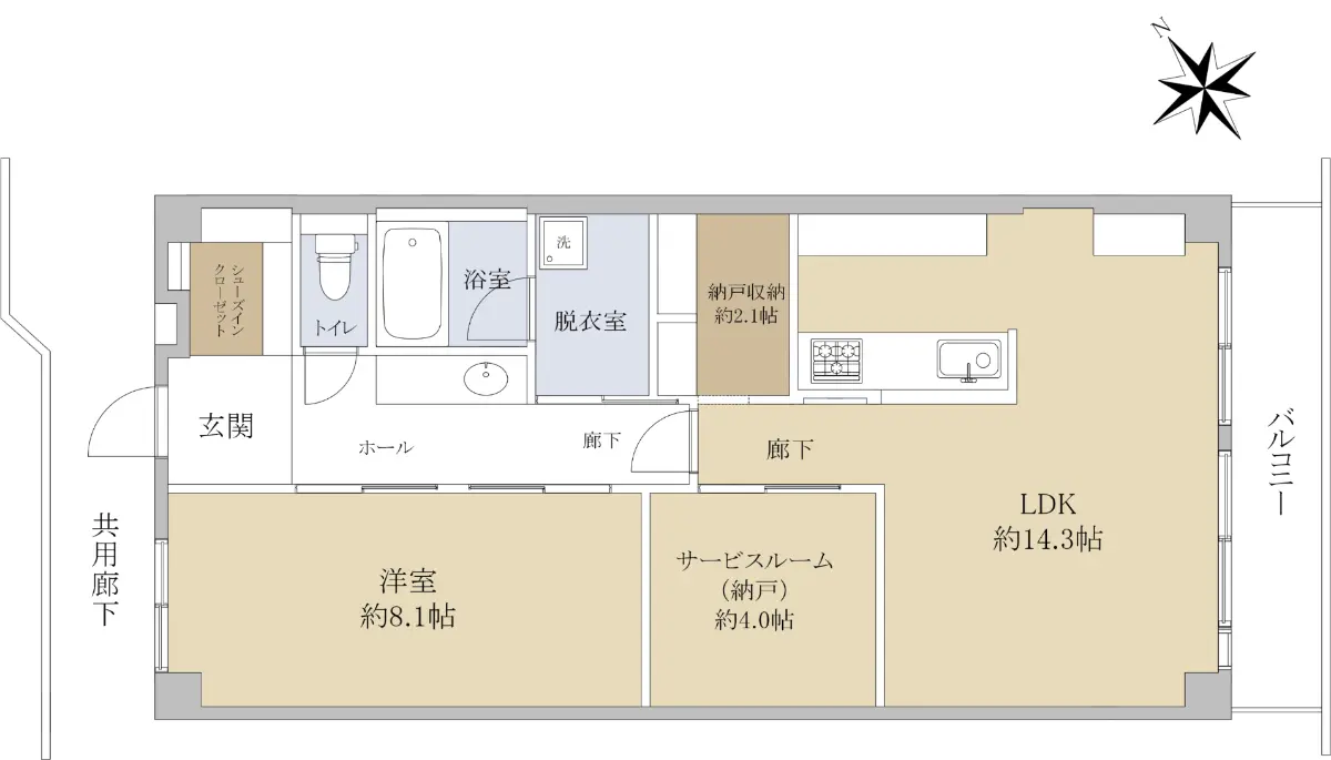
| 間取り | 1SLDK ※Sはサービスルーム(納戸) |
| 専有面積 | 69.60m2(壁芯) |
| 所在階 構造 |
9階部分/地上11階建て 鉄骨鉄筋コンクリート造 |
| 築年月 | 1982年07月 |
| バルコニー(テラス)面積 | 6.96m2 |
| 採光方向 | 南東 |
| 総戸数 | 317 戸 |
| 管理形態 管理方式 管理会社 |
管理会社に全部委託 日勤 日鉄コミュニティ |
| 新築時売主 | 興和不動産 |
| 管理費(月額) | 7,400円 |
| 修繕積立金(月額) | 14,800円 |
| 引渡時期 | 相談 |
| 現況 | 居住中 |
| 駐車場 | 空有り/月額:4,500円※車種による |
| 土地権利 | 所有権 |
| 取引態様 | 仲介 |
この情報は2026年02月26日当社物件システムのデータにもとづくものであり、次回更新予定日は2026年03月12日です。
