☆南海本線泉大津駅直結☆リフォーム歴があります
パノラマ
物件のポイント
物件の特徴
-
- 都市ガス
- 給湯
- 温水洗浄便座
- ウォークインクローゼット
- フローリング
- 2面バルコニー
- エレベータ
- モニター付きオートロック
- バス1坪以上
- 南向き(南東、南西含む)
- 角部屋
- 納戸
- 所在階20階以上
- 大規模(総戸数100戸以上)
- タワー(20階建以上)
- 管理員常駐
- リフォーム
-
●2023年04月/ホールフローリング張替、クロス貼替
●2021年08月/浴室新調、洗面台新調、洗面所CF貼替、クロス貼替
- 立地・周辺環境
-
駅徒歩5分以内|小学校まで徒歩10分以内|スーパーまで徒歩10分以内|眺望良好
セールスポイント
☆南海本線泉大津駅まで徒歩2分
☆商業施設が多数、利便性の高い立地
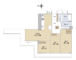
☆専有面積124.26u
☆2SLDK
☆東南角部屋
☆31階部分につき陽当り・通風・眺望良好です!
【リフォーム歴あり】
・2021年8月 浴室・洗面台新調 洗面所床CF・クロス貼替
・2023年4月 ホールフローリング張替、クロス貼替【周辺環境】
・KOHYO泉大津店まで約110m 徒歩2分
・セブンイレブン泉大津南店まで約100m 徒歩2分
・泉大津市役所まで約740m 徒歩10分
・泉大津市立旭小学校まで約220m 徒歩3分
・東雲公園まで約730m 徒歩10分
担当からのひとこと
この度は「アルザタワーズブルー」のホームページをご覧くださり、ありがとうございます。
室内は大変丁寧に使用されています!
担当:森西より物件の良いところ、注意点など詳しくご説明差し上げます。
こちらの物件にご興味がございましたら、お気軽に問い合わせ下さい。お待ち申し上げます。
フリーコール(携帯からも通話可能)
【0120−020−176】担当:森西まで、お気軽に問い合わせ下さい。
周辺環境
・KOHYO泉大津店 徒歩2分(約110m)
・セブンイレブン泉大津南店 徒歩2分(約100m)
・泉大津市役所 徒歩10分(約740m)
・泉大津市立旭小学校 徒歩3分(約220m)
・東雲公園 徒歩10分(約730m)
物件詳細
| 物件名 | アルザタワーズブルータワー |
|---|---|
| 物件番号 | 35783059 |
| 所在地 |
大阪府泉大津市旭町 |
| 価格 |
3,680万円
|
| 交通 | 南海本線「泉大津」駅徒歩2 分 |
| 間取り | 2SLDK ※Sはサービスルーム(納戸) |
| 専有面積 | 124.26m2(壁芯) |
| 所在階 構造 |
31階部分/地上36階地下2階建て 鉄骨鉄筋コンクリート造 |
| 築年月 | 1994年08月 |
| バルコニー(テラス)面積 | 31.04m2 |
| 採光方向 | 南東/角部屋 |
| 総戸数 | 381 戸 |
| 管理形態 管理方式 管理会社 |
管理会社に全部委託 常駐 アルザ |
| 新築時売主 | 丸紅株式会社、アーバンライフ株式会社 |
| 施工会社 | 竹中工務店 |
| 管理費(月額) | 23,170円 |
| 修繕積立金(月額) | 30,443円 |
| その他月額費用 | 水道減圧弁等使用料:460円 |
| 引渡時期 | 相談 |
| 現況 | 居住中 |
| 駐車場 | 空無し |
| 土地権利 | 所有権 |
| 取引態様 | 仲介 |
| 備考 |
|
この情報は2025年12月18日当社物件システムのデータにもとづくものであり、次回更新予定日は2026年01月01日です。
