◇「西葛西」駅徒歩3分◇2025年9月リフォーム済◇3面バルコニー(東・北・西)
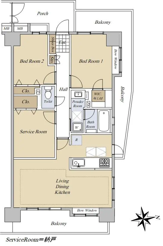
専有面積71.04m2 (壁芯)・間取り2SLDK ※Sはサービスルーム(納戸)・所在階2階部分/地上14階建て・SRC造・1998年08月築
物件のポイント
物件の特徴
-
- 都市ガス
- 給湯
- バス・トイレ別
- 温水洗浄便座
- ウォークインクローゼット
- 床下収納
- システムキッチン
- 洗面所
- 洗面台
- 室内洗濯機置場
- 3面バルコニー
- エレベータ
- 角部屋
- 納戸
- 大規模(総戸数100戸以上)
- 管理員日勤
- 大手旧分譲
- リフォーム
-
●2025年09月/システムキッチン交換
●2025年09月/ユニットバス・洗面化粧台・温水式洗浄便座付トイレ交換
●2025年09月/全室フローリング、天井・壁クロス張替
- 立地・周辺環境
-
駅徒歩5分以内
セールスポイント
╋┓ アクセス
┗╋━━━━━━━━━
▼東京メトロ東西線「西葛西」駅徒歩3分
╋┓ リフォーム内容(2025年9月完工)
┗╋━━━━━━━━━
▼システムキッチン交換
▼ユニットバス交換
▼洗面化粧台交換
▼温水式洗浄便座付トイレ交換
▼天井・壁クロス張替(全室)
▼フローリング張替(全室)
担当からのひとこと
物件のご検討については、一度現地を見ていただく事をお勧めします。
間取り図面や写真では判断できない部分もあります。
現地をご覧頂くことで周辺環境や室内の状況等を確認いただくだけでなく、
担当者より、物件の長所、短所や購入の流れ等を詳しくご説明させて頂きます。
内覧をご希望のお客様はお気軽にお問い合わせください。
皆様からのお問い合わせを心からお待ちしております。
周辺環境
--
物件詳細
| 物件名 | ライオンズステーションプラザ西葛西 |
|---|---|
| 物件番号 | A5163018 |
| 所在地 |
東京都江戸川区西葛西3丁目 |
| 価格 |
7,198万円
|
| 交通 | 東京メトロ東西線「西葛西」駅徒歩3 分 |
| 間取り | 2SLDK ※Sはサービスルーム(納戸) |
| 専有面積 | 71.04m2(壁芯) |
| 所在階 構造 |
2階部分/地上14階建て 鉄骨鉄筋コンクリート造 |
| 築年月 | 1998年08月 |
| バルコニー(テラス)面積 | 22.71m2 |
| 採光方向 | 東/角部屋 |
| 総戸数 | 124 戸 |
| 管理形態 管理方式 管理会社 |
管理会社に全部委託 日勤 大京アステージ |
| 新築時売主 | 大京 |
| 施工会社 | (株)新井組 |
| 管理費(月額) | 10,000円 |
| 修繕積立金(月額) | 7,960円 |
| 引渡時期 | 相談 |
| 現況 | 空家 |
| 駐車場 | 空無し |
| 土地権利 | 所有権 |
| 取引態様 | 仲介 |
この情報は2025年12月19日当社物件システムのデータにもとづくものであり、次回更新予定日は2026年01月02日です。
