3駅4路線利用可能な好立地 2025年7月リフォーム完了
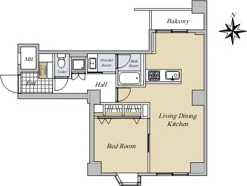
									専有面積45.84m2 (壁芯)・間取り1LDK・所在階6階部分/地上9階建て・RC造・1983年10月築
								
								
								
	
							パノラマ
物件のポイント
物件の特徴
- 
				
- 都市ガス
 - 給湯
 - 温水洗浄便座
 - 食器洗浄乾燥機
 - IHクッキングヒーター
 - 浴室乾燥機
 - エレベータ
 - 大規模(総戸数100戸以上)
 - 管理員日勤
 
 
- リフォーム
 - 
				
				
●2025年07月/システムキッチン交換・ユニットバス交換・トイレ交換
●2025年07月/洗面化粧台交換・全室クロス貼替・全室フローリング貼替
 
- 立地・周辺環境
 - 
				
2沿線以上利用可
 
セールスポイント
〈アクセス〉
・東京メトロ千代田線「乃木坂」駅 徒歩7分
・東京メトロ銀座線、半蔵門線、都営大江戸線「青山一丁目」駅 徒歩10分
・東京メトロ千代田線「赤坂」駅 徒歩11分
〈物件概要〉
・新耐震基準マンション
・1983年10月
・9階建ての6階部分
・専有面積45.84u
・間取り1LDK
・2025年7月リフォーム済
担当からのひとこと
インペリアル赤坂フォーラムの物件詳細をご覧いただきありがとうございます。
赤坂7丁目、「乃木坂」駅徒歩7分に位置する、総戸数215戸の新耐震基準マンションです。
対象住戸は6階部分で、南・北採光です。
2025年7月にリフォームが完了しており、現在空室ですので是非室内をご覧ください。
周辺環境
・まいばすけっと青山一丁目店 徒歩9分(約650m)
・ファミリーマート赤坂稲荷坂店 徒歩3分(約170m)
・スギ薬局赤坂店 徒歩8分(約590m)
・高橋是清翁記念公園 徒歩7分(約500m)
・山王病院 徒歩7分(約500m)
物件詳細
| 物件名 | インペリアル赤坂フォーラム | 
|---|---|
| 物件番号 | A52Q3134 | 
| 所在地 | 
												東京都港区赤坂7丁目 | 
										
| 価格 | 
												 7,980万円 
													 | 
										
| 交通 | 東京メトロ千代田線「乃木坂」駅徒歩7  分 都営大江戸線「青山一丁目」駅徒歩10 分 東京メトロ銀座線「青山一丁目」駅徒歩10 分  | 
										
| 間取り | 1LDK | 
| 専有面積 | 45.84m2(壁芯) | 
| 所在階 構造  | 
											6階部分/地上9階建て 鉄筋コンクリート造  | 
										
| 築年月 | 1983年10月 | 
| バルコニー(テラス)面積 | 3.30m2 | 
| 採光方向 | 北 | 
| 総戸数 | 215 戸 | 
| 管理形態 管理方式 管理会社  | 
											管理会社に全部委託 日勤 フロントサイドコミュニティー  | 
										
| 管理費(月額) | 15,100円 | 
| 修繕積立金(月額) | 6,800円 | 
| その他月額費用 | 給湯基本料:2,500円 | 
| 引渡時期 | 相談 | 
| 現況 | 空家 | 
| 駐車場 | 無し | 
| 土地権利 | 所有権 | 
| 取引態様 | 仲介 | 
| 備考 | 
												
												
  | 
										
この情報は2025年10月25日当社物件システムのデータにもとづくものであり、次回更新予定日は2025年11月08日です。
