■南東側緑地のため、陽当たり良好 ■テラス・専用庭付きの3LDK
予約制内覧会開催情報
現地で実際に物件をご覧いただけます。ぜひこの機会にお越しください。
事前に必ずお問い合わせください
- 開催日
-
- 2026/4/25(土) 10:00〜17:00
- 2026/4/26(日) 10:00〜17:00
- 住所
-
東京都杉並区成田西4丁目
物件のポイント
物件の特徴
-
- 都市ガス
- 床暖房
- 給湯
- 追焚機能
- 温水洗浄便座
- 床下収納
- ガスキッチン
- システムキッチン
- 浄水器
- 食器洗浄乾燥機
- 洗面所
- 洗面台
- 浴室乾燥機
- テラス
- 専用庭
- エレベータ
- 自動ロック
- TVモニタ付きインターホン
- モニター付きオートロック
- 宅配ボックス
- 駐輪場
- インターネット対応
- 24時間換気システム
- 24時間セキュリティ
- ペット可(但し、管理規約により一定の制限があります)
- 南向き(南東、南西含む)
- 管理員日勤
- リフォーム
-
●2025年06月/キッチン・ユニットバス・洗面化粧台・トイレ交換
●2025年06月/洗濯パン・給湯器・床暖房交換、全建具交換
●2025年06月/全フローリング張替、全クロス張替、玄関ベンチ新設
- 立地・周辺環境
-
2沿線以上利用可|低層住居専用地域|スーパーまで徒歩10分以内|公園まで徒歩5分以内
セールスポイント
【Sales Point】
○春ごろには善福寺川緑地(徒歩約10m)の桜が物件より、望めます。
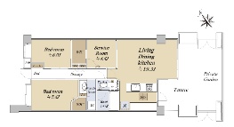
〇専用庭(19.27u)・テラス(13.16u)付き
〇リビングダイニングに床暖房
〇各居室収納あり
〇床下収納あり
〇可動間仕切りによりLDKと洋室約9.0帖の一体利用可能
〇対面式システムキッチン
グリル・浄水機・食器洗浄乾燥機
〇浴室換気乾燥機
〇追い焚き機能
〇温水洗浄便座
〇現況:空室
【リフォーム済み】※2025年06月完成
キッチン・ユニットバス・洗面化粧台・トイレ交換
洗濯パン・給湯器・床暖房交換、全建具交換
全フローリング張替、全クロス張替、玄関ベンチ新設
【マンションの特徴】
〇2路線利用可能
〇TVモニター付きオートロック
〇ペット飼育可(規約細則あり)
〇宅配ボックス
〇24時間換気システム
〇24時間セキュリティシステム
〇全住戸分のトランクルームあり
担当からのひとこと
ご不明な点等ございましたらお気軽にお申し付けください。
本社マンションプラザ
フリーコール:0120-011-988
物件担当:三浦までお問い合わせください。
周辺環境
・善福寺川緑地 徒歩1分(約10m)
・TOUMAフレッシュマート 徒歩6分(約410m)
・ファミリーマート荻窪団地前店 徒歩7分(約490m)
物件詳細
| 物件名 | L・フォレスト杉並 |
|---|---|
| 物件番号 | A52T3030 |
| 所在地 |
東京都杉並区成田西4丁目 |
| 価格 |
8,500万円
|
| 交通 | 東京メトロ丸ノ内線「南阿佐ケ谷」駅徒歩14 分 総武線「荻窪」駅徒歩21 分 |
| 間取り | 3LDK |
| 専有面積 | 75.18m2(壁芯) |
| 所在階 構造 |
1階部分/地上4階建て 鉄筋コンクリート造 |
| 築年月 | 2000年01月 |
| バルコニー(テラス)面積 | 専用庭面積19.27m2 |
| 採光方向 | 南東 |
| 総戸数 | 54 戸 |
| 管理形態 管理方式 管理会社 |
管理会社に全部委託 日勤 東急コミュニティー |
| 新築時売主 | 株式会社日鉄ライフ |
| 施工会社 | 真柄建設株式会社 |
| 管理費(月額) | 12,400円 |
| 修繕積立金(月額) | 13,530円 |
| その他月額費用 | インターネット使用料:月額990円/専用庭使用料:月額960円/町会費:月額50円 |
| 引渡時期 | 相談 |
| 現況 | 空家 |
| 駐車場 | 空無し |
| 土地権利 | 所有権 |
| 取引態様 | 仲介 |
| 備考 |
|
この情報は2026年04月09日当社物件システムのデータにもとづくものであり、次回更新予定日は2026年04月23日です。
