◆メゾネット地下1階〜地上2階部分◆新規リノベーション済(2025年6月)
物件のポイント
物件の特徴
-
- 都市ガス
- 上水道
- 下水道
- 給湯
- バス・トイレ別
- 収納スペース
- 洗濯機置場
- 室内洗濯機置場
- 浴室乾燥機
- フローリング
- テラス
- メゾネット
- ペット可(但し、管理規約により一定の制限があります)
- 南向き(南東、南西含む)
- 納戸
- 低層(3階建以下)
- 主寝室8畳以上
- 浴室に窓あり
- リフォーム
-
●2025年06月/全部屋フローリング・全クロス新規張替
●2025年06月/キッチン水栓(浄水器付)新規交換
●2025年06月/ユニットバス(浴室乾燥付)・洗面化粧台新規交換
- 立地・周辺環境
-
2沿線以上利用可|低層住居専用地域|駅徒歩5分以内|小学校まで徒歩10分以内|スーパーまで徒歩10分以内|コンビニまで徒歩5分以内
セールスポイント
≪access≫
◇東急東横線「都立大学」駅 徒歩5分
◇東急東横線「学芸大学」駅 徒歩18分
◇東急大井町線「緑が丘」駅 徒歩21分
≪Point≫
◇3駅2路線利用可能
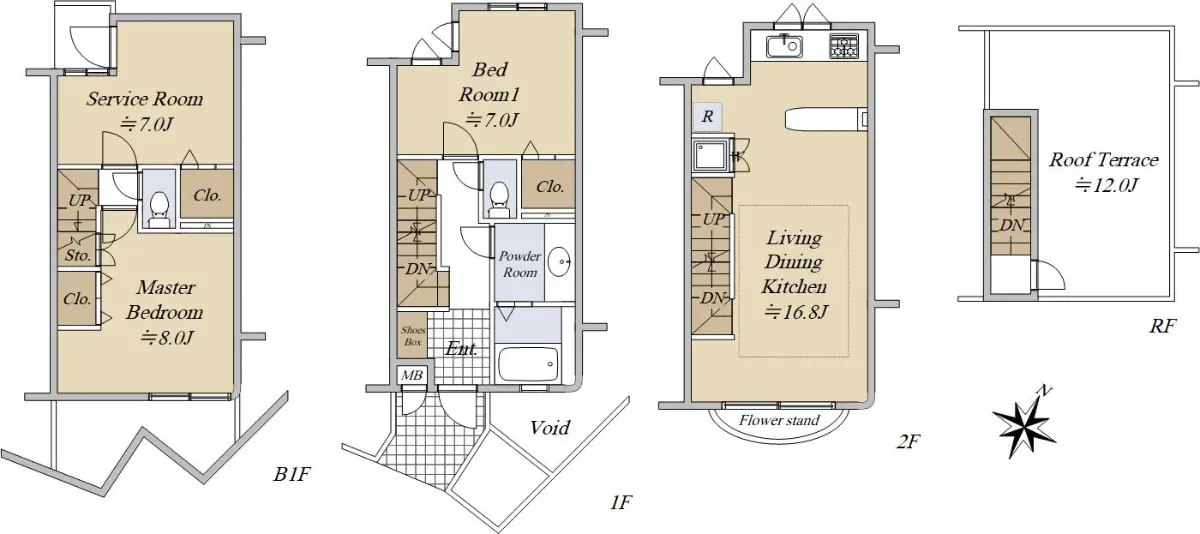
◇メゾネット地下1階〜地上2階部分
◇2SLDK×98.93u
※専有面積に地下1階部分31.63u含む
◇駐車場:一住戸につき一台限り無償(車種による)
◇ペット飼育可(規制有)
◇2025年6月新規リノベーション済
・全室フローリング新規上張り
・全クロス新規張替
・キッチン水栓新規交換(浄水器付)
・ユニットバス新規交換(浴室乾燥機付)
・洗面化粧台新規交換
・照明新規交換
≪LIFE INFORMATION≫
◇東急ストア都立大学店まで約380m
◇ローソン柿の木坂店まで約320m
◇目黒区立八雲小学校まで約720m
◇目黒区立第十中学校まで約1390m
◇目黒区立八雲児童遊園まで約450m
担当からのひとこと
この度は、「セボングランディール柿の木坂」の掲載ページをご覧頂き、ありがとうございます。
本マンションはメゾネット地下1階〜地上2階部分で広々とした98.93u(※専有面積に地下1階部分31.63u含む)、2SLDKのお部屋でございます。
内装工事完成しておりますので、急遽のご見学希望でも調整可能です。
物件のご検討については、ぜひ写真や図面だけではなく、現地をご覧になることをおすすめしております。現地をご覧頂くことにより周辺環境や物件の仕様等を確認いただくだけでなく、ご案内する担当者【徳永(とくなが)】より、プロの目から見た長所・短所等を詳しくご説明差し上げる事もできますので、ご興味をお持ちの方は、お気軽に下記フリーコールまでご一報下さいませ。
【担当:徳永(とくなが)】フリーコール:0120−492−374
皆様のお問合せを心よりお待ちしております。
周辺環境
・東急ストア都立大学店 徒歩5分(約380m)
・ローソン柿の木坂店 徒歩4分(約320m)
・目黒区立八雲小学校 徒歩9分(約720m)
・目黒区立第十中学校 徒歩18分(約1390m)
・目黒区立八雲児童遊園 徒歩6分(約450m)
物件詳細
| 物件名 | セボングランディール柿の木坂 |
|---|---|
| 物件番号 | A5463018 |
| 所在地 |
東京都目黒区柿の木坂1丁目 |
| 価格 |
1億980万円
|
| 交通 | 東急東横線「都立大学」駅徒歩5 分 東急東横線「学芸大学」駅徒歩18 分 東急大井町線「緑が丘」駅徒歩21 分 |
| 間取り | 2SLDK ※Sはサービスルーム(納戸) |
| 専有面積 | 98.93m2(壁芯) |
| 所在階 構造 |
1階部分/地上2階地下1階建て 鉄筋コンクリート造 |
| 築年月 | 2000年09月 |
| バルコニー(テラス)面積 | ルーフバルコニー面積19.55m2 |
| 採光方向 | 南東 |
| 総戸数 | 8 戸 |
| 管理形態 管理方式 管理会社 |
管理会社に全部委託 管理員なし 大京アステージ |
| 新築時売主 | 大伸フード株式会社 |
| 管理費(月額) | 18,600円 |
| 修繕積立金(月額) | 18,500円 |
| 引渡時期 | 相談 |
| 現況 | 空家 |
| 土地権利 | 所有権 |
| 取引態様 | 仲介 |
| 備考 |
|
この情報は2025年12月11日当社物件システムのデータにもとづくものであり、次回更新予定日は2025年12月25日です。
