• 新着
  • オーナーチェンジ

本物件は投資向け物件です

想定利回り
2.70 %
年間想定賃料等
832万6,800
月額賃料等
69万3,900
現在の賃貸状況
全部賃貸中
オーナーチェンジ

投資用不動産

3億800万円

豊島区南大塚1丁目アパート

アパート

アパート

  • 新着
  • オーナーチェンジ
3億800万円

豊島区南大塚1丁目アパート

想定利回り
2.70 %

■満室稼働中(2025年11月22日現在)■ ■1K×12室

東京都豊島区南大塚1丁目

建物面積240.28m2(約72.68坪)・土地面積93.84m2(約28.38坪)※公簿・2005年12月築

■満室稼働中(2025年11月22日現在)■ ■1K×12室

東京都豊島区南大塚1丁目

建物面積240.28m2(約72.68坪)・土地面積93.84m2(約28.38坪)※公簿・2005年12月築

物件のポイント

本物件は投資向け物件です

想定利回り
2.70 %
想定利回り
2.70 %
年間想定賃料等
832万6,800
月額賃料等
69万3,900
現在の賃貸状況
全部賃貸中
オーナーチェンジ
投資用・事業用不動産について
  • 賃料等の収入や利回りは、将来にわたり、確実に得られることを保証するものではありません。
  • 賃料等は、賃貸中のものについては現在の賃料等で、新築および空室または一部空き有のものについては、周辺の賃料相場に基づき満室となった場合を想定して表示しています。
  • 利回りは、現況または満室想定時の賃料等の収入に基づく単純利回り(賃料等の年間合計金額÷ 販売価格(税込))で、公租公課や維持管理費等の必要経費は控除されていません。

物件の特徴

  • 角地
    角地
  • 南道路(南東・南西含む)
    南道路(南東・南西含む)
  • 容積率100%以上
    容積率100%以上
  • スーパーまで徒歩10分以内
    スーパーまで徒歩10分以内
  • コンビニまで徒歩5分以内
    コンビニまで徒歩5分以内
  • 前面道路幅員6m以上
    前面道路幅員6m以上
  • 近隣商業地域
    近隣商業地域
  • 前面道路公道
    前面道路公道
  • 角地
    角地
  • 南道路(南東・南西含む)
    南道路(南東・南西含む)
  • 容積率100%以上
    容積率100%以上
  • スーパーまで徒歩10分以内
    スーパーまで徒歩10分以内
  • コンビニまで徒歩5分以内
    コンビニまで徒歩5分以内
  • 前面道路幅員6m以上
    前面道路幅員6m以上
  • 近隣商業地域
    近隣商業地域
  • 前面道路公道
    前面道路公道
    • --
    リフォーム

    --

    立地・周辺環境

    角地|南道路(南東・南西含む)|容積率100%以上|スーパーまで徒歩10分以内|コンビニまで徒歩5分以内|前面道路幅員6m以上|近隣商業地域|防火・準防火|前面道路公道

    セールスポイント

    ■アクセス
    東京メトロ丸ノ内線「新大塚」駅 徒歩7分
    JR山手線「大塚」駅 徒歩11分
    都電荒川線「大塚駅前」駅 徒歩11分

    都営三田線「千石」駅 徒歩13分

    ■物件ポイント
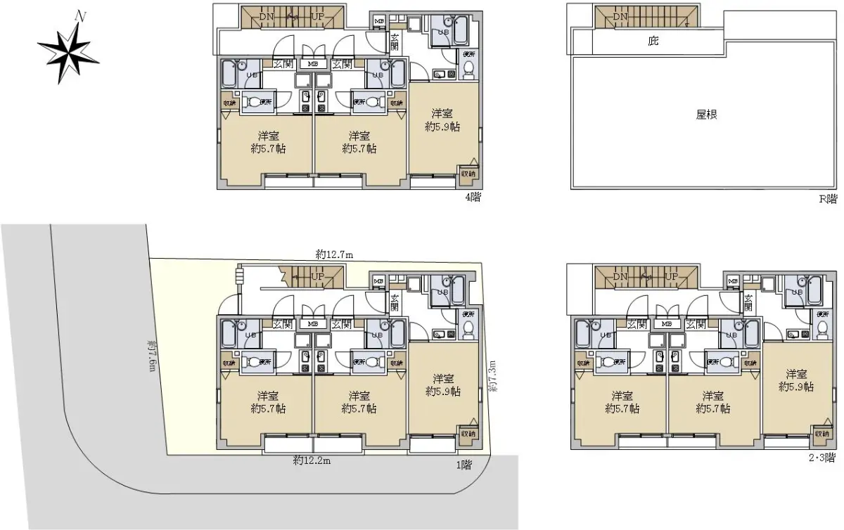
    ・敷地面積:93.84u
    ・建物面積:240.28u
     1階 62.65u
     2階〜4階 各階 59.21u
    ・各階 1K×3室
    ・満室賃貸中(2025年11月22日現在)


    *Life Information*
    ・ライフ新大塚店           約100m
    ・サミットストア新大塚千川通り店   約120m
    ・セブンイレブン豊島南大塚1丁目南店 約20m
    ・ファミリーマート南大塚店      約540m
    ・マツモトキヨシ新大塚駅前店     約680m
    ・豊島南大塚郵便局          約460m

    担当からのひとこと

    この度は「豊島区南大塚1丁目アパート」をご覧いただき誠にありがとうございます。

    複数路線利用可、徒歩圏内にスーパー・コンビニ・ドラッグストア・郵便局が揃い
    利便性の高い立地の物件となっております。


    物件に関する詳細は担当「古塩」までお気軽にお問い合わせください。

    ・ライフ新大塚店 徒歩2分(約100m)
    ・サミットストア新大塚千川通り店 徒歩2分(約120m)
    ・セブンイレブン豊島南大塚1丁目南 徒歩1分(約20m)

    物件詳細

    物件名 豊島区南大塚1丁目アパート
    物件番号 15094013
    所在地 東京都豊島区南大塚1丁目
    価格
    3億800万円
    交通 東京メトロ丸ノ内線新大塚」駅徒歩7 分
    山手線大塚」駅徒歩11 分
    都営三田線千石」駅徒歩13 分
    建物面積 240.28m2(約72.68坪)
    土地面積 93.84m2(約28.38坪)※公簿
    階数
    構造
    地上4階建て
    鉄筋コンクリート造
    築年月 2005年12月
    地目
    地勢
    宅地
    総住戸数 12 戸
    各住戸の専有面積 最小9.24m2〜最大9.64m2
    接道状況 角地・南西18.2m(公道)接面7.6m/南東9m(公道)接面12.2m/北東6.1m(公道)接面7.3m
    建ぺい率 80%
    容積率 400%
    都市計画 市街化区域
    用途地域 近隣商業地域
    地域・地区 防火地域/第3種高度地区
    引渡時期 相談
    現況 賃貸中
    駐車場 無し
    土地権利 所有権
    取引態様 仲介
    備考
    • ・間取り:1K×12

    この情報は2025年11月30日当社物件システムのデータにもとづくものであり、次回更新予定日は2025年12月14日です。