• 新着
  • オーナーチェンジ

本物件は投資向け物件です

想定利回り
6.63 %
年間想定賃料等
795万6,000
月額賃料等
66万3,000
現在の賃貸状況
一部賃貸中
オーナーチェンジ

投資用不動産

1億2,000万円

小田原市本町3丁目1棟マンション

マンション(一棟)

マンション(一棟)

  • 新着
  • オーナーチェンジ
1億2,000万円

小田原市本町3丁目1棟マンション

想定利回り
6.63 %

■オーナーチェンジ物件 ■徒歩圏内にスーパー、コンビニ有

神奈川県小田原市本町3丁目

建物面積572.37m2(約173.14坪)・土地面積236.72m2(約71.60坪)※公簿・1997年06月築

■オーナーチェンジ物件 ■徒歩圏内にスーパー、コンビニ有

神奈川県小田原市本町3丁目

建物面積572.37m2(約173.14坪)・土地面積236.72m2(約71.60坪)※公簿・1997年06月築

物件のポイント

本物件は投資向け物件です

想定利回り
6.63 %
想定利回り
6.63 %
年間想定賃料等
795万6,000
月額賃料等
66万3,000
現在の賃貸状況
一部賃貸中
オーナーチェンジ
投資用・事業用不動産について
  • 賃料等の収入や利回りは、将来にわたり、確実に得られることを保証するものではありません。
  • 賃料等は、賃貸中のものについては現在の賃料等で、新築および空室または一部空き有のものについては、周辺の賃料相場に基づき満室となった場合を想定して表示しています。
  • 利回りは、現況または満室想定時の賃料等の収入に基づく単純利回り(賃料等の年間合計金額÷ 販売価格(税込))で、公租公課や維持管理費等の必要経費は控除されていません。

物件の特徴

  • リフォーム済み
    リフォーム済み
  • 角地
    角地
  • 南道路(南東・南西含む)
    南道路(南東・南西含む)
  • 容積率100%以上
    容積率100%以上
  • 小学校まで徒歩10分以内
    小学校まで徒歩10分以内
  • コンビニまで徒歩5分以内
    コンビニまで徒歩5分以内
  • 駐車場有
    駐車場有
  • 前面道路幅員6m以上
    前面道路幅員6m以上
  • 商業地域
    商業地域
  • 土地面積50坪以上
    土地面積50坪以上
  • 前面道路公道
    前面道路公道
  • リフォーム済み
    リフォーム済み
  • 角地
    角地
  • 南道路(南東・南西含む)
    南道路(南東・南西含む)
  • 容積率100%以上
    容積率100%以上
  • 小学校まで徒歩10分以内
    小学校まで徒歩10分以内
  • コンビニまで徒歩5分以内
    コンビニまで徒歩5分以内
  • 駐車場有
    駐車場有
  • 前面道路幅員6m以上
    前面道路幅員6m以上
  • 商業地域
    商業地域
  • 土地面積50坪以上
    土地面積50坪以上
  • 前面道路公道
    前面道路公道
  • 駐車場有
  • 土地面積50坪以上
    リフォーム

    ●2024年07月/屋上防水

    ●2024年11月/外壁塗装

    立地・周辺環境

    角地|南道路(南東・南西含む)|容積率100%以上|小学校まで徒歩10分以内|コンビニまで徒歩5分以内|前面道路幅員6m以上|商業地域|前面道路公道

    セールスポイント

    ■(2026年1月9日現在)
     現況年額賃料等7,956,000円 (現況貸室数7/総貸室数8)
     現況利回り6.63%
    ■車庫5台分有(車種による)

    ■徒歩圏内に生活便利施設が揃った住みやすい立地

    ≪リフォーム内容≫
    □屋上防水 ※2024年7月完了
    □外壁塗装 ※2024年11月完了
    〜〜〜ライフインフォメーション〜〜〜
     ◆セブンイレブン小田原本町店まで約360m(徒歩5分)
     ◆OdakyuOX小田原店まで約970m(徒歩13分)
     ◆小田原本町郵便局まで約180m(徒歩3分)
     ◆間中病院まで約400m(徒歩5分)
     ◆小田原城址公園まで約610m(徒歩8分)
     ◆小田原市立三の丸小学校まで約540m(徒歩7分)
     ◆小田原市立城山中学校まで約1570m(徒歩20分)
     ◆御幸の浜まで約220m(徒歩3分)

    担当からのひとこと

    ■オーナーチェンジ物件 ■徒歩圏内にスーパー、コンビニ有

    物件探しの基本はやはり「現地を実際に見て頂くこと」にあります。
    写真や図面だけではなく、是非、現地をご覧になって頂くことをお勧めします。

    現地をご覧いただくことで、周辺環境や物件の状態が明確にご理解いただけるとともに、
    プロの目から見た物件の長所・短所、購入の際の注意点を詳しくご説明いたします。

    <当地域で売却をご検討中の皆様へ>
    当地域は、平塚営業センターの積極的に営業を行っている地域です。
    売却をご検討の方は是非一度お気軽にご相談下さい。
    もちろん、秘密厳守で査定やご相談は無料です。

    @フリーコール
     0120−255−178
    A無料相談FAX
     0463−25−5174

    ・セブンイレブン小田原本町店 徒歩5分(約360m)
    ・OdakyuOX小田原店 徒歩13分(約970m)
    ・間中病院 徒歩5分(約400m)
    ・小田原市立三の丸小学校 徒歩7分(約540m)
    ・御幸の浜 徒歩3分(約220m)

    物件詳細

    物件名 小田原市本町3丁目1棟マンション
    物件番号 150K4012
    所在地 神奈川県小田原市本町3丁目
    価格
    1億2,000万円
    交通 東海道本線小田原」駅徒歩15 分
    建物面積 572.37m2(約173.14坪)
    土地面積 236.72m2(約71.60坪)※公簿
    階数
    構造
    地上3階建て
    鉄骨造
    築年月 1997年06月
    地目
    地勢
    宅地
    平坦
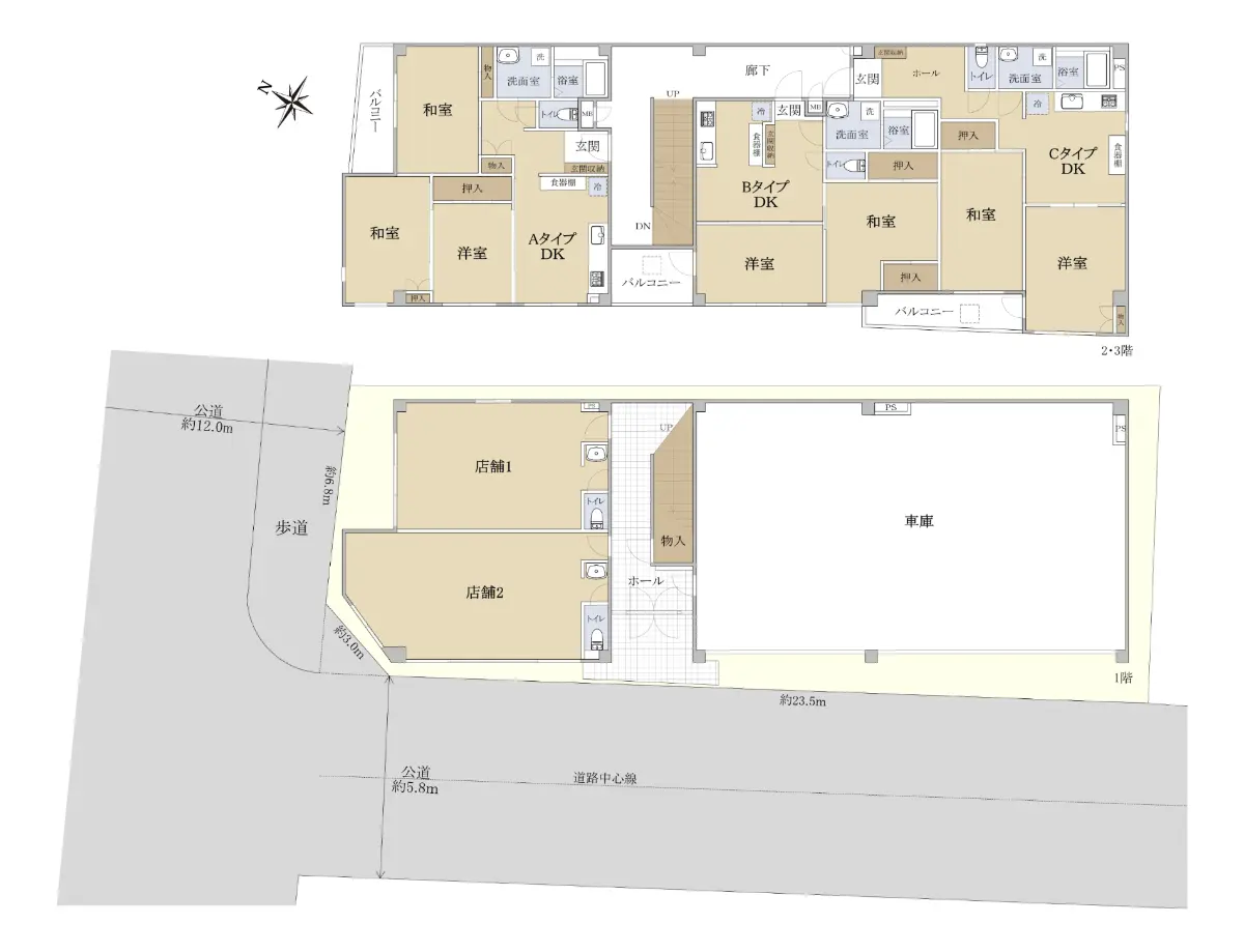
    総住戸数 6 戸
    各住戸の専有面積 不詳
    接道状況 角地・北西12m(公道)接面6.8m/南西5.8m(公道)接面23.5m
    建ぺい率 90%
    容積率 400%
    都市計画 市街化区域
    用途地域 商業地域
    地域・地区 文化財保護法
    引渡時期 相談
    現況 賃貸中
    駐車場 有り
    土地権利 所有権
    取引態様 仲介
    国土法 届出不要
    備考
    • ・車庫5台分(車種による)
    • ・建物面積には車庫110.29uを含みます。
    • ・間取:(2DK×4部屋)+(3DK×2部屋)
    • ・間取:(店舗1/25.41u)+(店舗2/29.80u)

    この情報は2026年01月15日当社物件システムのデータにもとづくものであり、次回更新予定日は2026年01月29日です。