• 新着
  • オーナーチェンジ

本物件は投資向け物件です

想定利回り
5.07 %
年間想定賃料等
2,030万8,800
月額賃料等
169万2,400
現在の賃貸状況
全部賃貸中
オーナーチェンジ

投資用不動産

4億円

北区西ケ原4丁目二棟同時売却

その他建物(一棟)

その他建物(一棟)

  • 新着
  • オーナーチェンジ
4億円

北区西ケ原4丁目二棟同時売却

想定利回り
5.07 %

◆北区西ケ原4丁目二棟同時売却 ◆満室稼働中 ◆北西・北東角地 

東京都北区西ケ原4丁目

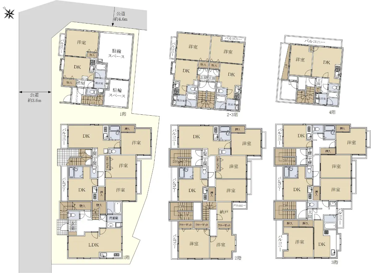
建物面積327.41m2(約99.04坪)/254.37m2(約76.94坪)・土地面積316.22m2(約95.65坪)※公簿/セットバック:11.00m2含む/他に私道負担:7.75m2あり・2007年05月築

◆北区西ケ原4丁目二棟同時売却 ◆満室稼働中 ◆北西・北東角地 

東京都北区西ケ原4丁目

建物面積327.41m2(約99.04坪)/254.37m2(約76.94坪)・土地面積316.22m2(約95.65坪)※公簿/セットバック:11.00m2含む/他に私道負担:7.75m2あり・2007年05月築

物件のポイント

本物件は投資向け物件です

想定利回り
5.07 %
想定利回り
5.07 %
年間想定賃料等
2,030万8,800
月額賃料等
169万2,400
現在の賃貸状況
全部賃貸中
オーナーチェンジ
投資用・事業用不動産について
  • 賃料等の収入や利回りは、将来にわたり、確実に得られることを保証するものではありません。
  • 賃料等は、賃貸中のものについては現在の賃料等で、新築および空室または一部空き有のものについては、周辺の賃料相場に基づき満室となった場合を想定して表示しています。
  • 利回りは、現況または満室想定時の賃料等の収入に基づく単純利回り(賃料等の年間合計金額÷ 販売価格(税込)×100%)で、公租公課や維持管理費等の必要経費は控除されていません。

物件の特徴

  • 角地
    角地
  • 第一種中高層住居専用地域
    第一種中高層住居専用地域
  • 近隣商業地域
    近隣商業地域
  • 土地面積50坪以上
    土地面積50坪以上
  • 前面道路公道
    前面道路公道
  • 角地
    角地
  • 第一種中高層住居専用地域
    第一種中高層住居専用地域
  • 近隣商業地域
    近隣商業地域
  • 土地面積50坪以上
    土地面積50坪以上
  • 前面道路公道
    前面道路公道
  • 土地面積50坪以上
    リフォーム

    --

    立地・周辺環境

    角地|第一種中高層住居専用地域|近隣商業地域|防火・準防火|前面道路公道

    セールスポイント

    〔交通アクセス〕
    ・山手線「駒込」駅 徒歩14分
    ・南北線「西ケ原」駅 徒歩8分

    〔物件概要〕
    ・北区西ケ原4丁目二棟同時売却
    ●建物概要
    ・建物面積:581.78u(内訳:ファミール吉沢/327.41u ファミール吉沢U/254.37u)
    ・建築年月:ファミール吉沢/1986年7月築 ファミール吉沢U/2007年5月築
    ・構造:ファミール吉沢/鉄筋コンクリート造陸屋根4階建 ファミール吉沢/鉄筋コンクリート造ルーフィング茸3階建
    ・賃貸状況(オーナーチェンジ):全部賃貸中(現況貸室数14戸/総貸室数14戸)
    ・月額賃料:1692400円
    ・年額賃料:20308800円
    ・表面利回り:5.07%※賃料等の収入や利回りは、将来にわたり、確実に得られることを保証するものではありません。
    ※賃料等は、賃貸中のものについては現在の賃料等で、新築および空室または一部空き有のものについては、周辺の賃料相場に基づき満室となった場合を想定して表示しています。
    ※利回りは、現況または満室想定時の賃料等の収入に基づく単純利回り(賃料等の年間合計金額÷ 販売価格(税込)×100%)で、公租公課や維持管理費等の必要経費は控除されていません。

    ●土地概要(所有権)
    ・土地面積(公簿):316.22u(95.65坪)/セットバック面積11u含む、他に私道負担7.75uあり
    ・接道状況:北西側公道 幅員約3.6m、北東側公道、幅員約4.6m
    ・用途地域:第一種中高層住居専用地域、近隣商業地域
    ・建ぺい率:60%(第一種中高層住居専用地域)、80%(近隣商業地域)
    ・容積率:160%(第一種中高層住居専用地域)、281%(近隣商業地域)
    ・地目:宅地
    ・高度地区:第二種高度地区(第一種中高層住居専用地域)、第三種高度地区(近隣商業地域)

    〜大規模修繕工事済〜
    ・ファミール吉沢 2025年2月大規模修繕完了
    (屋根、バルコニー防水、外壁コーキング・タイル補修)
    ・ファミール吉沢 2022年7月大規模修繕完了
    (屋根、バルコニー防水、外壁コーキング・タイル補修)

    担当からのひとこと

    この度は、【北区西ケ原4丁目二棟同時売却】をご覧頂き誠に有り難う御座います。
    本物件は、山手線「駒込」駅まで徒歩14分の物件です。
    ご興味がありましたら、お気軽に申し付けください。

    ☆不動産の購入を検討されているお客様へ☆ 
    ローンを組まれる場合、担当者の知識や経験により、組める金融機関の選定が変わってきます。
    物件選びも担当者の提案力により新たな選択肢も増えてきます。
    弊社に掲載されている物件以外でも、気になる物件があればまずはお気軽に相談頂ければと思います。

    ☆不動産の売却を検討中のお客様へ☆
    ご所有不動産の無料査定、無料相談を随時承っております。
    マンション、戸建、ビル、アパート、相続等、買い替えなど不動産に関することはお気軽にご相談下さい。
    重要な資産をご売却するにあたって、仲介業者によって変わってきます。

    --

    物件詳細

    物件名 北区西ケ原4丁目二棟同時売却
    物件番号 151G4016
    所在地 東京都北区西ケ原4丁目
    価格
    4億円
    交通 山手線駒込」駅徒歩14 分
    東京メトロ南北線西ケ原」駅徒歩8 分
    建物面積 327.41m2(約99.04坪)/254.37m2(約76.94坪)
    土地面積 316.22m2(約95.65坪)※公簿/セットバック:11.00m2含む/他に私道負担:7.75m2あり
    階数
    構造
    地上4階建て
    鉄筋コンクリート造
    築年月 2007年05月
    地目
    地勢
    宅地
    平坦
    総住戸数 14 戸
    各住戸の専有面積 不詳
    接道状況 角地・北西3.6m(公道)接面17.9m/北東4.6m(公道)接面16.5m
    建ぺい率 60%
    容積率 160% ※近隣商業地域部分の建ぺい率は80%、容積率は281%となります。
    都市計画 市街化区域
    用途地域 第1種中高層住居専用地域/近隣商業地域
    地域・地区 準防火地域
    引渡時期 相談
    現況 賃貸中
    駐車場 無し
    土地権利 所有権
    取引態様 仲介
    国土法 届出不要
    備考
    • ・別棟あり:建物床面積:1階・113.18u、2階・107.52u、3階・106.71u
    • ・構造:鉄筋コンクリート造ルーフィング茸3階建 建築年月:昭和61年7月

    この情報は2025年10月24日当社物件システムのデータにもとづくものであり、次回更新予定日は2025年11月07日です。