【オーナーチェンジ物件】3路線3駅利用可能な好立地に位置しております!
物件のポイント
本物件は投資向け物件です
- 想定利回り
- 4.80 %
- 想定利回り
- 4.80 %
- 年間想定賃料等
- 720万 円
- 月額賃料等
- 60万 円
- 現在の賃貸状況
- 
							全部賃貸中オーナーチェンジ
- 投資用・事業用不動産について
- 
						- 賃料等の収入や利回りは、将来にわたり、確実に得られることを保証するものではありません。
- 賃料等は、賃貸中のものについては現在の賃料等で、新築および空室または一部空き有のものについては、周辺の賃料相場に基づき満室となった場合を想定して表示しています。
- 利回りは、現況または満室想定時の賃料等の収入に基づく単純利回り(賃料等の年間合計金額÷ 販売価格(税込)×100%)で、公租公課や維持管理費等の必要経費は控除されていません。
 
物件の特徴
- 
				- 土地面積30坪以上
 
- リフォーム
- 
				-- 
- 立地・周辺環境
- 
				容積率100%以上|スーパーまで徒歩10分以内|前面道路幅員6m以上|商業地域|防火・準防火|前面道路公道 
セールスポイント
◎3路線3駅利用可能でアクセス良好
・京浜急行電鉄本線「日ノ出町」駅まで徒歩7分
・横浜市営地下鉄ブルーライン「伊勢佐木長者町」駅まで徒歩7分
・JR京浜東北・根岸線「関内」駅まで徒歩11分
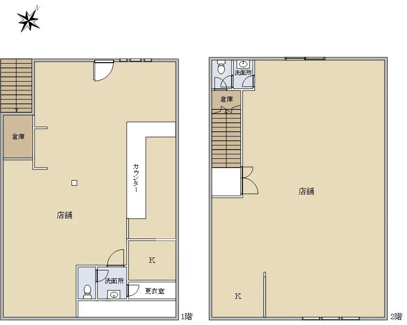
◎土地面積:102.64u
◎建物面積:176.43u
・1階部分: 87.18u
・2階部分: 89.25u
◎オーナーチェンジ物件
・現況:賃貸中
・賃料:600000円/月額
・想定利回り:4.80%(2025年3月14日現在)
担当からのひとこと
「横浜市中区若葉町2丁目ビル」をご覧頂き、誠にありがとうございます。
本物件は、3路線3駅利用可能な好立地に存する一棟ビル(店舗)です。
*****お客様へお願い******
物件探しの基本はやはり「物件を実際に見て頂くこと」にあります。
写真や図面だけではなく、実際に現地を見て頂く事をお勧めいたします。
現地を見て頂くことで、周辺環境や、
物件の状態が明確にご理解いただけるとともに、
プロの目から見た物件の長所・短所、購入の際の注意点を
詳しくご説明させていただきます。
周辺環境
・ドン・キホーテ伊勢佐木町店 徒歩4分(約310m)
・業務スーパー伊勢佐木モール店 徒歩5分(約380m)
物件詳細
| 物件名 | 横浜市中区若葉町2丁目ビル | 
|---|---|
| 物件番号 | 15244014 | 
| 所在地 | 神奈川県横浜市中区若葉町2丁目 | 
| 価格 | 1億5,000万円 | 
| 交通 | 京急本線「日ノ出町」駅徒歩7  分 横浜市ブルーライン「伊勢佐木長者町」駅徒歩7 分 京浜東北・根岸線「関内」駅徒歩11 分 | 
| 建物面積 | 176.43m2(約53.37坪) | 
| 土地面積 | 102.64m2(約31.04坪)※公簿 | 
| 階数 構造 | 地上2階建て 木造 | 
| 築年月 | 1953年10月 | 
| 地目 地勢 | 宅地 | 
| 接道状況 | 一方道路・北西10.8m(公道)接面8.2m | 
| 建ぺい率 | 80% | 
| 容積率 | 500% | 
| 都市計画 | 市街化区域 | 
| 用途地域 | 商業地域 | 
| 地域・地区 | 防火地域 | 
| 引渡時期 | 相談 | 
| 現況 | 賃貸中 | 
| 駐車場 | 無し | 
| 土地権利 | 所有権 | 
| 取引態様 | 仲介 | 
| 国土法 | 届出不要 | 
この情報は2025年10月31日当社物件システムのデータにもとづくものであり、次回更新予定日は2025年11月14日です。
 
									 
									 
									 
									 
									 
									 
									 
									 
									 
									 
									