• おすすめ物件
  • オーナーチェンジ

本物件は投資向け物件です

想定利回り
6.90 %
年間想定賃料等
551万4,000
月額賃料等
45万9,500
現在の賃貸状況
一部賃貸中
オーナーチェンジ

投資用不動産

7,980万円

上尾市大字原市アパート

アパート

アパート

  • オーナーチェンジ
7,980万円

上尾市大字原市アパート

想定利回り
6.90 %

〇原市駅徒歩1分 〇土地面積:184.70坪 〇満室想定利回り:6.90%

埼玉県上尾市大字原市

建物面積317.98m2(約96.18坪)・土地面積610.58m2(約184.70坪)※公簿・1992年08月築

〇原市駅徒歩1分 〇土地面積:184.70坪 〇満室想定利回り:6.90%

埼玉県上尾市大字原市

建物面積317.98m2(約96.18坪)・土地面積610.58m2(約184.70坪)※公簿・1992年08月築

物件のポイント

本物件は投資向け物件です

想定利回り
6.90 %
想定利回り
6.90 %
年間想定賃料等
551万4,000
月額賃料等
45万9,500
現在の賃貸状況
一部賃貸中
オーナーチェンジ
投資用・事業用不動産について
  • 賃料等の収入や利回りは、将来にわたり、確実に得られることを保証するものではありません。
  • 賃料等は、賃貸中のものについては現在の賃料等で、新築および空室または一部空き有のものについては、周辺の賃料相場に基づき満室となった場合を想定して表示しています。
  • 利回りは、現況または満室想定時の賃料等の収入に基づく単純利回り(賃料等の年間合計金額÷ 販売価格(税込))で、公租公課や維持管理費等の必要経費は控除されていません。

物件の特徴

  • 角地
    角地
  • 南道路(南東・南西含む)
    南道路(南東・南西含む)
  • 容積率100%以上
    容積率100%以上
  • 駅徒歩5分以内
    駅徒歩5分以内
  • 小学校まで徒歩10分以内
    小学校まで徒歩10分以内
  • スーパーまで徒歩10分以内
    スーパーまで徒歩10分以内
  • 公園まで徒歩5分以内
    公園まで徒歩5分以内
  • 駐車場有
    駐車場有
  • 前面道路幅員6m以上
    前面道路幅員6m以上
  • 第二種住居地域
    第二種住居地域
  • セットバックなし・済み
    セットバックなし・済み
  • 土地面積100坪以上
    土地面積100坪以上
  • 角地
    角地
  • 南道路(南東・南西含む)
    南道路(南東・南西含む)
  • 容積率100%以上
    容積率100%以上
  • 駅徒歩5分以内
    駅徒歩5分以内
  • 小学校まで徒歩10分以内
    小学校まで徒歩10分以内
  • スーパーまで徒歩10分以内
    スーパーまで徒歩10分以内
  • 公園まで徒歩5分以内
    公園まで徒歩5分以内
  • 駐車場有
    駐車場有
  • 前面道路幅員6m以上
    前面道路幅員6m以上
  • 第二種住居地域
    第二種住居地域
  • セットバックなし・済み
    セットバックなし・済み
  • 土地面積100坪以上
    土地面積100坪以上
  • 駐車場有
  • セットバックなし・済み
  • 土地面積100坪以上
    リフォーム

    --

    立地・周辺環境

    角地|南道路(南東・南西含む)|容積率100%以上|駅徒歩5分以内|小学校まで徒歩10分以内|スーパーまで徒歩10分以内|公園まで徒歩5分以内|前面道路幅員6m以上|第二種住居地域|前面道路公道

    セールスポイント

    【セールスポイント】
    〇「原市」駅 徒歩1分
    〇土地面積:610.58u(184.70坪)
    〇建物面積:317.98u(96.18坪)

    〇3方角地
    〇総戸数:8戸、駐車スペース8台(車種による)
    〇満室想定利回り:6.90%
    〇満室想定年収:5,514,000円
    〇現況年収:5,316,000円(2026年2月13日現在)

    ※賃料等の収入や利回りは、将来にわたり、確実に得られることを保証するものではありません。
    ※賃料等は、賃貸中のものについては現在の賃料等で、新築および空室または一部空き有のものについては、周辺の賃料相場に基づき満室となった場合を想定して表示しています。
    ※利回りは、現況または満室想定時の賃料等の収入に基づく単純利回り(賃料等の年間合計金額÷ 販売価格(税込)×100%)で、公租公課や維持管理費等の必要経費は控除されていません。

    担当からのひとこと

    閲覧頂き、ありがとうございます。

    ニューシャトル「原市」駅まで徒歩1分の好立地に佇むアパートのご紹介です。
    満室想定年収は、5,514,000円・満室想定利回りは、6.90%です。


    総戸数8戸、間取は2DKです。駐車場(車種による)は、合計8台分スペースございます。
    駐輪場は、サイクルポート付き、ごみ置き場敷地内に設置ありです。

    資料請求、資金計画のご相談等、下記番号までお気軽にご連絡ください。

    住友不動産ステップ 大宮営業センター
    担当:福島 巨稀
    フリーコール:0120−664−006

    ・業務スーパー上尾原市店 徒歩6分(約470m)
    ・ファミリーマート上尾原市西店 徒歩6分(約450m)
    ・ドラッグセイムス上尾原市店 徒歩5分(約370m)
    ・原市小学校 徒歩9分(約670m)
    ・原市駅前公園 徒歩2分(約150m)

    物件詳細

    物件名 上尾市大字原市アパート
    物件番号 15274016
    所在地 埼玉県上尾市大字原市
    価格
    7,980万円
    交通 埼玉新都市交通原市」駅徒歩1 分
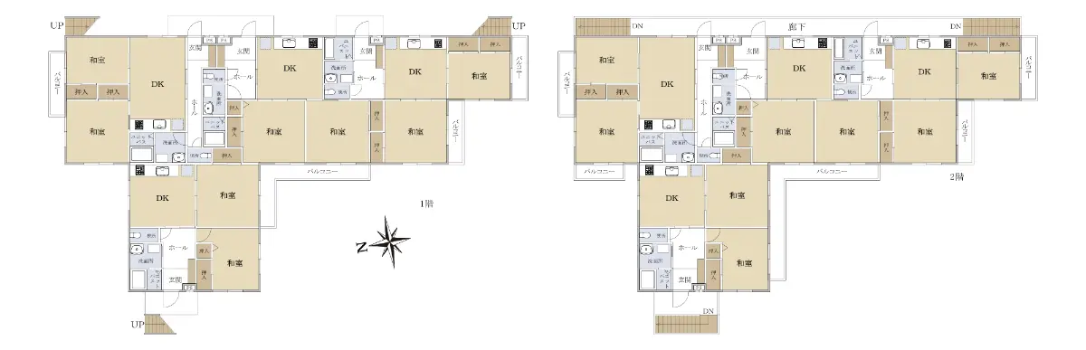
    間取り 2DK
    建物面積 317.98m2(約96.18坪)
    土地面積 610.58m2(約184.70坪)※公簿
    階数
    構造
    地上2階建て
    木造
    築年月 1992年08月
    地目
    地勢
    宅地/雑種地
    平坦
    総住戸数 8 戸
    各住戸の専有面積 不詳
    接道状況 三方道路・東12m(公道)接面44.8m/北西4m(公道)接面29.1m/南西14m(公道)接面35.3m
    建ぺい率 70%
    容積率 200%
    都市計画 市街化区域
    用途地域 第2種住居地域/無指定
    引渡時期 相談
    現況 賃貸中
    駐車場 有り/自走/屋根なし
    土地権利 所有権
    取引態様 仲介
    国土法 届出不要
    備考
    • ・角地による建蔽率緩和
    • ・敷地の一部366.92uが高圧線下補償の対象です。
    • ・市街化調整区域。宅地の造成および建物の建築はできません。ただし、都市計画法第43条第一項の建築許可を、(埼玉県知事等)より得れれば、建物の建築が可能です。
    • ・建築可能な建築物は第二種低層住居専用地域に建築可能な建物となり、建蔽率50%、容積率100%となります。また、上尾市の市街化調整区域に連続して20年以上住んでいる長期居住者の条件が求められます。
    • ・土地610.58u。ただし、約366.92uは高圧線下。

    この情報は2026年03月26日当社物件システムのデータにもとづくものであり、次回更新予定日は2026年04月09日です。