• オーナーチェンジ

本物件は投資向け物件です

想定利回り
6.85 %
年間想定賃料等
341万2,368
月額賃料等
28万4,364
現在の賃貸状況
一部賃貸中
オーナーチェンジ

投資用不動産

4,980万円

柏市北柏2丁目アパート

アパート

アパート

  • オーナーチェンジ
4,980万円

柏市北柏2丁目アパート

想定利回り
6.85 %

JR常磐線「北柏」駅徒歩7分 柏市北柏2丁目一棟アパート  

千葉県柏市北柏2丁目

建物面積190.18m2(約57.52坪)・土地面積220.02m2(約66.55坪)※公簿・1985年01月築

JR常磐線「北柏」駅徒歩7分 柏市北柏2丁目一棟アパート  

千葉県柏市北柏2丁目

建物面積190.18m2(約57.52坪)・土地面積220.02m2(約66.55坪)※公簿・1985年01月築

物件のポイント

本物件は投資向け物件です

想定利回り
6.85 %
想定利回り
6.85 %
年間想定賃料等
341万2,368
月額賃料等
28万4,364
現在の賃貸状況
一部賃貸中
オーナーチェンジ
投資用・事業用不動産について
  • 賃料等の収入や利回りは、将来にわたり、確実に得られることを保証するものではありません。
  • 賃料等は、賃貸中のものについては現在の賃料等で、新築および空室または一部空き有のものについては、周辺の賃料相場に基づき満室となった場合を想定して表示しています。
  • 利回りは、現況または満室想定時の賃料等の収入に基づく単純利回り(賃料等の年間合計金額÷ 販売価格(税込))で、公租公課や維持管理費等の必要経費は控除されていません。

物件の特徴

  • 容積率100%以上
    容積率100%以上
  • コンビニまで徒歩5分以内
    コンビニまで徒歩5分以内
  • 公園まで徒歩5分以内
    公園まで徒歩5分以内
  • 駐車場有
    駐車場有
  • 前面道路幅員6m以上
    前面道路幅員6m以上
  • 第一種住居地域
    第一種住居地域
  • セットバックなし・済み
    セットバックなし・済み
  • 土地面積50坪以上
    土地面積50坪以上
  • 前面道路公道
    前面道路公道
  • 容積率100%以上
    容積率100%以上
  • コンビニまで徒歩5分以内
    コンビニまで徒歩5分以内
  • 公園まで徒歩5分以内
    公園まで徒歩5分以内
  • 駐車場有
    駐車場有
  • 前面道路幅員6m以上
    前面道路幅員6m以上
  • 第一種住居地域
    第一種住居地域
  • セットバックなし・済み
    セットバックなし・済み
  • 土地面積50坪以上
    土地面積50坪以上
  • 前面道路公道
    前面道路公道
  • 駐車場有
  • セットバックなし・済み
  • 土地面積50坪以上
    リフォーム

    --

    立地・周辺環境

    容積率100%以上|コンビニまで徒歩5分以内|公園まで徒歩5分以内|前面道路幅員6m以上|第一種住居地域|前面道路公道

    セールスポイント

    JR常磐線「北柏」駅徒歩7分 

    オーナーチェンジ
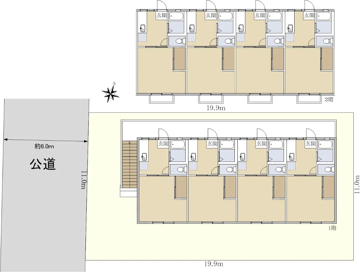
    1K8戸

    満室想定月額賃料   284,364円
    満室想定年額想定賃料 3,412,368円
    満室想定年利回り 6.85%
    8部屋中7部屋賃貸中 2025年11月23日現在

    閑静な住宅街

    西側公道6m幅員
    土地面積 220.02u(登記簿)
    建物面積 190.18u
    建ぺい率60% 容積率200%


    ライフインフォメーション

    ファミリーマート北柏駅前店 約350m
    くすりの福太郎北柏店 約550m
    北柏第3公園 約200m
    北柏駅前郵便局 約500m
    北柏駅前交番 約450m

    担当からのひとこと

    柏市北柏2丁目アパートをご覧いただき有難うございます。
    こちらの物件は
    JR常磐線「北柏」駅徒歩7分の好立地です。

    オーナーチェンジ
    1K8戸 
    8部屋中7部屋賃貸中です。


    住環境良好

    西側公道6m幅員
    建ぺい率60% 容積率200%

    ぜひ一度現地をご覧ください。
    ご質問等ございましたら担当まで何なりとご連絡ください。

    ・ファミリーマート北柏駅前店 徒歩5分(約350m)
    ・くすりの福太郎北柏店 徒歩7分(約550m)
    ・北柏第3公園 徒歩3分(約200m)
    ・北柏駅前郵便局 徒歩7分(約500m)
    ・北柏駅前交番 徒歩6分(約450m)

    物件詳細

    物件名 柏市北柏2丁目アパート
    物件番号 15284013
    所在地 千葉県柏市北柏2丁目
    価格
    4,980万円
    交通 常磐線(各駅)北柏」駅徒歩7 分
    建物面積 190.18m2(約57.52坪)
    土地面積 220.02m2(約66.55坪)※公簿
    階数
    構造
    地上2階建て
    軽量鉄骨
    築年月 1985年01月
    地目
    地勢
    宅地
    平坦
    総住戸数 8 戸
    各住戸の専有面積 最小22.68m2〜最大22.68m2
    接道状況 一方道路・西6m(公道)接面11m
    建ぺい率 60%
    容積率 200%
    都市計画 市街化区域
    用途地域 第1種住居地域
    引渡時期 相談
    現況 賃貸中
    駐車場 有り/月額:6,364円/台数1台/自走/屋根なし
    土地権利 所有権
    取引態様 仲介
    国土法 届出不要
    備考
    • ・カースペース車種による
    • ・K、居室帖数不明

    この情報は2026年01月03日当社物件システムのデータにもとづくものであり、次回更新予定日は2026年01月17日です。