• 新着
  • オーナーチェンジ

本物件は投資向け物件です

想定利回り
2.45 %
年間想定賃料等
1,764万4,680
月額賃料等
147万390
現在の賃貸状況
一部賃貸中
オーナーチェンジ

投資用不動産

7億2,000万円

港区白金6丁目一棟マンション

マンション(一棟)

マンション(一棟)

  • 新着
  • オーナーチェンジ
7億2,000万円

港区白金6丁目一棟マンション

想定利回り
2.45 %

オーナーチェンジ 表面利回り2.45%(2025年10月10日現在)

東京都港区白金6丁目

建物面積488.46m2(約147.75坪)・土地面積168.24m2(約50.89坪)※公簿・2017年06月築

オーナーチェンジ 表面利回り2.45%(2025年10月10日現在)

東京都港区白金6丁目

建物面積488.46m2(約147.75坪)・土地面積168.24m2(約50.89坪)※公簿・2017年06月築

物件のポイント

本物件は投資向け物件です

想定利回り
2.45 %
想定利回り
2.45 %
年間想定賃料等
1,764万4,680
月額賃料等
147万390
現在の賃貸状況
一部賃貸中
オーナーチェンジ
投資用・事業用不動産について
  • 賃料等の収入や利回りは、将来にわたり、確実に得られることを保証するものではありません。
  • 賃料等は、賃貸中のものについては現在の賃料等で、新築および空室または一部空き有のものについては、周辺の賃料相場に基づき満室となった場合を想定して表示しています。
  • 利回りは、現況または満室想定時の賃料等の収入に基づく単純利回り(賃料等の年間合計金額÷ 販売価格(税込)×100%)で、公租公課や維持管理費等の必要経費は控除されていません。

物件の特徴

  • 容積率100%以上
    容積率100%以上
  • 前面道路幅員6m以上
    前面道路幅員6m以上
  • 近隣商業地域
    近隣商業地域
  • セットバックなし・済み
    セットバックなし・済み
  • 土地面積50坪以上
    土地面積50坪以上
  • 前面道路公道
    前面道路公道
  • 容積率100%以上
    容積率100%以上
  • 前面道路幅員6m以上
    前面道路幅員6m以上
  • 近隣商業地域
    近隣商業地域
  • セットバックなし・済み
    セットバックなし・済み
  • 土地面積50坪以上
    土地面積50坪以上
  • 前面道路公道
    前面道路公道
  • セットバックなし・済み
  • 土地面積50坪以上
    リフォーム

    --

    立地・周辺環境

    容積率100%以上|前面道路幅員6m以上|近隣商業地域|防火・準防火|前面道路公道

    セールスポイント

    月額賃料:1470390円、年間賃料:17644680円(2025年10月10日現在)

    ◇土地面積168.24u(ただし、都市計画道路がかかっています。)
    ◇延床面積488.46u

    ◇2017年6月築
    ◇鉄骨造5階建
    ◇北側公道幅員約10.9m
    ◇間口約5.9m
    ◆都営三田線・東京メトロ南北線「白金高輪」駅徒歩12分

    担当からのひとこと

    「白金6丁目一棟マンション」のページをご覧いただき、誠にありがとうございます。

    本物件は都営三田線・東京メトロ南北線「白金高輪」駅徒歩12分に存します。
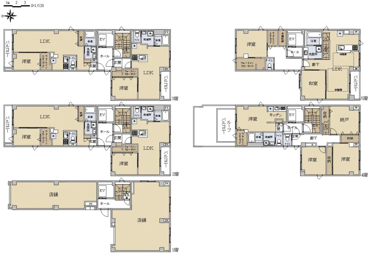
    現況、1階〜3階および4階の一部賃貸中、4階の一部と5階を所有者様自己使用中です。

    表面利回り2.45%、月額賃料:1470390円です。(2025年10月10日現在)

    現地内覧や物件に関するご質問は、物件担当までお気軽にお問い合わせください。

    --

    物件詳細

    物件名 港区白金6丁目一棟マンション
    物件番号 152O4004
    所在地 東京都港区白金6丁目
    価格
    7億2,000万円
    交通 都営三田線白金高輪」駅徒歩12 分
    東京メトロ南北線白金高輪」駅徒歩12 分
    建物面積 488.46m2(約147.75坪)
    土地面積 168.24m2(約50.89坪)※公簿
    階数
    構造
    地上5階建て
    鉄骨造
    築年月 2017年06月
    地目
    地勢
    宅地
    平坦
    総住戸数 8 戸
    各住戸の専有面積 不詳
    接道状況 一方道路・北10.9m(公道)接面5.9m
    建ぺい率 80%
    容積率 400%
    都市計画 市街化区域
    用途地域 近隣商業地域
    地域・地区 防火地域
    引渡時期 相談
    現況 賃貸中
    駐車場 無し
    土地権利 所有権
    取引態様 仲介
    国土法 届出不要
    備考
    • ・土地168.24u ただし、都市計画道路がかかっています。

    この情報は2025年10月17日当社物件システムのデータにもとづくものであり、次回更新予定日は2025年10月31日です。