• 新着
  • オーナーチェンジ

本物件は投資向け物件です

想定利回り
10.20 %
年間想定賃料等
897万6,000
月額賃料等
74万8,000
現在の賃貸状況
一部賃貸中
オーナーチェンジ

事業・投資用不動産

8,800万円

国分寺市西恋ヶ窪3丁目アパート

アパート

アパート

  • 新着
  • オーナーチェンジ
8,800万円

国分寺市西恋ヶ窪3丁目アパート

想定利回り
10.20 %

◆オーナーチェンジ物件 ◆JR中央線・武蔵野線「西国分寺」駅徒歩5分

東京都国分寺市西恋ヶ窪3丁目

建物面積596.41m2(約180.41坪)・土地面積170.00m2(約51.42坪)※公簿・1975年01月築

◆オーナーチェンジ物件 ◆JR中央線・武蔵野線「西国分寺」駅徒歩5分

東京都国分寺市西恋ヶ窪3丁目

建物面積596.41m2(約180.41坪)・土地面積170.00m2(約51.42坪)※公簿・1975年01月築

物件のポイント

本物件は投資向け物件です

想定利回り
10.20 %
想定利回り
10.20 %
年間想定賃料等
897万6,000
月額賃料等
74万8,000
現在の賃貸状況
一部賃貸中
オーナーチェンジ
投資用・事業用不動産について
  • 賃料等の収入や利回りは、将来にわたり、確実に得られることを保証するものではありません。
  • 賃料等は、賃貸中のものについては現在の賃料等で、新築および空室または一部空き有のものについては、周辺の賃料相場に基づき満室となった場合を想定して表示しています。
  • 利回りは、現況または満室想定時の賃料等の収入に基づく単純利回り(賃料等の年間合計金額÷ 販売価格(税込))で、公租公課や維持管理費等の必要経費は控除されていません。

物件の特徴

  • 南道路(南東・南西含む)
    南道路(南東・南西含む)
  • 低層住居専用地域
    低層住居専用地域
  • 駅徒歩5分以内
    駅徒歩5分以内
  • 土地面積50坪以上
    土地面積50坪以上
  • 前面道路公道
    前面道路公道
  • 南道路(南東・南西含む)
    南道路(南東・南西含む)
  • 低層住居専用地域
    低層住居専用地域
  • 駅徒歩5分以内
    駅徒歩5分以内
  • 土地面積50坪以上
    土地面積50坪以上
  • 前面道路公道
    前面道路公道
  • 土地面積50坪以上
    リフォーム

    --

    立地・周辺環境

    南道路(南東・南西含む)|低層住居専用地域|駅徒歩5分以内|前面道路公道

    セールスポイント

    ≪アクセス≫
    ◆JR中央線・武蔵野線「西国分寺」駅まで350m徒歩5分

    -オーナーチェンジ物件-

    ・全16戸のうち現在15戸賃貸中 (令和7年11月30日現在)


    満室想定月額賃料:748000円
    満室想定年額賃料:8976000円

    ■満室想定利回り 10.20%/年(令和7年11月30日現在)@賃料等の収入や利回りは、将来にわたり、確実に得られることを保証するものではありません。
    A賃料等は、賃貸中のものについては現在の賃料等で、新築および空室または一部空き有のものについては、周辺の賃料相場に基づき満室となった場合を想定して表示しています。
    B利回りは、現況または満室想定時の賃料等の収入に基づく単純利回り(賃料等の年間合計金額÷販売価格(税込) ×100%)で、公租公課や維持管理費等の必要経費は控除されていません。

    担当からのひとこと

    ご覧いただきありがとうございます。

    当物件は、
    JR中央線・武蔵野線「西国分寺」駅まで350m徒歩5分

    の立地にございます。

    物件に関して質問等ございましたら、
    お気軽に下記番号までご連絡ください。

    《フリーコール》0120-288-446 担当:宇佐美
    皆様からのお問い合わせを心よりお待ちしています。

    --

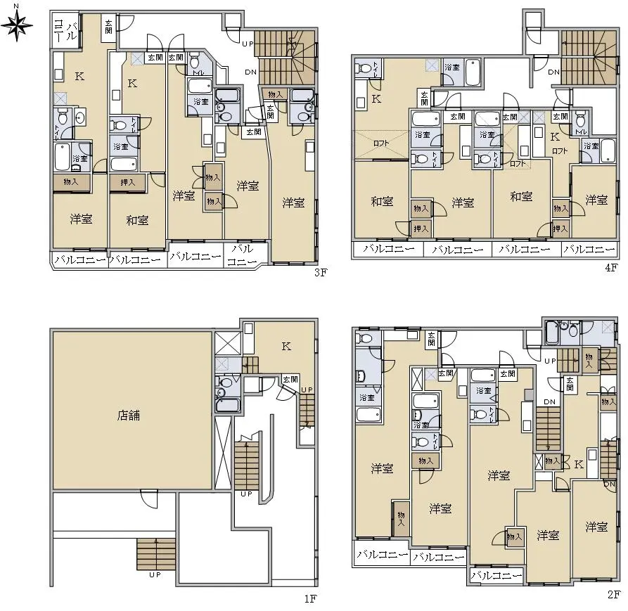
    物件詳細

    物件名 国分寺市西恋ヶ窪3丁目アパート
    物件番号 152P4029
    所在地 東京都国分寺市西恋ヶ窪3丁目
    価格
    8,800万円
    交通 中央線西国分寺」駅徒歩5 分
    武蔵野線西国分寺」駅徒歩5 分
    間取り 1K
    建物面積 596.41m2(約180.41坪)
    土地面積 170.00m2(約51.42坪)※公簿
    階数
    構造
    地上4階地下1階建て
    鉄筋コンクリート造
    築年月 1975年01月
    地目
    地勢
    山林
    平坦
    総住戸数 15 戸
    各住戸の専有面積 最小13.30m2〜最大50.00m2
    接道状況 一方道路・南4.8m(公道)接面12m
    建ぺい率 40%
    容積率 80%
    都市計画 市街化区域
    用途地域 第1種低層住居専用地域
    引渡時期 相談
    現況 賃貸中
    駐車場 無し
    土地権利 所有権
    取引態様 仲介
    国土法 届出不要
    備考
    • ・構造:鉄筋コンクリート、鉄骨鉄筋コンクリート、木造スレート葺

    この情報は2025年12月06日当社物件システムのデータにもとづくものであり、次回更新予定日は2025年12月20日です。