• おすすめ物件
  • オーナーチェンジ

本物件は投資向け物件です

想定利回り
2.65 %
年間想定賃料等
132万
月額賃料等
11万
現在の賃貸状況
全部賃貸中
オーナーチェンジ

投資用不動産

4,980万円

三鷹市井の頭5丁目戸建

一戸建て

一戸建て

  • オーナーチェンジ
4,980万円

三鷹市井の頭5丁目戸建

想定利回り
2.65 %

井の頭線「井の頭公園」駅まで徒歩10分、

東京都三鷹市井の頭5丁目

建物面積61.55m2(約18.61坪)・土地面積78.97m2(約23.88坪)※公簿/セットバック済み/他に私道負担:3.56m2あり・1996年02月築

井の頭線「井の頭公園」駅まで徒歩10分、

東京都三鷹市井の頭5丁目

建物面積61.55m2(約18.61坪)・土地面積78.97m2(約23.88坪)※公簿/セットバック済み/他に私道負担:3.56m2あり・1996年02月築

物件のポイント

本物件は投資向け物件です

想定利回り
2.65 %
想定利回り
2.65 %
年間想定賃料等
132万
月額賃料等
11万
現在の賃貸状況
全部賃貸中
オーナーチェンジ
投資用・事業用不動産について
  • 賃料等の収入や利回りは、将来にわたり、確実に得られることを保証するものではありません。
  • 賃料等は、賃貸中のものについては現在の賃料等で、新築および空室または一部空き有のものについては、周辺の賃料相場に基づき満室となった場合を想定して表示しています。
  • 利回りは、現況または満室想定時の賃料等の収入に基づく単純利回り(賃料等の年間合計金額÷ 販売価格(税込)×100%)で、公租公課や維持管理費等の必要経費は控除されていません。

物件の特徴

  • 低層住居専用地域
    低層住居専用地域
  • 小学校まで徒歩10分以内
    小学校まで徒歩10分以内
  • 駐車場有
    駐車場有
  • セットバックなし・済み
    セットバックなし・済み
  • 前面道路公道
    前面道路公道
  • 低層住居専用地域
    低層住居専用地域
  • 小学校まで徒歩10分以内
    小学校まで徒歩10分以内
  • 駐車場有
    駐車場有
  • セットバックなし・済み
    セットバックなし・済み
  • 前面道路公道
    前面道路公道
  • 駐車場有
  • セットバックなし・済み
    リフォーム

    --

    立地・周辺環境

    低層住居専用地域|小学校まで徒歩10分以内|前面道路公道

    セールスポイント

    【アクセス】
    井の頭線「井の頭公園」駅 徒歩10分

    【物件概要】

    ・土地面積:78.97u
    ・建物面積:61.55u
    ・平成8年2月築
    ・賃貸状況(2025年9月15日現在)
    現況年額賃料等1,320,000万円、現況利回り2.65%

    【周辺環境】
    ・西友三鷹牟礼店まで約1,260m 徒歩16分
    ・ローソン井の頭5丁目店まで約450m 徒歩6分
    ・三鷹市立第五小学校まで約470m 徒歩6分
    ・三鷹市立第三中学校まで約770m 徒歩10分
    ・牟礼の里公園まで約740m 徒歩10分

    担当からのひとこと

    この度は「三鷹市井の頭5丁目戸建」のページをご覧いただきありがとうございます。

    当物件は、第一種低層住居専用地域の住宅地にございます。
    京王電鉄井の頭線「井の頭公園」駅まで徒歩10分の立地にあります。


    現在利回り2.65%のオーナーチェンジ物件です。

    ご質問、ご見学予約等ございましたら、お気軽にお問い合わせください。
    ご連絡をお待ちしております。

    ・西友三鷹牟礼店 徒歩16分(約1260m)
    ・ローソン井の頭5丁目店 徒歩6分(約450m)
    ・三鷹市立第五小学校 徒歩6分(約470m)
    ・三鷹市立第三中学校 徒歩10分(約770m)
    ・牟礼の里公園 徒歩10分(約740m)

    物件詳細

    物件名 三鷹市井の頭5丁目戸建
    物件番号 15332055
    所在地 東京都三鷹市井の頭5丁目
    価格
    4,980万円
    交通 京王井の頭線井の頭公園」駅徒歩10 分
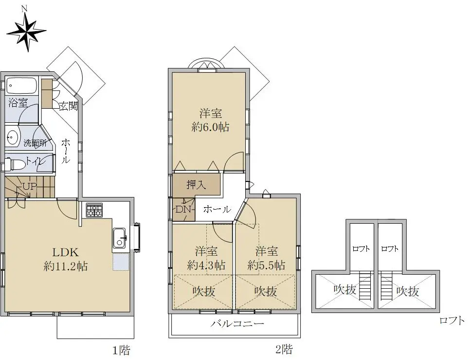
    間取り 3LDK
    建物面積 61.55m2(約18.61坪)
    土地面積 78.97m2(約23.88坪)※公簿/セットバック済み/他に私道負担:3.56m2あり
    階数
    構造
    地上2階建て
    木造
    築年月 1996年02月
    地目
    地勢
    宅地
    平坦
    接道状況 一方道路・北3.3m(公道)接面5.9m
    建ぺい率 40%
    容積率 80%
    都市計画 市街化区域
    用途地域 第1種低層住居専用地域
    引渡時期 相談
    現況 賃貸中
    駐車場 有り/台数1台/自走/屋根なし
    土地権利 所有権
    取引態様 仲介
    国土法 届出不要
    備考
    • ・カースペース1台分(車種による)

    この情報は2025年10月20日当社物件システムのデータにもとづくものであり、次回更新予定日は2025年11月03日です。