• オーナーチェンジ

本物件は投資向け物件です

想定利回り
4.43 %
年間想定賃料等
420万
月額賃料等
35万
現在の賃貸状況
全部賃貸中
オーナーチェンジ

投資用不動産

9,480万円

調布市深大寺北町6丁目戸建

一戸建て

一戸建て

  • オーナーチェンジ
9,480万円

調布市深大寺北町6丁目戸建

想定利回り
4.43 %

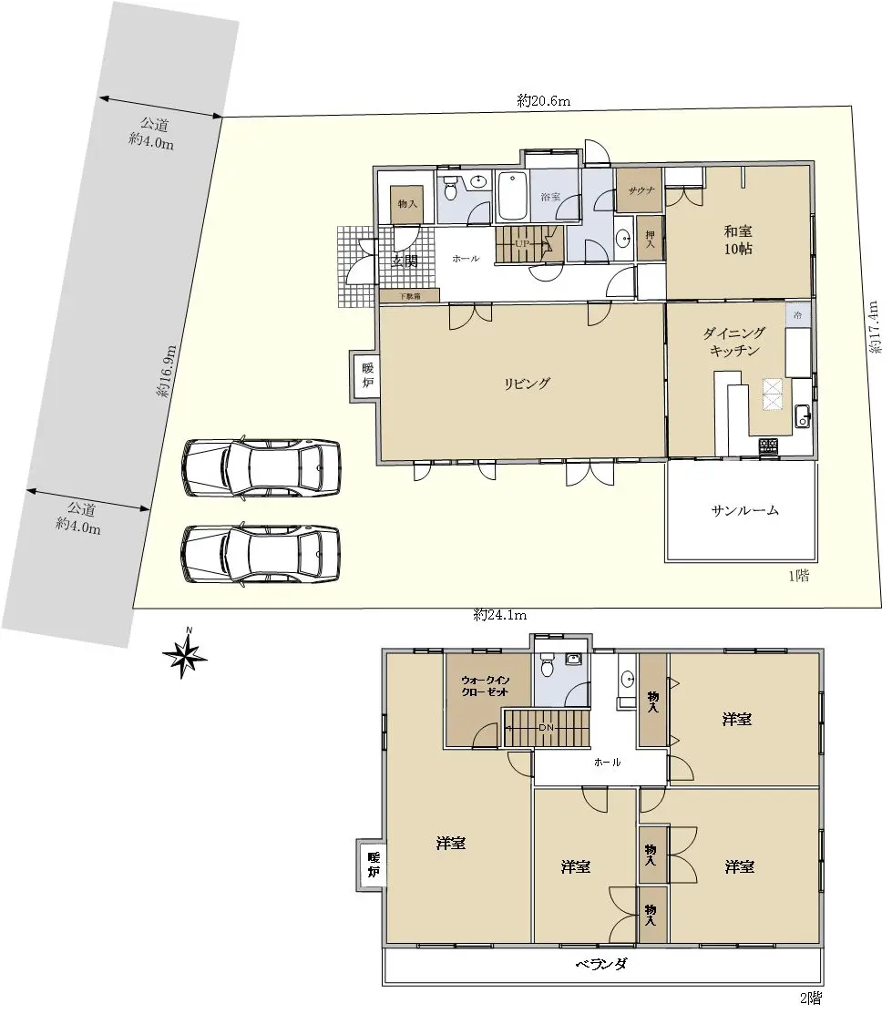
■土地面積381.37u ■建物面積243u ■5LDK ■リースバック物件

東京都調布市深大寺北町6丁目

  • 京王線調布」駅バス21 分「バス停「山野」」バス停徒歩7 分
  • 中央線武蔵境」駅バス20 分「バス停「吉野南」」バス停徒歩9 分
建物面積243.00m2(約73.50坪)・土地面積381.37m2(約115.36坪)※公簿・1988年01月築

■土地面積381.37u ■建物面積243u ■5LDK ■リースバック物件

東京都調布市深大寺北町6丁目

  • 京王線調布」駅バス21 分「バス停「山野」」バス停徒歩7 分
  • 中央線武蔵境」駅バス20 分「バス停「吉野南」」バス停徒歩9 分
建物面積243.00m2(約73.50坪)・土地面積381.37m2(約115.36坪)※公簿・1988年01月築

物件のポイント

本物件は投資向け物件です

想定利回り
4.43 %
想定利回り
4.43 %
年間想定賃料等
420万
月額賃料等
35万
現在の賃貸状況
全部賃貸中
オーナーチェンジ
投資用・事業用不動産について
  • 賃料等の収入や利回りは、将来にわたり、確実に得られることを保証するものではありません。
  • 賃料等は、賃貸中のものについては現在の賃料等で、新築および空室または一部空き有のものについては、周辺の賃料相場に基づき満室となった場合を想定して表示しています。
  • 利回りは、現況または満室想定時の賃料等の収入に基づく単純利回り(賃料等の年間合計金額÷ 販売価格(税込))で、公租公課や維持管理費等の必要経費は控除されていません。

物件の特徴

  • 低層住居専用地域
    低層住居専用地域
  • 駐車場有
    駐車場有
  • 土地面積100坪以上
    土地面積100坪以上
  • 前面道路公道
    前面道路公道
  • 建物面積150u以上
    建物面積150u以上
  • 低層住居専用地域
    低層住居専用地域
  • 駐車場有
    駐車場有
  • 土地面積100坪以上
    土地面積100坪以上
  • 前面道路公道
    前面道路公道
  • 建物面積150u以上
    建物面積150u以上
  • 駐車場有
  • 土地面積100坪以上
  • 建物面積150u以上
    リフォーム

    --

    立地・周辺環境

    低層住居専用地域|前面道路公道

    セールスポイント

    ◆物件概要
    ・土地面積:381.37u (約115.36坪)
    ・建築面積:121.5u (約36.75坪)
    ・延床面積:243u (約73.5坪)

    ・間取り:5LDK
    ・築年数:1988年1月

    ◆アクセス
    〜2沿線利用可能〜
    ・京王線「調布」駅までバス21分 バス停「山野」まで徒歩7分
    ・JR中央線「武蔵境」駅 までバス20分 バス停「吉野南」まで徒歩9分
    ◆ライフインフォメーション
    ・調布市立北ノ台小学校まで約1130m 徒歩15分
    ・調布市立神代中学校まで約2900m 徒歩37分
    ・グルメシティ 神代店まで約620m 徒歩8分
    ・コーナン三鷹店まで約480m 徒歩6分
    ・キッチンコート 野崎店まで約870m 徒歩11分
    ・ドン・キホーテ 東八三鷹店まで約920m 徒歩12分

    ◆本物件はリースバック物件となります。
    ・満室想定賃料:月額35万円、年額420万円
    ・想定利回り:4.43%
    (2025年12月22日現在)

    担当からのひとこと

    この度は『調布市深大寺北町6丁目戸建』のページをご覧頂き誠に有難うございます。

    内見希望等ございましたら、どうぞお気軽にお問合せ下さい。
    物件のご検討については、写真や図面だけでなく、

    是非現地をご覧になることをお勧め致します。
    現地をご覧頂くことで、周辺環境や物件の状態が
    明確にご理解頂けるとともに、案内時にお供する
    担当者により、プロの目から見た長所・短所を詳しく
    ご説明差し上げることもできます。
    こちらの物件にご興味をお持ちのお客様は是非とも
    お問い合せ下さい。ご満足のいくサービスを提供
    させて頂きます。
    心よりお待ち致しております。

    お問い合せはフリーコールでどうぞ!!
    (携帯電話からも無料です)
    お客様専用フリーコール
    0120−062−532   
        

    ・調布市立北ノ台小学校 徒歩15分(約1130m)
    ・グルメシティ神代店 徒歩8分(約620m)
    ・コーナン三鷹店 徒歩6分(約480m)
    ・セブンイレブン深大寺店 徒歩8分(約590m)
    ・調布市立神代中学校 徒歩37分(約2900m)

    物件詳細

    物件名 調布市深大寺北町6丁目戸建
    物件番号 15392046
    所在地 東京都調布市深大寺北町6丁目
    価格
    9,480万円
    交通 京王線調布」駅バス21 分「バス停「山野」」バス停徒歩7 分
    中央線武蔵境」駅バス20 分「バス停「吉野南」」バス停徒歩9 分
    間取り 5LDK
    建物面積 243.00m2(約73.50坪)
    土地面積 381.37m2(約115.36坪)※公簿
    階数
    構造
    地上2階建て
    木造
    築年月 1988年01月
    地目
    地勢
    宅地
    平坦
    接道状況 一方道路・西4m(公道)接面16.9m
    建ぺい率 40%
    容積率 80%
    都市計画 市街化区域
    用途地域 第1種低層住居専用地域
    引渡時期 相談
    現況 居住中
    駐車場 有り/自走/屋根あり
    土地権利 所有権
    取引態様 仲介
    国土法 届出不要
    備考
    • ・駐車場:車種による
    • ・バス調査日:2025年12月20日
    • ・対象不動産を、リースバック(引渡しと同時に買主を貸主、売主を借主として賃貸借)していただきます。

    この情報は2026年04月03日当社物件システムのデータにもとづくものであり、次回更新予定日は2026年04月17日です。