• 新着
  • オーナーチェンジ

本物件は投資向け物件です

想定利回り
7.66 %
年間想定賃料等
1,364万4,000
月額賃料等
113万7,000
現在の賃貸状況
一部賃貸中
オーナーチェンジ

投資用不動産

1億7,800万円

荒川区町屋3丁目一棟マンション

マンション(一棟)

マンション(一棟)

  • 新着
  • オーナーチェンジ
1億7,800万円

荒川区町屋3丁目一棟マンション

想定利回り
7.66 %

■商業地域×近隣商業地域 ■南×西 角地

東京都荒川区町屋3丁目

建物面積519.65m2(約157.19坪)・土地面積166.54m2(約50.37坪)※公簿・1993年08月築

■商業地域×近隣商業地域 ■南×西 角地

東京都荒川区町屋3丁目

建物面積519.65m2(約157.19坪)・土地面積166.54m2(約50.37坪)※公簿・1993年08月築

物件のポイント

本物件は投資向け物件です

想定利回り
7.66 %
想定利回り
7.66 %
年間想定賃料等
1,364万4,000
月額賃料等
113万7,000
現在の賃貸状況
一部賃貸中
オーナーチェンジ
投資用・事業用不動産について
  • 賃料等の収入や利回りは、将来にわたり、確実に得られることを保証するものではありません。
  • 賃料等は、賃貸中のものについては現在の賃料等で、新築および空室または一部空き有のものについては、周辺の賃料相場に基づき満室となった場合を想定して表示しています。
  • 利回りは、現況または満室想定時の賃料等の収入に基づく単純利回り(賃料等の年間合計金額÷ 販売価格(税込))で、公租公課や維持管理費等の必要経費は控除されていません。

物件の特徴

  • 角地
    角地
  • 南道路(南東・南西含む)
    南道路(南東・南西含む)
  • 容積率100%以上
    容積率100%以上
  • スーパーまで徒歩10分以内
    スーパーまで徒歩10分以内
  • コンビニまで徒歩5分以内
    コンビニまで徒歩5分以内
  • 前面道路幅員6m以上
    前面道路幅員6m以上
  • 近隣商業地域
    近隣商業地域
  • 商業地域
    商業地域
  • セットバックなし・済み
    セットバックなし・済み
  • 土地面積50坪以上
    土地面積50坪以上
  • 前面道路公道
    前面道路公道
  • 角地
    角地
  • 南道路(南東・南西含む)
    南道路(南東・南西含む)
  • 容積率100%以上
    容積率100%以上
  • スーパーまで徒歩10分以内
    スーパーまで徒歩10分以内
  • コンビニまで徒歩5分以内
    コンビニまで徒歩5分以内
  • 前面道路幅員6m以上
    前面道路幅員6m以上
  • 近隣商業地域
    近隣商業地域
  • 商業地域
    商業地域
  • セットバックなし・済み
    セットバックなし・済み
  • 土地面積50坪以上
    土地面積50坪以上
  • 前面道路公道
    前面道路公道
  • セットバックなし・済み
  • 土地面積50坪以上
    リフォーム

    --

    立地・周辺環境

    角地|南道路(南東・南西含む)|容積率100%以上|スーパーまで徒歩10分以内|コンビニまで徒歩5分以内|前面道路幅員6m以上|近隣商業地域|商業地域|防火・準防火|前面道路公道

    セールスポイント

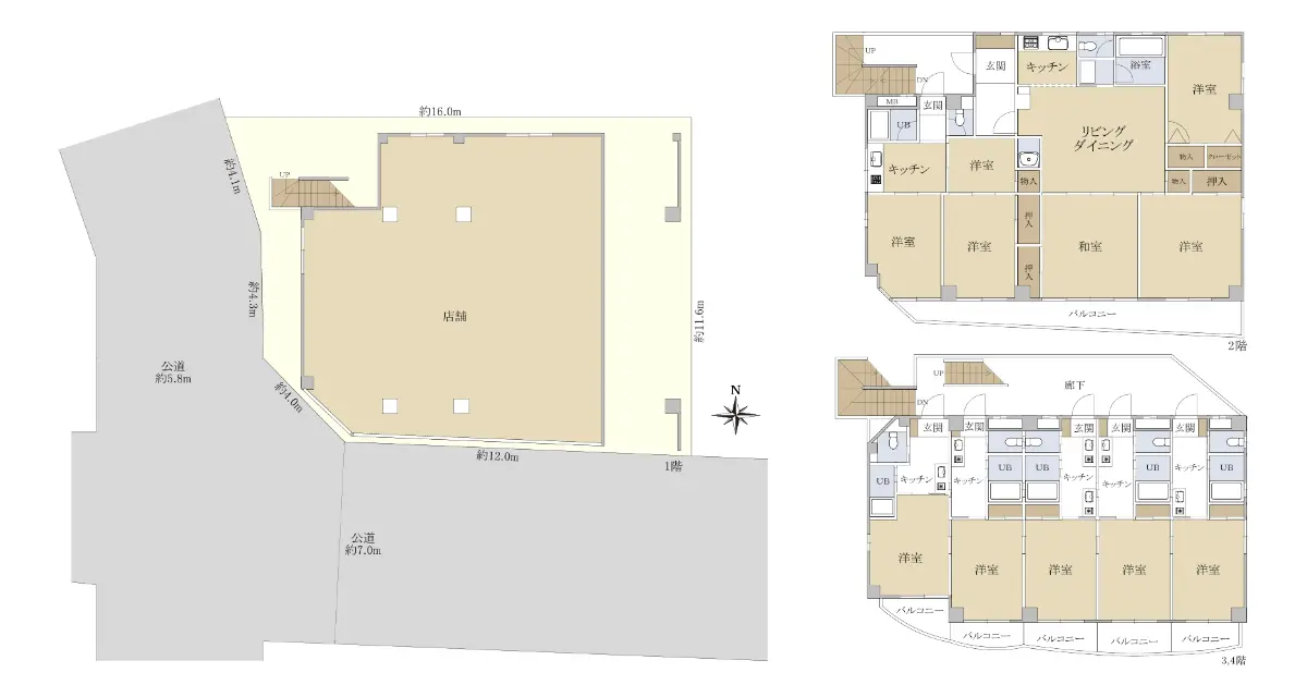
    ■土地面積:166.54u

    ■建物面積:519.65u
     1階:144.26u

     2階:126.43u
     3階:124.48u
     4階:124.48u

    ■12住戸+店舗のうち、9住戸賃貸中
     1階店舗:空
     2階3K:空
     2階3LDK:空
     3階1K×5住戸:5住戸賃貸中
     4階1K×5住戸:4住戸賃貸中

    ■想定月額賃料:1137000円(税込)
     想定年額賃料:13644000円(税込)
     満室想定利回り:7.66%
     (2026年1月14日現在)

    担当からのひとこと

    資料請求や内見希望など、お気軽にお問い合わせください。

    ・ココスナカムラ町屋店 徒歩1分(約40m)
    ・セブンイレブン荒川尾竹橋店 徒歩1分(約30m)

    物件詳細

    物件名 荒川区町屋3丁目一棟マンション
    物件番号 153T4056
    所在地 東京都荒川区町屋3丁目
    価格
    1億7,800万円
    交通 東京メトロ千代田線町屋」駅徒歩10 分
    京成本線町屋」駅徒歩11 分
    都電荒川線町屋駅前」駅徒歩10 分
    建物面積 519.65m2(約157.19坪)
    土地面積 166.54m2(約50.37坪)※公簿
    階数
    構造
    地上4階建て
    鉄骨造
    築年月 1993年08月
    地目
    地勢
    宅地
    平坦
    総住戸数 12 戸
    各住戸の専有面積 不詳
    接道状況 角地・南7m(公道)接面12m/西5.8m(公道)接面12.4m
    建ぺい率 90%
    容積率 300%
    都市計画 市街化区域
    用途地域 近隣商業地域/商業地域
    地域・地区 準防火地域/特別工業地区、第三種高度地区、町屋二・三・四丁目地区地区計画
    引渡時期 相談
    現況 賃貸中
    駐車場 無し
    土地権利 所有権
    取引態様 仲介
    国土法 届出不要
    備考
    • ・帖数・専有面積:不明
    • ・間取:店舗+(1K×10)+3LDK+3K
    • ・商業地域部分の建ぺい率は90%(角地緩和による)、容積率は400%、防火地域、最低限高度地区、町屋二・三・四丁目地区地区計画となります。

    この情報は2026年01月15日当社物件システムのデータにもとづくものであり、次回更新予定日は2026年01月29日です。