• 新着
  • オーナーチェンジ

本物件は投資向け物件です

想定利回り
6.01 %
年間想定賃料等
721万6,368
月額賃料等
60万1,364
現在の賃貸状況
一部賃貸中
オーナーチェンジ

投資用不動産

1億2,000万円

小田原市曽比一棟マンション

マンション(一棟)

マンション(一棟)

  • 新着
  • オーナーチェンジ
1億2,000万円

小田原市曽比一棟マンション

想定利回り
6.01 %

☆栢山駅まで徒歩5分 ☆鉄骨造3階建・2014年4月築 ☆オーナーチェンジ

神奈川県小田原市曽比

建物面積508.98m2(約153.96坪)・土地面積538.66m2(約162.94坪)※公簿・2014年04月築

☆栢山駅まで徒歩5分 ☆鉄骨造3階建・2014年4月築 ☆オーナーチェンジ

神奈川県小田原市曽比

建物面積508.98m2(約153.96坪)・土地面積538.66m2(約162.94坪)※公簿・2014年04月築

物件のポイント

本物件は投資向け物件です

想定利回り
6.01 %
想定利回り
6.01 %
年間想定賃料等
721万6,368
月額賃料等
60万1,364
現在の賃貸状況
一部賃貸中
オーナーチェンジ
投資用・事業用不動産について
  • 賃料等の収入や利回りは、将来にわたり、確実に得られることを保証するものではありません。
  • 賃料等は、賃貸中のものについては現在の賃料等で、新築および空室または一部空き有のものについては、周辺の賃料相場に基づき満室となった場合を想定して表示しています。
  • 利回りは、現況または満室想定時の賃料等の収入に基づく単純利回り(賃料等の年間合計金額÷ 販売価格(税込))で、公租公課や維持管理費等の必要経費は控除されていません。

物件の特徴

  • 容積率100%以上
    容積率100%以上
  • 駅徒歩5分以内
    駅徒歩5分以内
  • スーパーまで徒歩10分以内
    スーパーまで徒歩10分以内
  • 駐車場有
    駐車場有
  • 第一種住居地域
    第一種住居地域
  • 土地面積100坪以上
    土地面積100坪以上
  • 容積率100%以上
    容積率100%以上
  • 駅徒歩5分以内
    駅徒歩5分以内
  • スーパーまで徒歩10分以内
    スーパーまで徒歩10分以内
  • 駐車場有
    駐車場有
  • 第一種住居地域
    第一種住居地域
  • 土地面積100坪以上
    土地面積100坪以上
  • 駐車場有
  • 土地面積100坪以上
  • 再建築不可
    リフォーム

    --

    立地・周辺環境

    容積率100%以上|駅徒歩5分以内|スーパーまで徒歩10分以内|第一種住居地域

    セールスポイント

    ≪立地≫
    ◆栢山駅まで徒歩5分のため通勤通学の利便性良好
     ・徒歩圏内にコンビニ、スーパー、ドラッグストアあり

    ≪建物≫
    ◆鉄骨造3階建
     ・2014年4月築
    ◆建物面積 508.52u

    ☆オーナーチェンジ
    満室想定賃料 年額7,216,368円
    満室想定利回り 6.01%
    現況:居宅部分6室中5室賃貸中(1室は売主様使用中)・駐車場6台中3台賃貸中(令和8年3月22日時点)

    〜LIFE INFORMATION〜
    セブンイレブン小田原栢山駅前店・・・約410m
    Pantry 栢山店・・・約550m
    ウエルシア小田原栢山店・・・約700m
    菱木医院・・・約340m

    担当からのひとこと

    この度は『小田原市曽比一棟売りマンション』のページをご覧いただき、誠に有難うございます。

    本物件は、忙しい朝、遅い帰宅時にも嬉しい駅近物件(栢山駅徒歩5分)
    白い外壁ですっきりとした外観の建物です。周囲に高い建物など無く、陽当り良好!

    ぜひ一度、現地をご覧ください。


    資料請求・現地の内見希望等、お気軽にインターネット等からお問合せください。
    お客様のご都合に合わせて現地をご案内させていただきます。
    皆様からのお問い合わせ心からお待ちしております。

    ・Pantry栢山店 徒歩7分(約550m)

    物件詳細

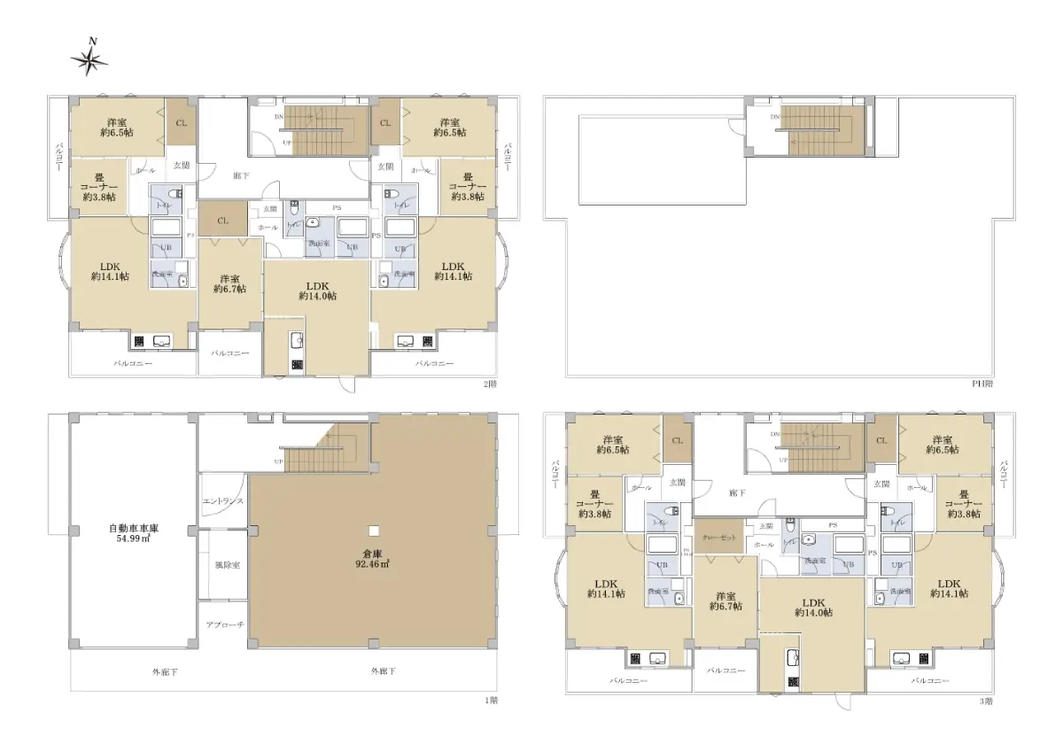
    物件名 小田原市曽比一棟マンション
    物件番号 15634010
    所在地 神奈川県小田原市曽比
    価格
    1億2,000万円
    交通 小田急小田原線栢山」駅徒歩5 分
    建物面積 508.98m2(約153.96坪)
    土地面積 538.66m2(約162.94坪)※公簿
    階数
    構造
    地上3階建て
    鉄骨造
    築年月 2014年04月
    地目
    地勢
    宅地
    総住戸数 6 戸
    各住戸の専有面積 最小49.27m2〜最大57.36m2
    建ぺい率 60%
    容積率 200%
    都市計画 市街化区域
    用途地域 第1種住居地域
    地域・地区 再建築不可
    引渡時期 相談
    現況 賃貸中
    駐車場 有り
    土地権利 所有権
    取引態様 仲介
    国土法 届出不要
    備考
    • ・(1LDK×6)+(92.46u×1)
    • ・駐車場/カースペース・車庫(車種による)
    • ・再建築不可。ただし、水路の占用許可を得、かつ、特定行政庁の許可を得ることができれば再建築は可能です。

    この情報は2026年03月22日当社物件システムのデータにもとづくものであり、次回更新予定日は2026年04月05日です。