• 新着
  • オーナーチェンジ

本物件は投資向け物件です

想定利回り
6.72 %
年間想定賃料等
520万8,000
月額賃料等
43万4,000
現在の賃貸状況
全部賃貸中
オーナーチェンジ

投資用不動産

7,740万円

日野市日野本町3丁目一棟アパート

アパート

アパート

  • 新着
  • オーナーチェンジ
7,740万円

日野市日野本町3丁目一棟アパート

想定利回り
6.72 %

JR中央本線「日野」駅徒歩4分。全7戸満室賃貸中(2026年4月6日現在)

東京都日野市日野本町3丁目

建物面積140.98m2(約42.64坪)・土地面積160.62m2(約48.58坪)※公簿・2018年04月築

JR中央本線「日野」駅徒歩4分。全7戸満室賃貸中(2026年4月6日現在)

東京都日野市日野本町3丁目

建物面積140.98m2(約42.64坪)・土地面積160.62m2(約48.58坪)※公簿・2018年04月築

物件のポイント

本物件は投資向け物件です

想定利回り
6.72 %
想定利回り
6.72 %
年間想定賃料等
520万8,000
月額賃料等
43万4,000
現在の賃貸状況
全部賃貸中
オーナーチェンジ
投資用・事業用不動産について
  • 賃料等の収入や利回りは、将来にわたり、確実に得られることを保証するものではありません。
  • 賃料等は、賃貸中のものについては現在の賃料等で、新築および空室または一部空き有のものについては、周辺の賃料相場に基づき満室となった場合を想定して表示しています。
  • 利回りは、現況または満室想定時の賃料等の収入に基づく単純利回り(賃料等の年間合計金額÷ 販売価格(税込))で、公租公課や維持管理費等の必要経費は控除されていません。

物件の特徴

  • 容積率100%以上
    容積率100%以上
  • 駅徒歩5分以内
    駅徒歩5分以内
  • スーパーまで徒歩10分以内
    スーパーまで徒歩10分以内
  • コンビニまで徒歩5分以内
    コンビニまで徒歩5分以内
  • 第一種中高層住居専用地域
    第一種中高層住居専用地域
  • セットバックなし・済み
    セットバックなし・済み
  • 土地面積30坪以上
    土地面積30坪以上
  • 前面道路公道
    前面道路公道
  • 容積率100%以上
    容積率100%以上
  • 駅徒歩5分以内
    駅徒歩5分以内
  • スーパーまで徒歩10分以内
    スーパーまで徒歩10分以内
  • コンビニまで徒歩5分以内
    コンビニまで徒歩5分以内
  • 第一種中高層住居専用地域
    第一種中高層住居専用地域
  • セットバックなし・済み
    セットバックなし・済み
  • 土地面積30坪以上
    土地面積30坪以上
  • 前面道路公道
    前面道路公道
  • セットバックなし・済み
  • 土地面積30坪以上
    リフォーム

    --

    立地・周辺環境

    容積率100%以上|駅徒歩5分以内|スーパーまで徒歩10分以内|コンビニまで徒歩5分以内|第一種中高層住居専用地域|防火・準防火|前面道路公道

    セールスポイント

    ≪オーナーチェンジ物件≫
    ■全7戸・ 満室賃貸中(2026年4月6日現在)
     ◆現況賃料:434,000円/月(2026年4月6日 現在)
     ◆利回り:6.72%/年


    ≪アクセス≫
    ・JR中央本線「日野」駅 徒歩4分

    ≪物件概要≫
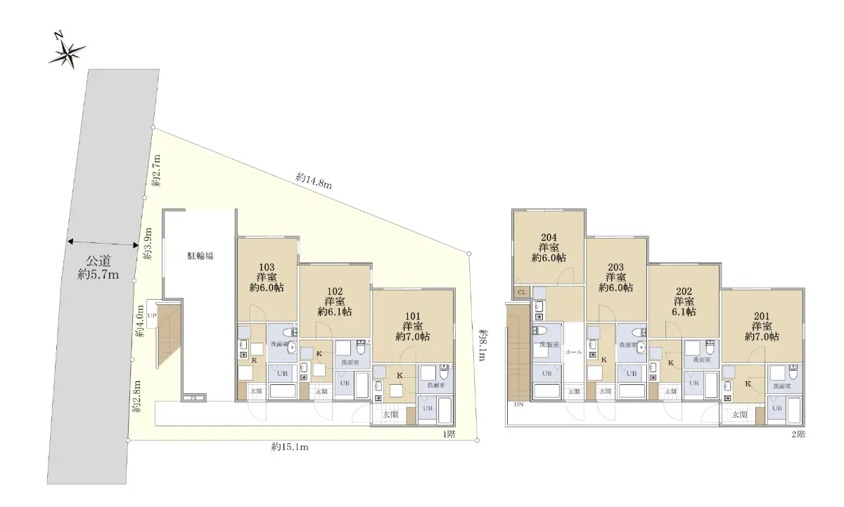
    ・木造スレートぶき2階建
    ・接道:北西側公道 幅員約5.7m
    ・第一種中高層住居専用地域
    ・建ぺい率:60%
    ・容積率:200%
    ・2018年4月築
    ・総戸数:7戸

    ≪周辺環境≫
    ・イオンフードスタイル日野駅前店 約270m
    ・セブンイレブン日野駅前店 約270m
    ・日野駅前病院 約290m

    担当からのひとこと

    この度は【日野市日野本町3丁目一棟アパート】のページをご覧いただきまして誠にありがとうございます。

    本物件は、JR中央本線「日野」駅まで徒歩4分の立地です。
    ◆全7戸満室賃貸中(2026年4月6日現在)


    本物件に関しまして、ご相談等ございましたら担当【林】までお気軽にお問い合わせください。

    ・イオンフードスタイル日野駅前店 徒歩4分(約270m)
    ・セブンイレブン日野駅前店 徒歩4分(約270m)
    ・日野駅前病院 徒歩4分(約290m)

    物件詳細

    物件名 日野市日野本町3丁目一棟アパート
    物件番号 16224003
    所在地 東京都日野市日野本町3丁目
    価格
    7,740万円
    交通 中央線日野」駅徒歩4 分
    建物面積 140.98m2(約42.64坪)
    土地面積 160.62m2(約48.58坪)※公簿
    階数
    構造
    地上2階建て
    木造
    築年月 2018年04月
    地目
    地勢
    宅地
    平坦
    総住戸数 7 戸
    各住戸の専有面積 最小18.69m2〜最大22.20m2
    接道状況 一方道路・北西5.7m(公道)接面13.6m
    建ぺい率 60%
    容積率 200%
    都市計画 市街化区域
    用途地域 第1種中高層住居専用地域
    地域・地区 準防火地域
    施工会社 株式会社則武地所
    引渡時期 相談
    現況 賃貸中
    駐車場 無し
    土地権利 所有権
    取引態様 仲介
    国土法 届出不要

    この情報は2026年04月12日当社物件システムのデータにもとづくものであり、次回更新予定日は2026年04月26日です。