• 新着
  • オーナーチェンジ

本物件は投資向け物件です

想定利回り
6.58 %
年間想定賃料等
393万6,000
月額賃料等
32万8,000
現在の賃貸状況
一部賃貸中
オーナーチェンジ

投資用不動産

5,980万円

豊中市蛍池南町2丁目アパート

アパート

アパート

  • 新着
  • オーナーチェンジ
5,980万円

豊中市蛍池南町2丁目アパート

想定利回り
6.58 %

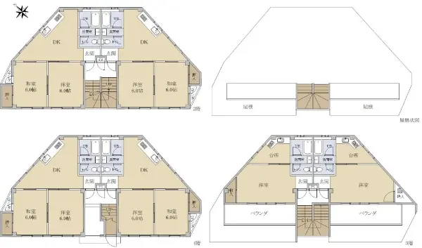
◆2DK×4戸 1K×2戸の一棟アパート◆3階建て◆1988年1月築

大阪府豊中市螢池南町2丁目

建物面積235.91m2(約71.36坪)・土地面積185.12m2(約55.99坪)※公簿/セットバック:14.14m2含む・1988年01月築

◆2DK×4戸 1K×2戸の一棟アパート◆3階建て◆1988年1月築

大阪府豊中市螢池南町2丁目

建物面積235.91m2(約71.36坪)・土地面積185.12m2(約55.99坪)※公簿/セットバック:14.14m2含む・1988年01月築

物件のポイント

本物件は投資向け物件です

想定利回り
6.58 %
想定利回り
6.58 %
年間想定賃料等
393万6,000
月額賃料等
32万8,000
現在の賃貸状況
一部賃貸中
オーナーチェンジ
投資用・事業用不動産について
  • 賃料等の収入や利回りは、将来にわたり、確実に得られることを保証するものではありません。
  • 賃料等は、賃貸中のものについては現在の賃料等で、新築および空室または一部空き有のものについては、周辺の賃料相場に基づき満室となった場合を想定して表示しています。
  • 利回りは、現況または満室想定時の賃料等の収入に基づく単純利回り(賃料等の年間合計金額÷ 販売価格(税込))で、公租公課や維持管理費等の必要経費は控除されていません。

物件の特徴

  • 角地
    角地
  • 容積率100%以上
    容積率100%以上
  • 第一種中高層住居専用地域
    第一種中高層住居専用地域
  • 土地面積50坪以上
    土地面積50坪以上
  • 前面道路公道
    前面道路公道
  • 角地
    角地
  • 容積率100%以上
    容積率100%以上
  • 第一種中高層住居専用地域
    第一種中高層住居専用地域
  • 土地面積50坪以上
    土地面積50坪以上
  • 前面道路公道
    前面道路公道
  • 土地面積50坪以上
    リフォーム

    --

    立地・周辺環境

    角地|容積率100%以上|第一種中高層住居専用地域|前面道路公道

    セールスポイント

    ■物件概要
    *間取り:2DK×4戸 1K×2戸
    *全5/6戸稼働中(2026/1/11現在)
    ※1Kサイズが1戸が空きとなっております。


    ■現況賃貸中のオーナーチェンジ物件
    *満室時想定賃料(年額):3,936,000円
    *満室時利回り:6.58%
    *現況賃料(年額):3,276,000円
    *現況利回り:5.47%

    ■周辺環境
    ・セブンイレブン豊中蛍池中町店まで約414m
    ・セブンイレブン豊中千里園一丁目店まで約466m
    ・豊中箕輪郵便局店まで約459m
    ・蛍池小学校まで約386m
    ・第十八中学校まで約914m

    担当からのひとこと

    本物件は豊中市蛍池南町2丁目に位置する一棟アパートです。
    間取りは2DK×4戸、1K×2戸となっております。
    現在賃貸中のオーナーチェンジ物件で、全5/6戸が稼働中です(2026/1/11現在)。
    1988年1月築の鉄骨造3階建てとなります。


    周辺にはセブンイレブン豊中蛍池中町店(約414m)、セブンイレブン豊中千里園一丁目店(約466m)、などの買い物施設が複数ございます。
    また、豊中箕輪郵便局(約459m)も公共施設徒歩圏内にございます。
    交通アクセスの面は、阪急宝塚線「蛍池」駅まで徒歩7分ですので生活の利便性は良好です。

    物件の詳細につきましては、担当までお気軽にお問い合わせください!

    ・セブンイレブン豊中蛍池中町店 徒歩6分(約414m)
    ・セブンイレブン豊中千里園一丁目店 徒歩6分(約466m)
    ・豊中箕輪郵便局 徒歩6分(約459m)
    ・蛍池小学校 徒歩5分(約386m)
    ・第十八中学校 徒歩12分(約914m)

    物件詳細

    物件名 豊中市蛍池南町2丁目アパート
    物件番号 35214035
    所在地 大阪府豊中市螢池南町2丁目
    価格
    5,980万円
    交通 阪急宝塚線蛍池」駅徒歩7 分
    建物面積 235.91m2(約71.36坪)
    土地面積 185.12m2(約55.99坪)※公簿/セットバック:14.14m2含む
    階数
    構造
    地上3階建て
    鉄骨造
    築年月 1988年01月
    地目
    地勢
    宅地
    平坦
    総住戸数 6 戸
    各住戸の専有面積 最小25.00m2〜最大38.00m2
    接道状況 角地・北5.4m(公道)接面17.6m/西3.6m(公道)接面22.2m
    建ぺい率 60%
    容積率 200%
    都市計画 市街化区域
    用途地域 第1種中高層住居専用地域
    地域・地区 高度地区
    施工会社 株式会社三木組
    引渡時期 相談
    現況 賃貸中
    駐車場 無し
    土地権利 所有権
    取引態様 仲介
    国土法 届出不要
    備考
    • ・角地です。ただし建ぺい率は緩和されません。

    この情報は2026年03月30日当社物件システムのデータにもとづくものであり、次回更新予定日は2026年04月13日です。