• オーナーチェンジ

本物件は投資向け物件です

想定利回り
4.00 %
年間想定賃料等
853万5,600
月額賃料等
71万1,300
現在の賃貸状況
全部賃貸中
オーナーチェンジ

投資用不動産

2億1,300万円

向日市寺戸町中村垣内一棟アパート

アパート

アパート

  • オーナーチェンジ
2億1,300万円

向日市寺戸町中村垣内一棟アパート

想定利回り
4.00 %

【すみふの仲介ステップ】■平成28年9月建築! ■旭化成ホームズ施工!

京都府向日市寺戸町中村垣内

建物面積460.70m2(約139.36坪)・土地面積531.31m2(約160.72坪)※公簿・2016年09月築

【すみふの仲介ステップ】■平成28年9月建築! ■旭化成ホームズ施工!

京都府向日市寺戸町中村垣内

建物面積460.70m2(約139.36坪)・土地面積531.31m2(約160.72坪)※公簿・2016年09月築

物件のポイント

本物件は投資向け物件です

想定利回り
4.00 %
想定利回り
4.00 %
年間想定賃料等
853万5,600
月額賃料等
71万1,300
現在の賃貸状況
全部賃貸中
オーナーチェンジ
投資用・事業用不動産について
  • 賃料等の収入や利回りは、将来にわたり、確実に得られることを保証するものではありません。
  • 賃料等は、賃貸中のものについては現在の賃料等で、新築および空室または一部空き有のものについては、周辺の賃料相場に基づき満室となった場合を想定して表示しています。
  • 利回りは、現況または満室想定時の賃料等の収入に基づく単純利回り(賃料等の年間合計金額÷ 販売価格(税込))で、公租公課や維持管理費等の必要経費は控除されていません。

物件の特徴

  • 容積率100%以上
    容積率100%以上
  • スーパーまで徒歩10分以内
    スーパーまで徒歩10分以内
  • コンビニまで徒歩5分以内
    コンビニまで徒歩5分以内
  • 駐車場有
    駐車場有
  • 第一種住居地域
    第一種住居地域
  • セットバックなし・済み
    セットバックなし・済み
  • 土地面積100坪以上
    土地面積100坪以上
  • 前面道路公道
    前面道路公道
  • 容積率100%以上
    容積率100%以上
  • スーパーまで徒歩10分以内
    スーパーまで徒歩10分以内
  • コンビニまで徒歩5分以内
    コンビニまで徒歩5分以内
  • 駐車場有
    駐車場有
  • 第一種住居地域
    第一種住居地域
  • セットバックなし・済み
    セットバックなし・済み
  • 土地面積100坪以上
    土地面積100坪以上
  • 前面道路公道
    前面道路公道
  • 駐車場有
  • セットバックなし・済み
  • 土地面積100坪以上
    リフォーム

    --

    立地・周辺環境

    容積率100%以上|スーパーまで徒歩10分以内|コンビニまで徒歩5分以内|第一種住居地域|前面道路公道

    セールスポイント

    ◇平成28年9月建築
    ◇旭化成ホームズ施工
    ◇阪急東向日駅徒歩9分
    ◇第1種住居地域に所在

    (建ぺい率60% 容積率192%)
    ◇道路幅員:約4.8m〜約6.1m
    ◇土地160.72坪
    ◇建物139.36坪
    ◇サブリース契約付き
    ◇現況8戸満室
    (2LDK×6・1LDK×2)
    ◇利回り4.00%
    (年間収入:8535600円)
    (2026年3月2日現在)
    ◇太陽光発電システムあり
    (別途2025年収入実績:年間916361円)
    ◇駐車場6台分あり(車種による)

    □■□近隣施設□■□
    ・セブンイレブン向日南垣内店(約380m)
    ・サンディ向日寺戸店(約420m)

    ●お問合せ
    ●すみふの仲介ステップ 
    ●京都北営業センター
    ●フリーコール
    ●0120-678-076
    ●担当 下野

    担当からのひとこと

    この度は『向日市寺戸町中村垣内 1棟アパート』の物件ページをご覧いただき誠に有難うございます。

    本物件は阪急東向日駅徒歩9分の立地です。
    本アパートは築年数及び立地の良さも相まって高い入居率を維持しております。

    お部屋は2LDKが6戸、1LDKが2戸となっております。
    利回りは4.00%、年間収入は、8535600円となっております。(2026年3月2日現在)
    別途太陽光発電システムの収入もございます。(2025年収入実績:年間916361円)

    京都で収益マンションの保有をお考えの方、資産の組み換えをご検討されている方、少しでもご興味をもっていただけた方はお気軽に「下野」までお声掛けくださいませ。
    皆様からのお問合せを心よりお待ち申し上げております。

    【お問合せ先】
    すみふの仲介ステップ
    京都北営業センター
    担当/下野
    フリーコール:0120-678-076

    ・セブンイレブン向日南垣内店 徒歩5分(約380m)
    ・サンディ向日寺戸店 徒歩6分(約420m)

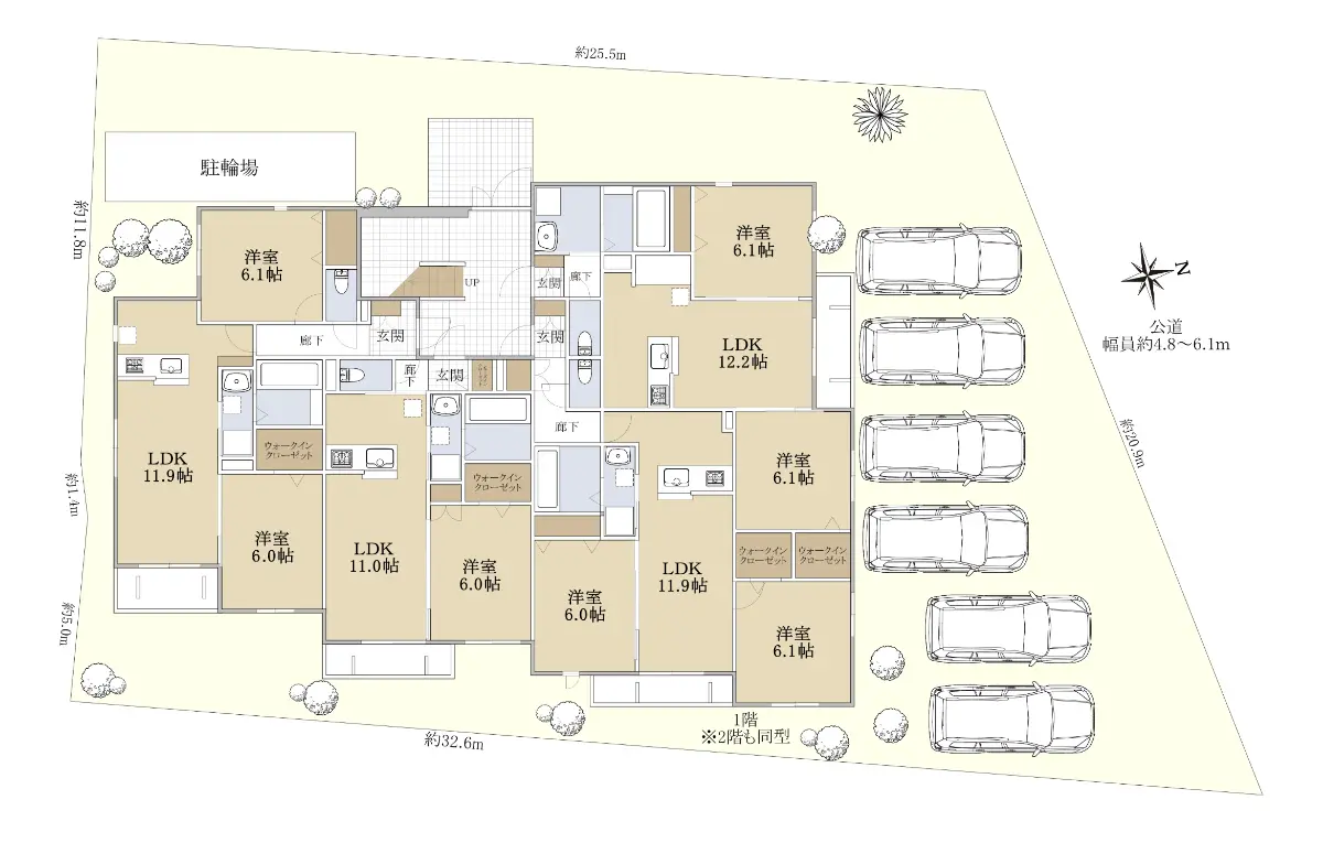
    物件詳細

    物件名 向日市寺戸町中村垣内一棟アパート
    物件番号 35444008
    所在地 京都府向日市寺戸町中村垣内
    価格
    2億1,300万円
    交通 阪急京都線東向日」駅徒歩9 分
    建物面積 460.70m2(約139.36坪)
    土地面積 531.31m2(約160.72坪)※公簿
    階数
    構造
    地上2階建て
    鉄骨造
    築年月 2016年09月
    地目
    地勢
    宅地
    平坦
    総住戸数 8 戸
    各住戸の専有面積 最小41.95m2〜最大59.13m2
    接道状況 一方道路・東4.8m(公道)接面20.9m
    建ぺい率 60%
    容積率 192%
    都市計画 市街化区域
    用途地域 第1種住居地域
    施工会社 旭化成ホームズ
    引渡時期 相談
    現況 賃貸中
    駐車場 有り/月額:11,000円/自走/屋根なし
    土地権利 所有権
    取引態様 仲介
    国土法 届出不要
    備考
    • ・都市計画道路が敷地にかかっています。

    この情報は2026年03月16日当社物件システムのデータにもとづくものであり、次回更新予定日は2026年03月30日です。